
Для економії простору багато зупиняють свій вибір на ліжках з підйомним механізмом. Дані конструкції дуже ергономічні і служать місцем для зберігання об’ємних речей, у вигляді ковдри, подушок та іншого.
Також ліжко обладнане спеціальним ящиком для білизни, що забезпечує порядок і оздоблення в кімнаті. Вироби представленого типу бувають як одне, так і двоспальні.
Збірка ліжка з підйомним механізмом практично нічим не відрізняється від складання звичайного ліжка, проте все ж має свої особливості. Даний процес вимагає певних знань і використання професійних інструментів, тому краще роботу такого роду довірити фахівцям.
Порядок складання ліжка

Порядок складання ліжка (натисніть для збільшення)
Якщо збірка виробу відбувається самостійно, рекомендуємо дотримуватися наступної послідовності (див. креслення):
Корисно знати: збірка повинна відбуватися на рівній поверхні. Не варто робити роботу самому, краще покликати помічника.
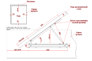
Установка і закріплення підйомного механізму (див. креслення):

Кріплення каркасу ліжка (натисніть для збільшення)
Важливо знати: після установки необхідно кілька разів підняти і опустити гнучке підстава для перевірки правильної роботи механізму. Підйомний механізм і основа встановлюють з таким розрахунком, щоб вони не зачіпали периметр ліжка.
У цій справі важливо не поспішати, акуратно і правильно поєднати всі комплектуючі деталі, щоб уникнути подальшого хитання і поскрипування ліжка. Для більшої точності можна подивитися відео в інтернеті, в яких поетапно викладені всі дії по збірці ліжка в підйомним механізмом.
Після всіх виконаних маніпуляцій укладається матрац і все — ліжко повністю готова до експлуатації. Правильно складена конструкція подарує своїм власникам повноцінний, міцний і головне — здоровий сон.
Як зібрати ліжко з підйомним механізмом, дивіться інструкцію в наступному відео:
