
Якщо у сім’ї підростає дитина, якому скоро йти до школи, потрібно подбати про придбання письмового столу.
Але купувати меблі в магазині дуже дорого, тому пропонуємо вам виготовити стіл самостійно.
Необхідно підготувати матеріал, інструменти і виконати креслення майбутнього предмета інтер’єру.
Зробити письмовий стіл для школяра дуже просто, з таким завданням зможе впоратися будь-який домашній майстер.
Зміст:
- Варіанти письмових столів
- Матеріали і інструменти
- Письмовий стіл з двома тумбами
- Як прикрасити письмовий стіл?
Варіанти письмових столів
Перш ніж приступити до виготовлення столу, необхідно визначитися з його варіацією.
В залежності від обраної конструкції треба зробити креслення та розрахунок матеріалів.
Письмові столи бувають таких варіантів:
Прямий письмовий стіл
Збирати такий стіл необхідно в строгій послідовності. Торцеві деталі спочатку кріпляться до внутрішньої стінки. Тільки потім прикріплюється стільниця.
В заготовках під ніжки потрібно просвердлити отвір. Верхні торці повинні бути на одному рівні. Якщо допущена якась похибка, зібрати стіл буде важко.
Зверніть увагу! Якщо ви використовуєте готові креслення, не обов’язково дотримуватися зазначених розмірів, важливо дотримуватися пропорції, а стіл можна зробити під будь-яку дитину (першокласника або підлітка).
Кутовий письмовий стіл
Завдяки такому предмету інтер’єру для занять школяра можна задіяти будь-який кут кімнати.
Цей стіл ідеально впишеться в приміщення невеликого розміру.
Стільниця вийде просторою, і на ній з легкістю вміститься комп’ютерний монітор, підручники, зошити і різні шкільні приналежності.
Виготовлення кутового письмового столу ділиться на наступні етапи:
- конструкція столу непроста, тому, якщо немає впевненості в тому, що розкрій МДФ або ДСП вийде зробити самостійно, варто замовити це в магазині під час придбання матеріалу;
- направляючі елементи для висувних ящиків кріпляться до бокових стійок;
- задня стінка кріпиться за допомогою саморізів;
- одночасно збираються висувні елементи;
- на стільниці необхідно зробити розмітки і просвердлити гнізда;
- прикріпити до стільниці тумби і задню стінку;
- на останньому етапі необхідно прикріпити декоративні елементи.
Відкидний письмовий стіл
Відкидний або складаний письмовий стіл ідеально підходить для родини, яка живе в однокімнатній квартирі. Стіл можна використовувати в якості обіднього, коли школяр вже позаймався.
Відкидна стільниця – це дуже зручно, так як в будь-який момент її можна прибрати, щоб не заважало і не займала місце.
На стінці, до якої кріпиться конструкція, можна повісити полки, щоб дитина міг поставити на них підручники і різні шкільні приналежності.
Найбільш поширений варіант відкидного столу складається всього з двох елементів – косинки з петлями, які кріпляться до стіни, і стільниці. Можна замість косинки зробити дві ніжки, які будуть утримувати кришку столу.
Письмовий стіл з підвіконня
Для такого столу можна використовувати деревний масив, плиту МДФ, ДСП, штучний або натуральний камінь. Старе підвіконня необхідно демонтувати, а на його місце вкладається стільниця майбутнього столу, яка повинна бути розмірами більше, ніж підвіконня. Підпорами будуть служити дві тумби або металеві стійки.

Зверніть увагу! Стільниця може мати продовження до найближчої стіни. Завдяки цьому стіл вийде великим і зручним.
Стіл-трансформер
Письмовий стіл-трансформер чудово економить простір і допомагає школяреві зберігати необхідні для занять речі завжди під рукою.
У складеному вигляді це тумба, яка за допомогою легкого руху руки перетворюється на повноцінний стіл.
Щоб самостійно зробити такий предмет інтер’єру, можна взяти готову тумбу і до неї прикріпити додатково стільницю. На днище встановлюються коліщатка для зручності користування.
Кріплення деталей повинно виконуватися за допомогою великих саморізів. Напрямні деталі прикріплюються до профілю висувний конструкції.
Цікаві і практичні, такі трансформери, як стіл-ліжко і стіл-шафа.
Порада: При виготовленні столу-трансформера можна використовувати натуральне дерево. Наприклад, зробити з масиву ніжки або стільницю.
Існують і інші варіанти письмових столів.

Настінний стіл з висувною стільницею.

Навісний шафка з відкидною стільницею.
Матеріали і інструменти
Для виготовлення письмового столу можна використовувати наступні матеріали:
- масив дерева;
- плити МДФ, ДСП;
- ламінована меблева плита.
Кожен домашній майстер може вибрати той матеріал, який відповідає його вимогам і фінансовим можливостям. Наприклад, можна використовувати в якості верхнього, заднього або бокового елементів стільницю старого столу.
Крім того, будуть потрібні допоміжні матеріали:
- брусок 40 х 40 мм для виготовлення ніжок (можна використовувати металеві стояки, труби невеликого діаметру, попередньо пофарбовані лаком або фарбою);
- дерев’яні шканти;
- столярний клей;
- кромочная стрічка.
Для обробки готового виробу можна використовувати лак, фарбу, папір для декупажу, різні елементи декору.
Також знадобляться інструменти:
- олівець, лінійка 30 см;
- дриль;
- викрутка, шуруповерт;
- електролобзик;
- шестигранний ключ;
- молоток;
- кутові струбцини;
- шліфувальний верстат.
Зверніть увагу! Оригінально виглядає письмовий стіл, ніжки якого зроблені з балясин.
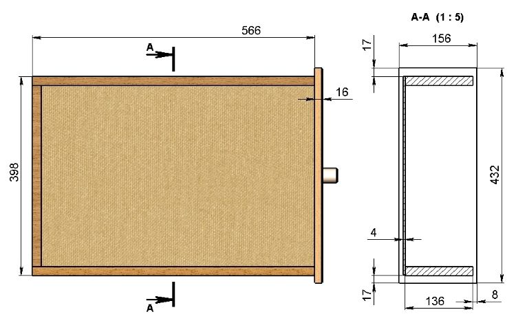
Письмовий стіл з двома тумбами

Креслення з розмірами

Креслення письмового столу з полицями для школяра.

Розміри скриньки для письмового столу.
Зверніть увагу! Розміри столу підбираються індивідуально, адже одному необхідно зробити стіл для першокласника, а іншому – для підлітка.
Етапи робіт
Коли креслення зроблені і перенесені на матеріал, необхідно випиляти елементи за допомогою електролобзика і скріпити їх. Щоб зробити стіл, необхідно дотримуватися такі етапи виготовлення:
Крок 1. Торці ніші необхідно промазати клеєм і з’єднати з внутрішніми боковинами тумби. Саморізи потрібно вкручувати акуратно, щоб не пошкодити матеріал з зовнішньої сторони.

Крок 2. Щоб конструкція була надійною і жорсткою, необхідно прикріпити задню стінку до нижньої центральної полиці.

Крок 3. З тієї сторони, де буде знаходитися тумба, необхідно прикріпити полиці. Слід пам’ятати про те, що торці всіх елементів, перш ніж вони будуть прикріплені один до одного за допомогою шкантів і пазів, повинні бути промазані столярним клеєм.

Крок 4. В ніші кріпляться дві перегородки за допомогою саморізів. На ці елементи буде встановлюватися стільниця.

Крок 5. З нижньої сторони стільниці зробити розмітку. Вклеїти шканты, в торцях ніші зробити пази. Встановити стільницю.

Крок 6. На стільницю можна прикріпити різні ніші, відсіки та поглиблення. Їх форма і розміри підбираються в індивідуальному порядку.

Крок 7. По контуру стільниці кріпляться декоративні канти.
Крок 8. На даному етапі необхідно скріпити скриньки і вставити їх в тумбу, у якій попередньо були прикріплені направляючі елементи.


А про те, як зробити своїми руками столик для балкона, ви можете дізнатися з цієї статті.
Як прикрасити письмовий стіл?
Щоб письмовий стіл вийшов красивим і стильним, необхідно провести його обробку. Виконати її можна такими способами:
- Якщо стільниця виготовлена не з ламінованої ДСП, поверхню слід обробити оліфою або морилкою, а потім покрити лаком.
В даний час можна придбати ці матеріали будь-яких відтінків з імітацією кольори деревини різних порід. - Можна замовити лист обробленого по краях скла або оргскла – покласти його на стіл оброблений, коли лак висохне.
- Дитині сподобається смугастий стіл. Спочатку потрібно пофарбувати поверхню стільниці будь світлою фарбою. Потім наклеїти малярний скотч, роблячи смужки підходящої ширини. Між скотчем пофарбувати більш темною фарбою. Коли шар фарби висохне, зняти скотч. При бажанні на такий смугастий стіл можна нанести за трафаретом будь-який малюнок.
- Ще один ефектний спосіб декорування – декупаж. Підходить як для оздоблення нового, так і для оновлення та реставрації старого письмового столу. За допомогою вирізаних і приклеєних зображень з паперу, тканини або шкіри можна зробити з столу справжній витвір мистецтва.
Дітям подобається творити разом з батьками. Виготовлений батьком і оформлений спільними зусиллями стіл доставить дитині величезне задоволення, і він з радістю робити за ним уроки, займатися малюванням або просто сидіти за комп’ютером.
Докладно про те, як зробити письмовий стіл, дивіться у цьому відео:
