
Хочете оновити інтер’єр новим предметом меблів? Зробіть стілець з натурального дерева своїми руками, який буде не тільки красивим зовні, але і корисним у побуті.
У цій статті ви знайдете цінні рекомендації та поради щодо того, якому матеріалу віддати перевагу, з чого почати виготовлення дерев’яного стільця і які для цього знадобляться інструменти.
Готові креслення з розмірами полегшать процес для новачків в столярній справі.
Зміст:
- Яке дерево вибрати
- Креслення з розмірами
- Матеріали і інструменти
- Опис етапів робіт
Яке дерево вибрати
Для виготовлення стільці з натурального дерева можна скористатися наступними пиломатеріалами:
- дошки;
- брус;
- масив;
- колоди.
У більшості випадків вдаються до поєднання кількох видів матеріалів, кожний з них виконує свою функцію в конструкції стільця.
Можна купити готові матеріали або, при наявності необхідного обладнання, виготовити самостійно. Для цього вам знадобляться якісні колоди. При виборі колод звертайте увагу на їх зовнішній вигляд: наявність сучків, тріщин, грибкових хвороб. Вивчіть верхній шар деревини – іноді колоди підфарбовують для поліпшення споживчих властивостей.
Якщо ж вирішили купувати пиломатеріали для стільця, варто звернути увагу на наступні рекомендації:

Важливо! Запасатися деревом, брусками і дошками необхідно трохи в більшому обсязі, ніж розраховане для виготовлення, так як є ймовірність зіпсувати або зламати одну з деталей.
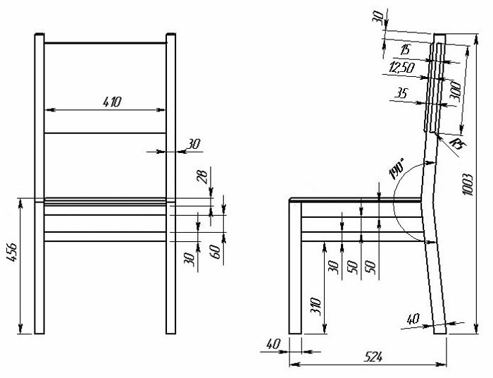
Креслення з розмірами
Процес виготовлення стільця починається з створення креслення. Якщо це ваше перше виріб, краще всього відмовитися від хитромудрих конструкцій і спробувати зробити стілець найпростішої конструкції з тканинної оббивкою сидіння. Ви можете скористатися кресленням, представленим нижче (всі розміри вказані в міліметрах):

Матеріали і інструменти
В процесі виготовлення стільця вам будуть потрібні наступні матеріали:
- дошки (товщина – 10-15 мм);
- брус (параметри – 40 на 60 мм і 40 х 40 мм);
- папір для шліфування;
- поролон і міцна тканина;
- саморізи;
- меблевий клей.
Якщо ви маєте намір виготовити бруски самостійно, то для цього потрібно обзавестися спеціальним обладнанням. Інструменти для обробки деревини:

- будівельний степлер;
- пила;
- кондуктори для меблів;
- рубанок;
- стамеска;
- киянка;
- лобзик (електричний);
- шуруповерт;
- рулетка.
Опис етапів робіт
Крок 1. Підготуйте брус: один потрібен для спинки стільця (80 см в довжину), другий – для ніжок, розташованих спереду (44 см). Проробіть отвори в брусках на однаковій висоті – вони потрібні підстави.
Виготовлені деталі потрібно укласти один поверх одного і вирівняти зрізи ніжок. Відзначте розташування отворів.
Потрібно виконати на поруч розташованих ніжках стільця по два отвори, щоб у підсумку вийшов свого роду прямокутник, що стоїть на ніжках.
Крок 2. Користуючись стамескою, проробіть отвори на місці відміток. Позбавтеся від тирси, очистіть ніжки.
Крок 3. Виготовте 2 поздовжні рейки і 2 проножки (горизонтальні деталі, що з’єднують нижню частину ніжок стільця). Візьміть для цього 4 бруска з розміткою майбутніх шипів. Їх розміри повинні відповідати близько 10-12 мм.
Виконуйте розмітку і вирізуйте шипи максимально акуратно, так як вони повинні міцно входити в отвори. Простежте, щоб не залишалося зазорів.
Крок 4. На наступному етапі виготовляється спинка. Для її заснування краще взяти дошку обрізного типу. Проробіть отвори на внутрішній стороні задніх опор, щоб вони відповідали параметрам висоти і товщини спинки – пази призначені для її кріплення. Фіксація сидіння здійснюється за допомогою шурупів. Щоб стілець був досить жорстким, приєднайте розкоси невеликих розмірів.
Крок 5. Обробіть спинку і ніжки стільця з зовнішньої сторони таким чином, щоб вони мали заокруглену форму, а потім відшліфуйте їх.
Крок 6. Основа майбутнього стільця необхідно обробити лаком і відполірувати. Краще всього придбати лак без запаху, виготовлений на водній основі. Дочекайтеся, поки елементи конструкції повністю висохнуть.
Крок 7. Якщо хочете зробити стілець з м’яким сидінням, візьміть для цього поролон необхідного розміру і загорніть його в досить щільну тканину. Прикріпіть поролон до сидіння за допомогою будівельного степлера.
Крок 8. Процес складання дерев’яного стільця починається відразу ж після обробки всіх елементів конструкції. Зубці потрібно добре промазати клеєм і вбити їх у пази, використовуючи киянку. Щоб не нашкодити лаковому покриттю стільця, потрібно наносити удари максимально акуратно.
Крок 9. Останній етап – прикручування сидіння і спинки до основи стільця. Щоб прикріпити саморізи для меблів, скористайтеся відповідними свердлами.
Капелюшки саморезов можна замаскувати за допомогою клею ПВА і тирси. Змішайте ці два компоненти і нанесіть їх на капелюшки. Після обробки стільця лаком саморізи стають практично непомітними.
Можливо, вас також зацікавить, як зробити поручні для сходів з дерева.
Просвоив принцип виготовлення, надалі ви зможете взятися за більш складні конструкції — стільці з фігурними ніжками і спинкою, підлокітниками, різьблені стільці, а також самостійно здійснити ремонт дерев’яного стільця. Можливо, захочете зробити оригінальний стілець для годування дитини або здивуйте знайомих авторським виробом незвичайної конструкції.
Майстер-клас по виготовленню стільці з масиву дерева дивіться у відео:
