
Обідня зона або зона відпочинку на дачі є важливою для кожного члена сім’ї, так як тут можна посидіти з книгою, покуштувати приготований мамою обід або шашлик, який посмажив батько.
Тут можна зібратися всією родиною, щоб провести літній день або вечір за чаюванням або просто за цікавими розмовами про щось важливе і нагальне.
Тому в альтанці або просто під тіньовим навісом необхідно встановити стіл-лавку, за яким буде зручно сидіти і комфортно відпочивати всім без винятку, будь-то доросла людина або дитина, гість або родич.
Сьогодні виробники садових меблів пропонують величезний асортимент столів і лавок для дачі. Звичайно, можна купити ковані, плетені або пластикову меблі, але зробити своїми руками набагато цікавіше і дешевше. Тим більше, що всі необхідні матеріали та інструменти майже завжди у дачників є під рукою.
Зміст:
- Варіанти конструкції
- Матеріали і інструменти
- Стіл-лавка з дерева
- Етапи виготовлення
- Лавка-трансформер
- Етапи виготовлення
- Оздоблення столу-лавки
Варіанти конструкції
Форма і вигляд майбутнього столу залежить від стилю будинку і ландшафтного дизайну.
Для обробки такого столу і лавки краще застосовувати шліфувальну машинку, щоб досконально опрацювати поверхні, роблячи їх ідеально гладкими і рівними.
В даному варіанті доведеться кожен елемент меблів розкрити лаком – це кропітка робота, адже тонких рейок цієї меблів буде багато.
Зверніть увагу! Щілини між колами спилов краще замазати епоксидною смолою і відшліфувати після висихання.

Зробити таку конструкцію зовсім не складно, необхідно лише приготувати інструменти та матеріали, які знадобляться під час процесу. Такий стіл буде легко переносити з одного місця на інше, якщо це необхідно. До його характеристик слід віднести:
- надійність конструкції;
- відмінну практичність;
- стійкість;
- тривалий термін експлуатації;
- висока якість.
Матеріали і інструменти
Якщо хочеться стіл з лавкою на дачу зробити своїми руками, тоді краще віддати перевагу меблів, виконаної у вигляді єдиної конструкції.
Завдяки естетичним та експлуатаційним характеристикам багато власників індивідуальних будинків і ділянок віддають перевагу саме такому варіанту.
Матеріали та інструменти, які знадобляться для виготовлення дерев’яного столу з лавками:
- дерев’яні дошки завдовжки від 1500 мм, шириною від 200 мм;
- бруски, які будуть використовуватися в якості сполучних елементів (розмір 40 х 40 мм або 50 х 50 мм);
- саморізи;
- ножівка;
- металеві стержні і гайки;
- молоток і цвяхи;
- лак для дерева будь-якого кольору, кисть;
- шуруповерт;
- лінійка;
- дриль електрична.
Стіл-лавка з дерева
Така єдина конструкція передбачає наявність двох лавок по довжині столу або чотирьох лавок, розташованих по всім сторонам стільниці.
Другий варіант кращий, якщо стільниця має форму квадрата.
Перш ніж робити начерк складання виробу, необхідно врахувати наступне:
- ширина стільниці повинна бути розмірами від 600 до 900 мм;
- висота столу від рівня поверхні землі зазвичай становить 750 мм;
- ширина сидіння лавки — від 300 до 400 мм;
- висота сидіння від рівня поверхні землі — близько 500 мм.
Довжину столу і лавок можна зробити будь-який, в залежності від особистих уподобань.
Етапи виготовлення
Крок 1. За допомогою саморіза, з використанням способу вибірки половини дошки закріпити хрестовини ніжок столу.
Крок 2. На наступному етапі слід зробити вибірки дерев’яної дошки. Знайти середину на дошці і акуратно випиляти ножівкою спеціальні пази. Після цього зріз виконується до середини.
Крок 3. Дерев’яна лавка повинна бути надійно прикріплена до столу. Тому для складання всіх елементів столи і лавки, а також для кріплення цих двох предметів меблів, використовуються металеві стрижні, гайки і шайби. Їх необхідно добре затягувати, щоб деталі конструкції не розхитувалися.


Крок 4. Тепер потрібно закріпити низ столу, використовуючи саморізи і цвяхи.

Крок 5. Зібрати стільницю дуже просто. Необхідно спочатку зробити раму з брусків, розташованих по периметру, а потім до них прикріпити відшліфовані дошки.
Крок 6. Прикріпити стільницю до хрестоподібним деталей за допомогою саморізів.

З колод стіл з лавками виконується за таким же принципом, як і з дощок. Тільки кріплення необхідно виконувати за допомогою скоб, які будуть надійно з’єднувати великі і круглі елементи.

Схема складання такого столу також повинна бути заготовлена заздалегідь, щоб під час процесу знати, які деталі, до чого і куди кріпити.
При виготовленні дерев’яного столу-лавки всі рухи потрібно виконувати акуратно і уважно, щоб не зіпсувати дерево. Відпилювати деталі слід строго за розмірами, намічаючи місце розпилу олівцем.
Читайте також нашу статтю про те, як зробити стіл для балкона своїми руками.
А як самому зробити стілець з дерева, ви можете дізнатися з цієї статті.
Лавка-трансформер
Дачна лавка-трансформер – це оригінальна конструкція, яка буде доречна в саду, в альтанці або в тіні гіллястих дерев.
На перший погляд, це звичайна лавка, яка може за кілька секунд перетворитися в зручний і великий стіл. Такий предмет меблів можна зробити самостійно, використовуючи звичайні підручні матеріали.
Лавка-трансформер складається з п’яти основних елементів:
- металева каркасна основа;
- спинка, яка трансформується в стільницю;
- фіксуючий елемент для стільниці;
- дерев’яне сидіння;
- фіксатор для сидіння.

Етапи виготовлення
Каркас
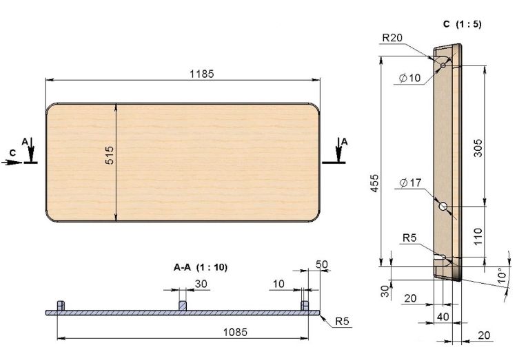
Каркасне підставу можна зробити з квадратної металевої труби перетином 25 х 25 і товщиною стінок 2 мм або круглої металевої труби діаметром 17 мм
Також знадобляться дерев’яні пробки у вигляді заглушок. Труби зварюються між собою, а дерев’яні пробки вставляються в труби на кінцях.
Важливо! Щоб конструкція вийшла міцна і надійна, необхідно приварити в кутах металеві вставки у вигляді трикутника.
Спинка-стільниця
Знадобиться фанера товщиною до 20 мм і дерев’яний брусок розміром 40х40 мм або 50х50 мм Бруски прибиваються по ширині в кількості 3-х штук за допомогою маленьких цвяхів або прикручуються саморізами. Якщо на фанері є якісь нерівності або шорсткості, то її поверхня потрібно відшліфувати дрібнозернистим наждачним папером.

Фіксатор стільниці
Даний елемент виконується з тонких рейкових дощечок. Їх необхідно приєднати один до одного за допомогою товстого металевого дроту діаметром 10 мм.


Дерев’яна сидушка
Лавка трансформера складається із сидіння і фіксатора. Для виготовлення сидіння необхідно приготувати дерев’яний брусок 30 х 30 мм і дощечки шириною 60 мм Одна дощечка повинна бути на 10-15 мм коротше, щоб фіксатор вільно встав між цими двома деталями.

Фіксатор сидіння
Фіксатор для лавки краще виконати з металевої дроту діаметром до 14 мм

Самостійно зібрана садові меблі може стати оригінальним доповненням саду або двору біля будинку. Можна зробити таким чином два стола-лави або столу-трансформера і поставити їх поруч один з одним. Вийде відмінне місце для чаювання і проведення свят, де можна розмістити велику кількість родичів і друзів.
Можливо, вас також зацікавить стаття про те, як зробити журнальний стіл.
А покрокову інструкцію по виготовленню своїми руками стільця-драбини ви знайдете тут.
Оздоблення столу-лавки
У тих місцях, де були встановлені шурупи і забиті цвяхи, слід скористатися спеціальною шпаклівкою по дереву. Суміш нанести і розподілити за допомогою гумового шпателя.
Коли склад застигне, всі промазані місця зашліфувати дрібним наждачним папером. Перед цим її потрібно закріпити для зручності на бруску.
Обробка має величезне значення для дерев’яних виробів, які планується експлуатувати на відкритому повітрі.
Якщо не провести обробку дерева від вологи і гниття, то термін служби дачної меблів може бути мінімальним. Для фінішної обробки відмінно підійде лак. Він може бути з відтінком або повністю прозорий.
Зверніть увагу! Якщо для створення меблів використовувалися благородні сорти деревини з яскраво вираженою текстурою, тоді слід використовувати масло або оліфу натурального відтінку.
Незалежно від обраного оздоблювального матеріалу наносити його необхідно ретельно і в два шари, обробляючи пензлем всі поверхні, а не тільки ті, які видно. Після лаку поверхню можна додатково покрити атмосферостійким меблевим покриттям.
Металеві елементи столі трансформері слід обробити абразивним кругом, щоб видалити зварні шви. Після цього необхідно нанести лакофарбове покриття, яке захистить метал від корозії.
Завдяки такій обробці всі дерев’яні і металеві елементи столу-лавки будуть естетично красивими, а сама лавка вийде надійною і довговічною.
Докладніше про те, як зробити своїми руками лавку-трансформер з металу і дерева, дивіться у відео:
