Зміст:
- 1 Вибираємо мангал: конструктивні особливості
- 2 З чого ж почати?
- 2.1 Проектування мангалу
- 3 Викладаємо кутовий мангал: покрокова інструкція
- 3.1 Як правильно викласти саму жаровню?
- 3.2 Наші рекомендації:
Слово «мангал» має в кожного народу своє тлумачення.
Наприклад: німці цей процес називають грилем, американці-барбекю, а у нас – просто жаровня(смажити).
Вибираємо мангал: конструктивні особливості

мангал з цегли
А, чи є різниця між ними? Що вибрати?
Мангал є найпростішою конструкцією жаровні. Зазвичай виготовляють у вигляді скриньки. Тепло надходить знизу і збоку від стінок. Недоліком мангалу є надходження повітря тільки знизу. При горінні палива виходить брак тяги.
Гриль-це глибока сковорода, оснащена зверху кришкою. Тепло надходить зверху, знизу і збоку.
Барбекю може бути будь-якої форми. Тут тепло надходить тільки знизу.
У всіх основною деталлю є решітки. Одна – для продуктів, інша – для палива. Використовують також шампури або дерев’яні шпажки.
Ці пристосування використовують любителі відпочинку на природі.

жаровня з цегли
Паливом служить деревне вугілля з осики, дуба, клена і вільхи. Непогано користуватися дрова з фруктових дерев: вишня, черешня. При горінні такі дрова не утворюють іскор і сажі.
Але не тільки на природі принесе задоволення приготовані на мангалі їжа.
Якщо у вас є присадибна ділянка, а на його території є вільне місце, то не втрачайте час і споруджувати кутовий мангал з цегли.У такій печі можна готувати, крім м’яса і риби — овочі. Приготовлена таким способом їжа, та ще й на природі, дуже корисна дорослим і дітям. Багато господинь використовують мангал для сушіння грибів і фруктів. Пристосовуються піч коржі. Це функціональний пристрій, яке оцінять ваші близькі.
- Перед побудовою необхідно визначиться з місцем розташування такої печі на дачній ділянці.
- Вона повинна бути не далеко від дому.
- При спорудженні потрібно визначитися з напрямком вітру, щоб не було проблем з димом і вентиляцією. Її дозволяється будувати не менше 6 м від дерев’яних будівель, від сараїв, де знаходяться тварини і від дерев.

кутовий мангал
Будується кутова піч мангал з цегли.
Цеглу використовуються двох видів:
Щоб конструкція була стійкою потрібен міцний і надійний фундамент. У такому випадку без допомоги фахівця не обійтися. Але, якщо ви знаєте в таких справах толк, то побудувати мангал кутовий з цегли своїми руками, вам проблеми не становить.
З чого ж почати?

проект мангала з цегли
Все починається з мрії. Потрібно точно знати, що ви хочете мати в кінцевому результаті?
Розгляньте всі можливі варіанти. Подивіться в інтернеті, написавши в пошуковику: «кутовий мангал з цегли своїми руками фото». Там точно знайдете, що вам підійде і для душі, і по грошах. Або скористайтесь нашим перевіреним проектом кутового мангалу:
Ваш мангал може бути шедевром, індивідуальним і неповторним. Сюди можуть входити цілий комплекс споруд:
У будь-якій справі потрібні інструменти, які допоможуть і полегшать вашу працю:
- дерев’яний молоток;
- кельма потрібен для накидки і зняття розчину.
- лопатою копають котлован під фундамент.
- болгарка;
- шнур потрібний при розбивки фундаменту.
- бетономішалка або ємність для розчину;
- правило необхідно при перевірці кладки.
- кірка. Вона знадобиться при розколюванні і стесывании цеглин.
- рівень нагоді при перевірці вертикальної і горизонтальної точності кладки.
- косинець обов’язково потрібний для перевірки прямокутності кладки і при розбивки фундаменту.

інструменти для викладки мангалу
Потрібні необхідні матеріали:
Проектування мангалу
Коли виберете, що вам потрібно, починайте проектування.

схема порядовка кутового мангалу
Потрібно вибрати місце. Це повинна бути рівна площа, щоб не підходили грунтові води. Мангал не повинен заважати, і підхід до нього повинен бути вільним. Поряд добре б мати місце для відпочинку і стіл з лавками.
І так приступаємо до фундаменту. Все повинно суворо виконуватись за кресленнями. Якщо у вас їх немає, і ви самі не знаєте, як це зробити, скористайтеся інтернетом. Введіть у пошуковик слова «креслення кутового мангал з цегли». Якщо ви вирішили разом з мангалом спорудити коптильню і не можете самі зробити проект, вам знову ж таки допоможе інтернет. Заносимо прохання в пошуковик: «проект кутового мангалу з коптильнею з цегли». Тут є багато різний варіантів на будь-який смак. Або пропонуємо скористатися нашою, перевіреним проектом:

фундамент мангалу кутового
Так як споруда буде цегляна, і вага у нього пристойний, потрібен і надійний фундамент. Починаємо розбивки фундаменту з вимірювання рулеткою площі передбачуваної печі, додаючи по 20см з кожної сторони. За допомогою кілочок і мотузки розмічаємо місце для фундаменту. Лопатою викопуємо котлован на глибину 50см. Споруджуємо опалубку. Третю частину ями засипаємо щебенем і заливаємо розчином(1часть цементу і 3части піску). Зверху на розчин кладемо залізну сітку, і так чергуємо ще два рази і заливаємо доверху яму. Чекаємо, залежно від погоди, 2-3 тижні, щоб фундамент сів і відстоявся.
Це справа не з легких і тут потрібні професійні навички і вправність. Потрібно знати, як правильно спроектувати, підібрати відповідні матеріали і інструменти. Обов’язково необхідно знати технологію кладки(детальніше див. тут)
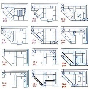
Для цього потрібна схема укладання цегли по рядах(порядовка). Все залежить від розмірів мангалу. Креслення кожного ряду можуть відрізнятися. Як повинні виглядати порядовки на кресленнях, можна дізнатися з інтернету, якщо написати в пошуковику таке формулювання: «мангал з цегли кутовий креслення і фото». Порядовку в роботі потрібно дотримуватися суворо, щоб не порушити конструкцію і кінцевий результат вашої праці.
Викладаємо кутовий мангал: покрокова інструкція

цоколь мангалу
Кожному з нас хочеться, щоб робота була зроблена якісно і акуратно. Для того, щоб процес проходив без ускладнень, потрібна вправність. Ось і тут, спочатку потрібно все «відрепетирувати» без розчину. Необхідно кілька рядів кладки укласти, як зазначено на кресленнях. Вимірюються і підганяються решітки і піддони до тих розмірів, які потрібні за розрахунками на кресленнях. Коли все розкладено, потрібно окреслити місце і при кладці не відступати від кордонів ні на сантиметр для правильності конструкції.
При кладці відстань між цеглинами має ретельно заповнюють розчином. Розчин робимо з глини і додаємо трохи цементу. Цемент з піском в даному випадку не годиться.
Щоб будівля була міцною, потрібен якісний матеріал. Всі знають, що цегла вбирає вологу. За день до початку роботи з ним, треба його підготувати. Необхідно на ніч замочити у воді. І використовувати за призначенням треба тоді, коли він зовні буде сухою, а всередині-наповнений водою.
При перепадах температури, він швидко тріскається і починає відпадати. Можна, для кращого прилягання, використовувати дерев’яний молоток.

при викладенні стінок мангалу необхідно вирівнювати їх
Але в деяких місцях з боку потрібно не повністю заповнювати простір розчином. Звідси буде надходити повітря для кращого горіння палива.
Робимо цоколь. Він залежить від ваших запитів і фінансів. Висота цоколя(це відстань від підлоги до варильної поверхні) розраховується під людину, яка буде готувати їжу.
- Між першим рядом цоколя і фундаментом добре було б укласти шар гідроізоляції. Цю функцію чудово виконає руберойд. Ось, коли перший ряд цоколя вже викладений, потрібно кладку наступного ряду зрушити на півцеглини в сторону, починаючи з кута. Так звана шахова кладка.
- Щоб уникнути перекосу споруди, потрібно періодично перевіряти площині рівнем. З’єднують цегла на кутах металевим дротом.
Додаткову інформацію щодо викладення цоколя з цегли ви можете дізнатися за посиланням: http://stroykirpich.com/kirpich-dlya-cokolya.html
Як правильно викласти саму жаровню?

викладка жаровні
Підстава топки викладають на металеві кутники, щоб під своїм і вагою продуктів, вона не прогнулася і надійно трималася.
Кладку треба намагатися робити так, щоб цегли, викладені всередині, вийшли поперек стіни. На такі виступи і металеві стрижні встановлюють ґрати і піддон.
Що потрібно для того, щоб топка тримала тепло, а витяжка добре функціонувала?
- Для забезпечення тяги і регулювання жаром, потрібно використовувати при будівництві мангалу систему витяжок і заслінок.
- У порядовках обов’язково потрібно відзначити протипожежне отвір. Це повітряний хід між стіною і піччю.
- Димова труба повинна мати довжину не менше 5 метрів. Нижня частина її повинна бути ширше, ніж верхній. Викладають верхню частину труби з чотирьох цеглин і зверху прилаштовують козирок з жароміцної сталі.
- Непогано було б зробити укриття, щоб уберегти мангал від примх природи.
Вид і його конструкція залежить від вашої фантазії.
Щоб убезпечити пічку від розмивання атмосферними опадами, її краще обштукатурити. Вирішити цю проблему допоможе клей для газосилікатних блоків. Він наноситься на цеглу, як звичайна фарба.
З мангалом справа доходить до кінця, візьмемося за оформлення плиткою стільниці. А як робиться випал цегли для надання йому потрібних властивостей читайте тут.

оформлення стільниці мангалу
Оформлення стільниці
Зроблена своїми руками піч мангал стане прикрасою вашого ділянки і вашою гордістю.
Пропонуємо вам для ознайомлення фото кутових мангалів з цегли, які нам найбільше сподобалися, і які ми вам може порекомендувати:
Мангал вже готовий. Тепер можна обговорити питання готування їжі.
На дно піддону мангалу потрібно укласти вугілля у вигляді піраміди і підпалити. Якщо бачите, що вогонь згасає, не багато «розворушите» його за допомогою картону або складеною газети. Через півгодини приблизно вугілля повинні покритися сірим попелом. З вигляду вони червоні і без вогню, отже можна починати готувати шашлик. Потрібно вугілля розрівняти і перевірити температуру. Її можна виміряти спеціальним термометром або рукою, потримавши її над вугіллям. По таблиці вибирають відповідну температуру того чи іншого продукту. Викладають м’ясо на решітку. Поки воно готується, зробіть соус. Приємного відпочинку і насолоди від виконаної роботи.
Якщо у вас ще залишилися питання, рекомендуємо переглянути наступне відео з викладення кутового мангала з цегли:
Ще по темі:
- Зробити тандир з цегли своїми руками;
- Склад розчину для кладки російської печі
