Перед тим як приступити до робіт по облаштуванню покрівлі, її потрібно спроектувати, зробити розрахунок конструкції і створити креслення.
Якщо підготувати його грамотно, це не тільки дозволить скоротити час будівництва, зробить процес монтажу простіше, але і допоможе знизити матеріальні витрати.

В даному випадку не доведеться вносити корективи, а правильний вибір всіх перерізів елементів стане гарантією надійності.
Попередньо вибирають покрівельний матеріал, при цьому обов’язковою умовою є виконання всіх нормативних вимог СНиП.
В залежності від типу даху були розроблені рекомендації, порушення яких поставить під сумнів довговічність і безпеку як самої покрівлі, так і всієї конструкції будинку.
Загальні відомості про оформлення креслення
Графічна частина проекту повинна наочно демонструвати всі етапи будівництва.
Забудовник отримує план покрівлі, креслення якого надає йому докладну інформацію про конструкції.
До нього обов’язково повинна бути додана специфікація, де вказані всі елементи, необхідні для монтажу кроквяної системи, їх перетин, вид і кількості застосовуваних кріпильних деталей.
План покрівлі вважається обов’язковим, якщо в будинку зовнішній водостік.
У тому випадку, коли він внутрішній, а будівля нескладна, креслення можна не виконувати.
Вид зверху дає уявлення про геометричних розмірах перекриття, крок установки несучих балок і кроквяних ферм.
Вид спереду показує величину ухилу скатів, а також число елементів, які будуть використовуватися для монтажу кроквяної ферми.
На ньому також позначають підкоси, затягування і стійки.
Доповнює план покрівлі креслення пристрою фронтону, де вказують його конструктивні особливості.
Для облаштування поверхні схилу необхідно вказувати дані про елементи обрешітки.
Якщо необхідна підрізування листів, слід надати інформацію про цьому етапі.
Крім цього повинні бути креслення вузлів примикання до стін, монтажу вікон і інших конструкцій, вбудованих в дах.
Плани покрівельного покриття для конструкцій скатної типу часто називають розкладками, вони дозволяють правильно вибрати конфігурацію укладання матеріалу і його оптимальна кількість.
На них зазначають розміри поверхні, кількість аркушів, а також порядок проведення монтажу.
Якісно виконаний план скатної покрівлі, креслення якого дає наочне уявлення про розмірі і кількості аркушів покриття, дозволяє значно скоротити витрату покрівельного матеріалу.
План плоскої покрівлі
Плоский дах надає будові сучасний і стильний вигляд, крім цього, такі проекти прості в розробці і обходяться дешевше при монтажі.
Однак, дана покрівля особливо чутлива до атмосферних впливів і вимагає гарної гідроізоляції.
Креслення буде залежати в першу чергу від обраного покриття.
План плоскої покрівлі відображає розташування елементів водостічної системи.
Оскільки опади не повинні залишатися на покрівельному покритті, для їх відведення необхідний ухил не менше 2%.
Як правило, оптимальною величиною вважають 5 — 15°.
Якщо для регіону характерні сильні дощі або інтенсивне танення снігу, одного ухилу недостатньо, потрібна водостічна система.
Часто її роблять внутрішньої конструкції, при цьому один стояк обслуговує площу 150 — 200 кв. м.
У приватному будівництві зовнішні водостоки створюють за допомогою переливних вікон, які розміщують разом з ливнеприемником на парапеті покрівлі.
Якщо лінії зливів знаходяться на різних рівнях, план плоскої покрівлі даху повинен відображати форму фасаду.
Проекти приватних будинків не завжди передбачають певний кут ската, в даному випадку для гарного водовідведення потрібно буде провести разуклонку — створити нахил за допомогою насипних матеріалів з бетонною стяжкою або полістирольних плит.
Особливості підготовки креслення скатної покрівлі
Скатними називають даху, що складаються з декількох площин, розташованих під ухилом більше 10%.
Виходячи з конструктивних особливостей їх поділяють на два типи — горищні та бесчердачниє.
Дах з двома скатами — найпоширеніший варіант, він може застосовуватися для будь-яких видів будівель.
Чотирисхилі покрівлі зустрічаються переважно в заміському та дачному будівництві.
Розріз односхилого даху виглядає як прямокутний трикутник, в якому гіпотенузою є кроквяна нога.
Готовий креслення конструкції повинен містити повну інформацію про довжину, перерізі і місце розташування всіх елементів.
Бажано ще на етапі проектування визначити принцип кріплення вузлів і відобразити це в документації.
У графічної частини плану зазначають довжину стіни будинку, відстань від крокв до конька, обраний кут нахилу ската і розміри кроквяних балок.
Вибираючи покрівельний матеріал для скатної даху, потрібно звернути увагу на наступні рекомендації:
- для профнастилу кут нахилу ската може становити більше 8°;
- для шиферу — від 20 до 30°;
- для руберойду і аналогічних рулонних матеріалів — 5°;
- для металочерепиці — 30°
Проект чотирисхилим покрівлі
Будинки з такою покрівлею виглядають по-справжньому дорого і добротно, в них дуже зручно облаштовувати мансардні поверхи.
Приміщення виходять комфортними і просторими, вони ідеально підходять для проживання.

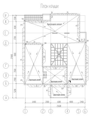
Креслення плану покрівлі чотирисхилого даху
Проте розрахунок і монтаж даної конструкції — непросте завдання.
З цієї причини досить складно зробити самостійно план покрівлі чотирисхилого даху, креслення якої найчастіше замовляють професіоналам.
Ухил скатів такий даху може становити від 5 до 60°, в залежності від атмосферних навантажень, призначення горища, а також типу покрівельного матеріалу.
Для районів із сильними і частими опадами рекомендують робити його значним — від 45 до 60°.
Якщо в регіоні дощі рідкісні, але при цьому сильні вітри, нахил вибирають набагато менше.
Висоту дахового гребеня розраховують за допомогою тригонометричного виразу для прямокутних трикутників.
Перетин крокв визначають, виходячи з очікуваної навантаження — зовнішніх впливів і ваги конструкції, а також ступеня нахилу даху.
При цьому з’ясовують, які крокви доцільніше використовувати, висячі або наслонние, необхідні додаткові елементи — затягування і розкоси.
Основні типи дахів чотирисхилі
Вальмовий конструкція є однією з найскладніших, вона утворена двома трапецієподібними фасадними площинами з торцевими трикутниками.
Горищні вікна розміщують у схилах, фронтони при цьому відсутні.
Цей вид покрівлі найбільш надійний, міцний володіє прекрасними захисними властивостями.
Він набагато економічніше двосхилим даху з витратами, однак вимагає установки особливої кроквяної системи, додаткових вимірів і підгонки покрівельного матеріалу.
Якщо скати зробити з різним рівнем нахилу, вийде силует ламаного даху.
Шатрова конструкція має вигляд піраміди — чотири трикутних ската з’єднуються вершинами в одному місці.
У даного типу покрівлі також відсутні фронтони, а монтаж кроквяної системи дуже складний.
Як правило, його зводять на невеликих будинках у формі квадрата або рівностороннього багатокутника.
Напіввальмові дах, її ще називають датської, відрізняється від вальмового наявністю фронтону.
Найчастіше її споруджують у регіонах із сильними і частими вітрами, захист від таких навантажень забезпечується за допомогою коника, утвореного перетином двох скатів.
Порядок виконання креслення даху
План будівлі ділять на прямокутники, всередині яких наносять лінії, що позначають зовнішні і внутрішні сполучення скатів, ковзани і ендови.
Деякі з них будуть виходити за межі стін, оскільки дах обов’язково повинна мати звис.
Види спереду і збоку виконують, враховуючи нахил скатів.
Їх ставлять ще на етапі проектування будинку, беручи до уваги тип будови, його призначення та вибраний покрівельний матеріал.
Для підготовки графічної частини проекту покрівлі рекомендується скористатися однією з численних програм, які пропонуються на будівельних сайтах.
На плані повинні бути нанесені координатні осі, що проходять в найбільш характерних місцях.
Так простіше всього буде правильно зорієнтувати споруду:
Окремо виносять вузли з’єднання різних деталей конструкції:
- коньковий вузол, так називають кріплення кроквяних ніг між собою або на балці
- з’єднання підкосів стійок, затяжок і інших подібних елементів системи
- кріплення крокв до мауерлату або верхньому колоді стіни
У графічної частини проекту також повинен бути присутнім ескіз даху, він дасть загальні візуальні уявлення про конструкції, дозволить оцінити її зовнішній вигляд і естетичні якості.
Коли передбачається врубка елементів, додатково роблять креслення з зазначенням її розмірів і форми.
Якщо ви вирішили підготувати самостійно план покрівлі, правила оформлення креслення допоможуть зробити це коректно:
Креслення плоскої даху представлений лише кількома лініями, в той же час для скатної характерно велике число проекцій розжолобків і ковзанів.
Такі покрівлі часто роблять складної форми, зі значним ухилом і посиленою кроквяної системою.
Як неважко помітити, щоб правильно підготувати план і його графічну частину, потрібно володіти певними знаннями в галузі будівництва та інженерії, врахувати всі нюанси і зробити вірні розрахунки.
В першу чергу слід подбати про надійність і безпеки вашого житла, тому краще всього звернутися за допомогою до кваліфікованих фахівців.
Відео про кресленні чотирисхилого даху.
