- 1 Підготовка як головна складова успіху
- 1.1 Інструменти та матеріали
- 1.2 Варіанти креслень та ескізів
- 2 Як зробити шафу на балконі або лоджії
- 2.1 Спосіб №1. Каркас з брусків несучих
- 2.2 Спосіб №2. Збираємо шафа з плит
- 2.3 Фасад як головний елемент красивого шафи
- 3 Висновок
Вам цікаво як зробити шафу на балконі своїми руками? Я готовий докладно, у деталях розповісти про власний досвід складання таких меблів у двох варіантах, а також «пройдуся» з усіх відомих мені тонкощам, щоб зробити шафа на балкон або лоджію було простіше.


Шафа на балконі може використовуватися не тільки як місце для зберігання, це ще й прекрасний спосіб обладнати робоче місце.
Перш ніж замовляти або робити своїми руками шафа на балкон або лоджію , цю частину вашої квартири потрібно як мінімум засклити і законопатити всі щілини, а в ідеалі ще краще утеплити. В іншому разі через кілька років ваш шафа буде мати жалюгідний вигляд.
Підготовка як головна складова успіху
В реальності збірка балконних шаф справа нехитра, воно під силу будь-якому мало-мальськи «підкованому» домашньому майстрові. Але перед тим як побудувати що-небудь, вам потрібно подбати про інструменті, визначитися з матеріалом і намалювати ескіз.
Інструменти і матеріали


Щоб зібрати шафу, необхідний мінімальний набір інструментів.
Інструмент, який можна використовувати:
- Молоток;
- Електродриль;
- Стамески, бажано мати хоча б 2 з широким і вузьким жалом;
- Шуруповерт з набором біт або викрутки;
- Ножівки по дереву і по металу;
- Гідроуровень;
- Бульбашковий рівень;
- Висок;
- Рулетка;
- Косинець;
- Шило;
- Наждак — набір шкурок з різною зернистістю;
- Ніж будівельний;
- Плоскогубці.


Розсувні двері балконних шаф дозволяють значно економити простір.
Варіанти креслень та ескізів
Так як габарити лоджій і балконів у кожному окремому випадку можуть істотно відрізнятися, всі представлені мною варіанти шаф з точними розмірами слід сприймати як рекомендації та адаптувати їх під свої параметри.
Ілюстрації Рекомендації 
Відкрита шафа.
Найбільш простий і доступний за ціною варіант. Найчастіше збирається з ДСП.
Хоча на схемі замість дверей пропонується встановити дерев’яний кант по периметру фасаду, його можна легко замінити розпашними дверцятами.
Для вбудованої моделі на лоджію або балкон, підлога, дах, а також нижню поперечку і плінтус монтувати немає сенсу. 
Класична модель.
Це варіант класичного переносного (корпусного) шафи. Але на основі цієї схеми можна змонтувати своїми руками шафа купе на балкон.
Зверніть увагу, між переднім краєм фасаду і полицями є зазор 110 мм, цього запасу вистачить, щоб встановити направляючі для розсувних дверей. 
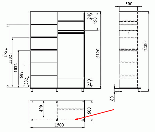
Шафа двосекційна.
Від попереднього варіанту ця схема відрізняється наявністю 2 висувних скриньок, які можна використовувати для інструментів, а головне, всі розміри адаптовані під стандартний балкон. 
Кутовий шафа, варіант №1.
Ця модель сподобається тим, хто не бажає жертвувати частиною фасадного віконного прорізу на лоджії.
Широка задня панель тут займає всю бічну стінку лоджії, а вузький сектор примикає до фасадної стіни.
В результаті вікно не перекривається шафою, плюс такі вбудовані конструкції спочатку розраховані на установку розсувних дверей купе, що істотно заощаджує простір. 
Кутовий шафа, варіант №2.
Хоча даний варіант запозичений з переносний, корпусних меблів, такий шафка відмінно поміщається на невеликому балконі.
Тут передбачені тільки розпашні двері, але замість них можна встановити піднімаються ролети, вийде практично і красиво. 
Любителям поличок.
Ця модель сподобається тим, кому потрібно безліч невеликих поличок і окремих секцій.
Тут практично на 2 м2 (по вертикалі) змонтовано 5 секцій, плюс кожна секція розділена на кілька поличок.
У такому шафі місця вистачить для інструментів, для консервації і ще можна виділити відділ під «потрібні» речі (які шкода викинути). 
Комбінована модель.
Така шафа на балкон своїми руками зробити трохи складніше, адже, по суті, вам доведеться монтувати 2 окремі, незалежні частини.
Зате виглядають ці моделі дуже ефектно і корисна площа задіяна повністю.
Як зробити шафу на балконі або лоджії
Є 2 способи складання балконних шаф:
Який би спосіб ви не вибрали, всі елементи шафи потрібно виміряти під конкретне місце і відрізати безпосередньо перед установкою. Більшість балконів йдуть з перекосами, і якщо розкроїти весь шафа заздалегідь, то зібрати його на «кривому» балконі буде важко.
Спосіб №1. Каркас з брусків несучих
Ілюстрації Рекомендації 
Підготовка місця.
В даному випадку якоїсь особливої підготовки для стін, підлоги і стелі не потрібно. Досить зняти плінтуси (якщо такі є) і змахнути пил.
Шафа на балкон або лоджію зазвичай робиться від стіни до стіни і від підлоги до стелі, а ось в глибину шафа не рекомендується робити більше 60, максимум 70 див. 
Визначаємося з матеріалом.
На мій погляд, найкращий варіант це дерев’яні бруски перетином 40х40 мм Вони легко ріжуться, досить просто монтуються, а головне — це красиво і надійно;
Багато радять обов’язково обробляти деревину захисними складами, особисто я нічим не обробляв, просто покрив лаком і шафа стоїть як новий вже 10 років.

Також несучий каркас можна зібрати з UD і CD профілів під гипсокартон. Якщо «набити руку», то з таких профілів каркас збирається ще швидше, ніж з дерева, але таку конструкцію потрібно обов’язково чим-небудь обшивати, про який-небудь красі тут мова взагалі не йде. 
Розмітка під декоративну панель.
В даному випадку мова йде про перпендикулярної фасадної панелі у торці балкона або лоджії. Для розмітки кутового шафи косинець не застосовується, Там орієнтуєтеся по схилу і рівню.

Монтуємо каркас.
Каркас для шафи ми можемо жорстко закріпити тільки на 3 площинах — підлога, стеля і фасадна стіна балкона, тому першими кріпимо ці 3 бруска.
Фіксуємо бруски так:

Збираємо каркас.
Після каркаса під фасад шафи, збирається весь інший каркас.
- Першими встановлюються задні стійки. Якщо немає можливості закріпити ці стійки на стінах, то фіксуйте їх куточками на підлозі і стелі, як показано на фото зліва;
- Стійки встановлюють по схилу;


- Горизонтальні і вертикальні бруски можна врізати один в одного, як на схемі зліва, але я рекомендую використовувати сталеві куточки і саморізи це простіше і швидше.

Розмітка під полиці.
Щоб полиці встановити строго горизонтально, робимо розмітку за допомогою гідрорівня.
Так вам не потрібно буде виміряти все до міліметра, вода одразу покаже горизонт на протилежних стійках або площинах. 
Обшиваємо полиці.
Після того як каркас під полиці зібраний, обшити їх не складе великої праці. Найдоступніший варіант вирізати плити з ДСП, ОСП або фанери і покласти їх зверху каркаса.
Але ваш шафа буде виглядати набагато краще, якщо полки зашити струганої дошкою. Не обов’язково брати шпунтовані дошки або вагонку, Досить звичайних планок товщиною 20 мм
Всю деревину потрібно в кінці відшліфувати наждаком або шліфувальною машинкою і покрити лаком.
Спосіб №2. Збираємо шафа з плит
Зібрати шафу на балконі з плит ще простіше, ніж з брусків. В даному випадку нам підходять тільки ЛДСП (ламінована деревинно-стружкова плита) товщиною 16 мм (меблевий стандарт).
Торці плит можна обклеїти такий же ламінованої стрічкою своїми руками , але з власного досвіду я рекомендую вам замовити розкрій плит в майстерні і відразу сплатити торцеве ламінування. Така обробка буде на порядок якісніше, особливо це актуально, коли мова йде про фасадних елементів.
Ілюстрації Рекомендації 
Установка вертикальних елементів.
Першими встановлюються 2 крайніх бічних елемента. Вони виставляються по рівню, після чого до підлоги і стелі кріпляться металевими або пластиковими куточками.


ыщывпывпдыврпд2
Якщо шафа розділена на 2 або більше вертикальних секцій, то аналогічно встановлюються й проміжні панелі. 
Установка полиць.
Далі размечаете за допомогою рулетки і гідрорівня точки кріплення полиць і прикручуєте саморізами пластикові куточки, які власне і ляжуть полиці.
Оптимальна відстань для полиць в шафі 35 див. 
Монтаж верхньої і нижньої панелі.
У заводських шафах прийнято монтувати ще панель на підлозі і панель на стелі, вони кріпляться металевими куточками.
Ви теж можете так зробити, виглядає це добре, але я не бачу сенсу платити за 2 зайві панелі, тому як:

На ці куточки потрібно укласти полиці і зафіксувати їх саморізами.
Полки до куточків саморізами кріпити обов’язково! В іншому випадку під вагою речей в шафі вони можуть зіскочити.

Вирізаємо пази під навіси.
Дверцята у шафах з ЛДСП найкраще навішувати за допомогою меблевої фурнітури.
Щоб закріпити на панелі такий навіс потрібно спочатку вирізати кругле глухе отвір.
Такі пази вирізаються спеціальної коронкою, коштує вона не дорого. Просто вставляєте таку коронку в дриль і вирізуєте паз. 
Кріпимо навіси.
Тут також все просто — навіс вставляється в паз і фіксується саморізами. 
Кріпимо ручки.
Тепер нам залишається тільки просвердлити в дверках отвори під ручки і закріпити ручки.
Фасад як головний елемент красивого шафи
Зробити дверцята із ЛДСП не складно і виглядають вони добре, але унікальним такий шафа не назвеш. Далі я вам розповім, як зробити реально красиві дверцят шафи для з дерева своїми руками.


Дерев’яні дверцята з жалюзі стануть справжньою прикрасою вашого шафи.
Ілюстрації Рекомендації 
Пристрій дверей.
На фото зліва показано загальне влаштування таких дверей.
- У вертикальних стійках дерев’яної рами заздалегідь вирізаються похилі пази, в які вставляються тонкі дерев’яні ламелі;
- Горизонтальні поперечки кріпляться до рами на дерев’яні меблеві шканты, все це склеюється. Загалом, конструкція збирається практично без єдиного цвяха.

Рекомендовані параметри.
Всі параметри на схемі розроблялися під певну модель, нам не обов’язково її копіювати, але розміри ламелей і відстань між ними бажано зробити по аналогу.
Кут нахилу я підбирав досвідченим шляхом, але в будь-якому випадку він повинен бути більше 45?.
Глибина пазів під ламелі повинна бути не менше 5-7 мм
Інші параметри є на схемі. 
Прорізаємо пази.
Щоб зробити дійсно красиві й рівні дерев’яні жалюзі нам знадобляться 2 речі:
Кондуктор можна знайти на будівельному ринку, коштує відносно не дорого, але якщо є бажання, то його нескладно зібрати своїми руками, пристрій ви бачите на фото зліва.
Теоретично такі пази можна вибрати за допомогою стамесок, але ця робота вимагає навику.

Шліфування і складання.
Тут є важливий момент: всі елементи таких дерев’яних дверей спочатку шліфуються, а тільки потім збираються.
Для шліфування я використовував шліфувальний пелюстковий круг на болгарку. Такі кола є і під електродриль. В крайньому випадку, шліфуйте руками.
Далі сметаете пил і збираєте двері на клей для дерева. 
Декор дверей.
Коли двері зібрані, їх потрібно покрити морилкою і коли вона висохне, кілька раз «пройтися» лаком. 
Навішуємо двері.
Найкраще такі навішувати двері на дерев’яний брус, закріплений по периметру вбудованої шафи.
Вам потрібно просто ножівкою і стамескою вирізати пази під навіси-метелики і прикрутити їх на саморізи. 
Двері для шафи купе.
Змонтувати розсувні двері для шафи купе також нескладно:
- Знизу і зверху рами, строго горизонтально потрібно закріпити напрямні, по яких будуть «ходити» двері;
- На дверній панелі, яка найчастіше робиться з ЛДСП, кріпиться фурнітура, зображена на схемі ліворуч;
- Після чого двері вставляються в направляючі і можна користуватися.
Єдиний неприємний момент-це висока ціна на таку фурнітуру. 
Цікаве рішення.
По суті, саме головне в гарній шафі — це фасадна панель, її зібрати простіше, ніж монтувати весь шафа.
Так от, щоб не возитися з «нутрощами» шафи, можна купити розбірні стелажі для складів і встановити їх у шафу.
Висновок
Як бачите, шафа на балкон своїми руками зробити не так складно, як може здатися. Вибирайте будь-який з вподобаних варіантів, всі вони перевірені і надійні, на відео у цій статті також є цікаві рішення. Якщо є бажання поділитися власним досвідом або залишилися питання, пишіть в коментарі, це буде корисно всім читачам.


Простий і зручний шафа на основі складських стелажів буде гарною підмогою в господарстві.
