Під назвою Піноплекс ховається звичайний екструдований пінополістирол, який, як відомо, має свою область застосування. Але рекламний пресинг торгової марки настільки великий, що багато хто вже вважають само собою зрозумілим застосувати Піноплекс всюди. І в цьому криється серйозна помилка, – по-перше, значні гроші витрачаються без всякої користі, по-друге, наноситься шкоди конструкціям будинку. Але про все по порядку…
Розхожа жарт про неправильному використанні “Снікерса і Тампакса”, через відсутність розуміння того, що ховається під цими назвами, точно описує ситуацію з Піноплекс. Сліпе слідування рекламних буклетів призводить до неоднозначних ситуацій.
Вигідно застосовувати Піноплекс
Нормативи рекомендують приватникам створювати економічно доцільне утеплення, щоб воно окупалось при існуючих цінах на енергоносії через певний проміжок часу – до 12 років. Тому в проектній документації на приватні будинки та квартири закладаються теплоізолятори досить надійні (довговічні), але помірної ціни – утеплення повинно бути вигідним для власника.
В проектах не зустрінеш занадто дорогого піноскла. Але зате широко використовується дешевий спінений полістирол (пінопласт) високої щільності.
У проектах будинків екструдований пінополістирол передбачається строго за призначенням.
Ніхто не буде закладати екструдований пінополістирол там, де може застосовуватися пінопласт, який значно дешевше. Інакше сенс утеплення втрачається, – воно просто не окупиться в нормальні терміни, а порушення нормативу загрожує позбавленням ліцензії на проектування, наприклад.
Чим особливим відрізняється екструдований пінополістирол
Виробництво Піноплекс виконано методом екструзії, який вперше був застосований в США півстоліття тому. Полістирол, що спінюється хімічною реакцією при великих тиску і температурі. В результаті утворюються зовсім маленькі клітинки – до 0,2 міліметрів, з майже однаковими розмірами. А також повністю замкнуті, на відміну від пінопласту.
Екструдований полістирол набуває наступні відмітні властивості:
- Підвищену міцність на стиск – від 0,2 МПа до 0,6 Мпа в залежності від щільності, яка може перебувати в межах від 25 кг/м куб. до 50 кг/м куб., які можна укладати під покриттям автомобільної доріжки.
- Практично нульове водопоглинання, – можна застосовувати в грунті без захисту.
- Майже повна відсутність проникності для водяної пари – на стіні з будь-якого звичайного будівельного матеріалу, шар екструдованого пінополістиролу товщиною від 2 см, виявиться пароизолятор, стіна придбає підвищену вологість.
Де і коли правильно застосувати цей теплоізоляційний матеріал?
Розміри Піноплекс, види
Піноплекс випускається під назвами “Стіна”, “Фундамент”, “Покрівля”, “Дорога”, “Універсальний”… Від назви до назви змінюється в основному щільність 25 кг/м куб. для “Стіна” до 40 кг/м куб. для “Дорога” та відповідно міцність матеріалу.
Стандартна щільність звичайного екструдованого пінополістиролу для широкого застосування становить 35 кг/м куб. Але у випадку з Піноплекс, наприклад типу “Універсальний”, даються дещо суперечливі дані – щільність від 28 до 34 кг/м куб. Очевидно прагнення економити при виробництві, – пропонується більш міцний, легкий матеріал з трохи збільшеним водопоглощеннием тобто як би “Економ-Лайт-екструдований пінополістирол».
Але, ймовірно, що і у інших виробників, продукція може бути “полегшеної” або навіть не відповідати заявленим технічним характеристикам…
Розміри листа утеплювача Піноплекс зазвичай складають 600х1200 мм, Товщина варіюється, може бути 20, 30, 40, 50, 60, 80, 100 (мм).
Помилки в застосуванні Піноплекс
Типова помилка застосування Піноплекс пов’язані скоріше з вірою в якісь “чудодійні” властивості матеріалу, або із звичайним небажанням вникати в питання.
Кочують бригади утеплительщиков нав’язують свою думку по теплоізоляції шукаючи свою вигоду. Нерідко нав’язують Піноплекс, як більш дорогий матеріал для утеплення стін, підлоги, покрівлі, замість відповідних економічної або технічної доцільності пінопласту або мінеральної вати.
А щоб господарям не здалося занадто дорого просто застосовують для утеплення стін листи товщиною 20 мм або 30 мм.
Ефект теплозбереження, від такого тонкого шару утеплення мінімальний, або навіть практично не помітний. А значні витрати на приклейку і штукатурку по технології Мокрий фасад є викинутими даремно грошима.
Таким чином теплоізолятор екструдований пінополістирол наклеєний на велику площу стін приносить значний збиток власникам.
До того ж пароізоляцію майже безболісно витерпить тільки дуже щільний бетон. Цегла ж і пористі матеріали легко придбають підвищену вологість, як всередині приміщення, що не дуже корисно. А у випадках неякісної обклеювання, по краях площі, якихось витоків пари крізь зовнішню шкаралупу цілком можливо і замочування стіни кондесатом утворюється на межі стіни і утепплителя.
Також до кроквяних системах, в дерев’яних перекриттях, в контакті з деревом, фахівці в основному рекомендують застосовувати паропроникні утеплювачі, провітрювані ззовні, забезпечують довговічність конструкції. До того ж пінополістирол всередині приміщення невідповідний з пожежним вимогам, вкрай небезпечний при плавленні, без огорожі від житлового простору неспалимою перегородкою…
Як будинок утеплюється зовні піноплекс
Як утеплити Піноплекс
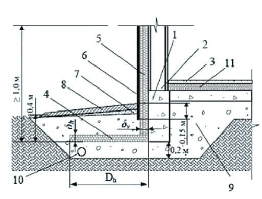
Піноплекс, як і будь-який інший екструдований пінополістирол відповідно з рекомендаціями виробника добре підходить для утеплення ґрунту навколо будинку при зведенні мілкозаглублених фундаментів. Укладений під вимощення, він надійно захистить грунт від опадів і морозу.

Для утеплення фундаментів рекомендується застосовувати екструдований пінополістирол. При цьому він наклеюється на обмазувальну гідроізоляцію, утворюючи з нею міцний теплоізоляційний та водотривкий шар.
Важливо проклеїти шви (шип-паз) між плитами утеплювача.
Але екструдований пінополістирол не можна застосовувати з матеріалами, які його руйнують.
З чим не можна застосовувати Піноплекс? – далі наведено речовини, з якими не повинен контактувати екструдований пінополістирол.
Наступний список речовин, які допускаються до контакту.
Якщо прийнято рішення з якихось міркувань утеплювати стіни піноплекс (можливо через заяви виробника про великий довговічності матеріалу…), то технологію мокрий фасад потрібно зробити принаймні правильно.
- Знизу і зверху обриваються шар утеплення повинен бути захищений відповідними планками.
- Забезпечується рівна міцна поверхня стіни, на яку буде вестися наклейка.
- Листи наклеюються відповідним клеєм, з максимально-найбільшою площею щільного контакту зі стіною на клеї… А також багато іншого ….
Детальніше як утеплити фасад будинку та інші стіни за допомогою технології мокрий фасад самостійно, можна ознайомитися тут….
