X ЗАКРИТИ
Зміст
- 1 Загальні відомості про конструктивних вузлах навісного фасаду
- 1.1 Нормативні документи
- 1.2 Типові вузли навісного фасаду
- 2 Конструктивні особливості основних вузлів
- 2.1 Кріплення кронштейна до несучої стіни
- 2.2 Кріплення напрямних планок до кронштейнів
- 2.3 Віконні і дверні укоси
- 2.4 Кути будівлі, цоколь і парапет
- 2.5 Протипожежна відсічка
Вентильовані фасади (вони ж вентфасади, вони ж навісні фасади) сьогодні є одним з найбільш популярних рішень у зовнішній обробці житлових і громадських будівель. Причин цьому кілька – це і відмінні експлуатаційні якості фасадів навісного типу, і естетичний зовнішній вигляд підсумкової поверхні, і достатньо простий монтаж…
У будь-якому випадку -навісний фасад варто того, щоб бути розглянутим як варіанти оздоблення вашого будинку.


Загальний вигляд вентильованого фасаду
Загальні відомості про конструктивних вузлах навісного фасаду
Нормативні документи
Приступаючи до аналізу основних вузлів навісних вентильованих фасадів, слід зазначити, що кожен виробник фасадних систем розробляє ці (або аналогічні за призначенням) вузли самостійно.
Але при цьому переважна більшість виробників орієнтується саме на компонування вузлів, описану в документі під назвою «Рекомендації по проектуванню навісних фасадних систем».
Зверніть увагу! Згадані Рекомендації датовані 2002 роком, і тому, приступаючи до проектування, не слід буквально копіювати наведені в них інженерно-технічні рішення. Можливо, у більш сучасних розробках потрібний вам сайт оптимізований і виконаний більш раціонально!


Елементи конструкції
Важливу роль при виборі виробником фасадної системи тієї або іншої конструкції вузла має і ціна комплектуючих. Ось чому підходити до вибору конструкції для навісного фасаду потрібно виважено – не завжди найбільш дешеве рішення буде оптимальним.
Типові вузли навісного фасаду
Втім, як ми вже відзначали вище, типові вузли навісного фасаду залишаються одними і тими ж — незалежно від фасадної системи.
Як правило, фахівці виділяють наступні вузли:
- Вузол кріплення кронштейна до несучій стіні;
- Вузол кріплення напрямних планок до кронштейнів;
- Вузол віконного укосу;
- Вузол зовнішнього/внутрішнього кута;
- Вузол цоколя/парапету;
- Вузол установки протипожежної відсічення.
Нижче ми проаналізуємо особливості конструкції цих вузлів. Також слід зауважити, що крім даної статті у мережі широко доступна технічна інформація по влаштуванню даних вузлів.
Так що якщо ви вирішили серйозно підійти до питання проектування фасаду, то вам досить буде задати в пошуку запит «вузли вентильованого фасаду dwg» — і у вашому розпорядженні буде достатня кількість креслень.
Конструктивні особливості основних вузлів
Кріплення кронштейна до несучої стіни
З допомогою кронштейнів основна частина каркаса навісного фасаду – напрямні рейки – кріпиться до несучої стіни. Ось чому до міцності даного сайту пред’являються підвищені вимоги.
Особливості даного сайту наступні:
- Для закріплення кронштейна на несучій стіні використовується анкерний дюбель.
- При кріпленні в щільні стінові огородження (бетон, повнотіла цегла і т. д.) рекомендується застосування анкерних дюбелів з металевою гільзою. Для крихких матеріалів, таких як черепашник або саманний цегла, переважно використання пластикових гільз.
Рада! Для кріплення кронштейнів до основи необхідно застосовувати анкерні дюбелі з корозійно-стійких матеріалів.


Дюбель з металевою гільзою
- Між стіною і опорною частиною кронштейна встановлюється паронітові прокладки.
- В залежності від типу фасадної системи всі кронштейни або кріпляться за однією схемою, або ж поділяються на несучі і опорні.
- Несе кронштейн приймає як вітрове навантаження, так і вертикальну, а опорний – тільки вітрову. Як правило, для фіксації опорного кронштейна необхідний один анкер, а для несучого – два і більше. Більш докладно спосіб кріплення описує інструкція тієї фасадної системи, яку ви виберете для установки.
На фото в цій статті представлена типова схема даного сайту.


Кріплення кронштейна
Зверніть увагу! В деяких системах використовуються складові кронштейни, які дозволяють компенсувати нерівності стінового огородження за рахунок зміни довжини. Також особливі кронштейни встановлюються на кутах будівлі.
Кріплення напрямних планок до кронштейнів
Наступний по значимості вузол – це вузол кріплення напрямних рейок фасадної системи до кронштейнів. В якості направляючих в навісних фасадах використовуються вертикальні і горизонтальні металеві профілі.
Крок направляючих визначається габаритами і вагою облицювальних матеріалів. Приміром, вентильований фасад з керамогранітних плиток монтується на каркас з кроком, відповідним розміру самої плитки – як правило, 600 мм.


Варіант кріплення напрямної
Для кріплення напрямної до кронштейна використовуються або заклепки, або (рідше) – гвинтові кріплення. Для кріплення найчастіше в кронштейні проробляється овальний отвір – так напрямна отримує відносну свободу при температурній деформації.
Технологію складання каркаса на кронштейнах ви можете вивчити за допомогою відео інструкцій.
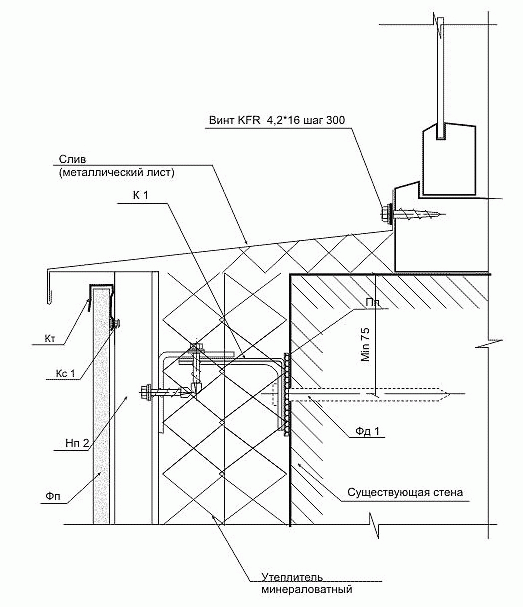
Віконні і дверні укоси
Віконні і дверні укоси являють собою обрамлення віконних і дверних прорізів. Розрізняють верхні і бічні укоси, в той час як нижній укіс носить назву водовідливу.
Вузол верхнього укосу навісного фасаду є ланкою, яка поряд з протипожежної відсіченням визначає загальну пожежну безпеку всієї конструкції.
Для запобігання попадання вогню всередину фасаду при загорянні усередині приміщення у вузлі укосу монтується так званий протипожежний короб:
- Протипожежний короб в різних фасадних системах може бути виконаний як єдиної конструкцією, так і у вигляді збірних елементів.
- У внутрішню порожнину протипожежного короби укладається мінеральна вата або вкладиш з іншого негорючого матеріалу.
- Протипожежний короб жорстко кріпиться до стін за допомогою металевих анкерів.
Нижній вузол – відлив – також повинен бути спроектований дуже ретельно. Пов’язано це з тим, що саме нижній вузол забезпечує доступ повітря всередину вентильованого фасаду.


Креслення вузла водовідливу
Кути будівлі, цоколь і парапет
Внутрішні і зовнішні кути навісного фасаду, як правило, монтуються з використанням спеціальних кутових стійок і елементів облицювання. Якщо ж подібні елементи відсутні, то кут, як правило, перекривається металевим нащельником.
Цоколь і парапет являють собою досить складні для проектування вузли навісного фасаду. Пов’язано це, в першу чергу, з необхідністю розміщення на цоколі парапеті витяжних і припливних отворів.


Цокольна частина фасаду
Зверніть увагу! Розміри отворів визначаються шляхом розрахунку тепловологових характеристик фасаду. Такий розрахунок повинен виконуватися тільки підготовленими фахівцями!
Протипожежна відсічка
Ще один сайт, який варто згадати – це протипожежна відсічення:
- Протипожежна відсічення – це металева пластина (цільна чи перфоровані), яка монтується в зазорі по периметру фасаду будівлі.
- Головне завдання відсічення — запобігання поширення горіння вітрозахисною плівки всередині фасаду.
- Відсічення встановлюється на кронштейни за допомогою заклепок. Якщо використовується суцільнометалева відсічення, то вона монтується таким чином, щоб не перешкоджати вільній вентиляції фасаду.


Схема установки відсічок в системі навісних фасадів ALUCOM
Незважаючи на всю складність при проектуванні, основні вузли навісних вентильованих фасадів розроблені таким чином, щоб дати можливість зібрати фасад своїми руками. І нехай простий таке завдання не назвеш – але при належному рівні підготовки вона цілком реалізовується!
