При установці сантехнічного обладнання
важливо зробити правильний вибір на користь певної моделі. У даній статті мова піде про систему злив-перелив для ванни. Щоб розібратися який сифон краще, слід ретельно вивчити плюси і мінуси кожного виду зливальних систем. Правильно підібрана модель сифона буде додавати ще більше комфорту водним процедурам.
Зміст
Система злив-перелив: технічні особливості
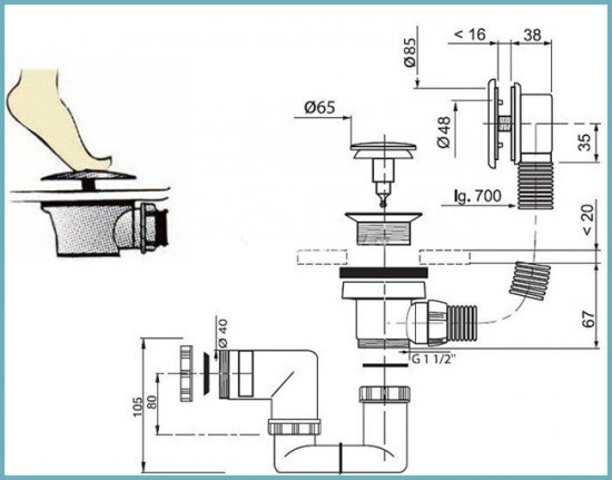
Обв’язка, вона ж система зливу-переливу, представляє собою конструкцію, що складається з герметично сполучених між собою патрубків. Саме вона забезпечує відведення стічної води в каналізацію, а також охороняє ванну від переповнення.
Схема: пристрій зливу для ванни
Система зливу-переливу обов’язково обладнується сифоном, який запобігає поява у ванній кімнаті неприємного запаху. Вода з переливного отвори надходить у каналізацію за допомогою допоміжного патрубка. Найчастіше використовується гофрована трубка, яку можна розтягнути до потрібного розміру і провести до зливу загнувши в будь-якому напрямку.
Рада! При виборі зливної системи, необхідно звернути увагу на всі зовнішні деталі, якими обрамляються отвору ванни. В якісному продукті вони виконані з нержавіючої сталі.
Купуючи зливну систему для ванни, обов’язково варто звернути увагу на якість виконання деталей. Також важливо перевірити наявність ущільнювачів і манжет, відсутність одного з них обов’язково призведе до потопу після першого ж наповнення ванни. Ущільнювачі необхідні, щоб забезпечити герметичність конструкції і виключити протікання.
Сифон з системою злив-перелив для ванної
На даний момент існує великий вибір обв’язок. Від простих пластикових сифонів, до конструкцій з хромованого металу з особливим орнаментом. Сучасні технології дозволяють задовольнити вимоги найвибагливіших покупців. Системи зливу-переливу поділяються на:
- простий сифон, оснащений пробкою;
- система напівавтомат;
- автоматична система злив-перелив;
- автомат наливного типу.
Система злив-переливання напівавтомат
Кожна з цих систем має своїми достоїнствами і недоліками. І для того, щоб визначитися який злив-перелив для ванни краще, необхідно розглянути кожну конструкцію більш детально.
Недоліки і достоїнства автоматичної системи
Автоматична система зливу-переливу для ванни є однією з найбільш складних конструкцій. По своїй структурі вона мало чим відрізняється від будь-якої іншої. Головною особливістю такої обв’язки є обладнання її зливний частині клапаном типу «клік-клак».
Система дуже зручна у використанні і не вимагає ніяких додаткових пристроїв: поворотних важелів або запірних пробок. Легким натисканням користувач перекриває зливний отвір, а повторне дію дозволить воді йти в каналізаційну трубу. Дуже зручно, знаходячись безпосередньо у ванні управляти клапаном ногою. Досить просто наступити на нього стоячи під душем.
Схема: пристрій автоматичної системи зливу
Однак і в цієї системи є ряд мінусів, слід врахувати, що сифон-автомат – це:
Щоб набрати ванну, автоматичну систему зливу також потрібно буде закрити вручну
Важливо! Якість будь-якого продукту, що визначає його вартість. Чим нижче ціна, тим менше термін служби конструкції.
Слід також знати, що при виході з ладу пружини, що утримує клапан і приводить його в дію (найбільш вразлива частина автоматичної системи), виконується заміна повністю всієї конструкції.
Сифон напівавтомат і його кращі сторони
Напівавтоматична система злив-перелив, незважаючи на простоту використання, – досить складна конструкція. Крім стандартних герметично сполучених патрубків для відводу стічної води і переливний системи, моделі такого типу оснащені запірним клапаном, який приводиться в дію за допомогою встановленого на переливном отворі важеля. Виконаний він у вигляді декоративної ручки або вентиля.
Керувати такою системою зливу досить просто. Користувач повертає важіль управління на 90?° і перекриває шток піднімається, відкриваючи зливний отвір, а якщо провернути ручку у зворотному напрямку — шток опускається, даючи можливість наповнити ванну водою.
Схема: пристрій напівавтоматичного зливу для ванн
Працює система завдяки допоміжному тросику, натяг якого і дозволяє пробці підніматися і опускатися. Дизайн ручки керування клапаном може бути різноманітним. Найпопулярніші моделі оформляються у вигляді:
- кнопки;
- поворотного кільця;
- рукоятки;
- декоративного вентиля.
Переливний пристрій в таких системах ховається під ручку управління зливний конструкцією. Це надає обв’язку більш естетичний і стильний вигляд. Також однією з переваг такої системи є зручність використання. Повертаючи рукоятку, розташовану у верхній частині ванни, користувачам не доводиться мочити руки або зайвий раз нахилятися до дна ванни.
Напівавтоматичний злив з декоративним ветнтилем
А якщо говорити про недоліки такої системи, то слід зазначити, що конструкція досить складна і має масу з’єднувальних і рухомих частин, а тому увагу необхідно приділяти тільки моделям відповідальних і сумлінних виробників, які вже зарекомендували себе на ринку сантехнічної арматури.
Існує різновид напівавтоматичної системи злив-перелив, яка дозволяє забезпечити наповнення ванни. Це найбільш складна з усіх автоматичних і напівавтоматичних обв’язок. Для монтажу такої конструкції необхідно підвести до нього водопровідних патрубків. З допомогою обв’язки такого типу можна виключити установку змішувача для наповнення ванни.
Економна система. Дешево і просто.
Найбільш проста конструкція зливної системи для ванної – це механічна система злив-перелив. У ній немає ніяких рухомих деталей або важелів і тому вона є найбільш надійним з усіх інших видів обв’язки.
Механічна система злив-перелив для ванни
Складається система з декількох основних частин:
Під’єднання пробки
Дана система дуже проста в зборі і монтажі, з нею може впоратися будь-яка людина, навіть не володіє поглибленими знаннями в сантехнічної галузі. Як правило, вихід з ладу такого сифона, обумовлюється зносом ущільнювальних з’єднань.
Рада! Щоб збільшити термін служби ущільнювальних манжет і прокладок, попередньо їх можна змастити силіконовою змазкою.
Пластик або метал?
Дуже часто покупці задаються питанням: «З якого матеріалу повинна бути виконана система злив-перелив?». У даний момент виробниками використовується декілька основних матеріалів для виготовлення обв’язки:
- пластик;
- чорний метал з хромованим покриттям;
- кольоровий метал;
- нержавіюча сталь.
Пластиковий сифон
Пластикові сифони відрізняються найбільш вигідною вартістю, та порівняно великим терміном служби. Але їх естетичний вигляд залишає бажати кращого. Те ж можна сказати і про системах з чорного металу. Компанії виробники зараз все рідше вдаються до використання такої сировини.
Кольоровий метал і нержавіюча сталь – найбільш дорогий матеріал, при цьому він практично не схильний до корозії. Вироби, виконані з такої сировини, володіють особливим стилем і можуть доповнити загальний вигляд в декоруванні ванної кімнати. Наприклад, якщо дизайнерської задумом була ванна кімната в стилі ретро, то сифон з обробленої латуні у ванній відкритого типу (без використання декоративного екрану) буде виглядати дуже органічно і стильно.
Латунний злив-перелив для ванни
При купівлі обв’язки для ванної завжди звертайте увагу на якість і бренд виробника. Це визначальні фактори у виборі зливної системи. Особливо це стосується закритих декоративними панелями і екранами ванн. Бажанням користувача є як можна рідше заглядати під ванну, тому краще встановити конструкцію найбільш високої якості, і таким чином, надовго застрахувати себе протікання.
Пристрій напівавтоматичного зливу: відео
Система зливу-переливу для ванни: фото







