Основні розміри дверей і типи конструкцій для ванної кімнати
Ремонт у ванній кімнаті передбачає своєчасний підбір вхідних дверей. Рівноправно беручи участь в організації дизайну приміщення, дверне полотно може привнести додатковий елемент естетики, головне – вибрати двері 550х1900 для ванної (стандартні розміри) правильно. Проблема виникає в тому випадку, якщо покупець бере конструкцію без ретельного «вивірення» розмірів, саме просто так, підбираючи дешевший, красивий (модний) варіант або за порадою друзів.
Так робити не рекомендується, адже ширина дверей у ванну кімнату зобов’язана відповідати дверного прорізу, а крім того, двері в ванній беруть участь в інтер’єрному оформленні двох приміщень: ванної кімнати та передпокою. Отже, полотно зобов’язана відповідати всім вимогам даних кімнат. Якщо хочете знати, як вибрати двері для ванної, варто ознайомитися з порадами професіоналів.
Як правильно вибирати двері для ванної? Типи конструкцій

Типи дверей для ванної
Варто почати з самого головного – типу конструкцій. Сьогодні виробники пропонують орні і розсувні двері для ванної 600х1900, 550х1900, 60 см та інші.
Орні двері в ванну кімнату – це стандартні конструкції, стулками, що відкриваються назовні в бік. Використовуються не тільки для ванних кімнат, але і, практично для всіх приміщень. Популярність обумовлена ціновою доступністю, різноманітністю колірних і дизайнерських рішень, простотою установки і навісу: відкриватися двері можуть вправо або вліво, залежно від бажання покупця. Крім того, виробники орних конструкцій пропонують велику розмірну лінійку і користувач може підібрати потрібний розмір двері у ванну кімнату.
Розсувні двері відрізняються тим, що у них більш проблемна установка, та й ціна трохи вище. Але є величезна перевага перед будь-якою іншою конструкцією – економія місця. При відкритті така двері йде уздовж стіни або в неї, не займаючи чверті кола з будь-якою з сторін ванної кімнати. Якщо ширина дверей у ванну не дозволяє ставити орні, розсувні конструкція буде в самий раз.
Міжкімнатні скляні двері може бути як повністю зроблений зі скла, так і зі вставками. Яка ж двері краще для ванної – вибирати вам, але глухі звичайні конструкції з затемненим або дзеркальним полотном добре приховують внутрішнє оздоблення ванної. До речі, дзеркальне скло допоможе вирішити проблему з дзеркалом в дуже невеликому коридорі. Головне – враховувати розміри дверей для ванної кімнати, у разі нестандартного рішення, конструкції доведеться робити на замовлення. Скляна двері добре вписується практично в будь-який інтер’єр, а виконана з вітражами або візерунковим малюнком, може стати непоганим дизайнерським рішенням, на основі якого буде побудований весь стиль приміщення.
Які двері у ванну краще, вирішувати тільки покупцеві, але перш варто ознайомитися з матеріалом, з якого можуть бути виготовлені конструкції.
Сировину та вихідні матеріали для виготовлення дверей в санвузол
Важливо! Підбираючи для свого будинку матеріал, важливо враховувати довговічність, зносостійкість, практичність і дизайн. Крім того, пам’ятайте: ванна кімната – приміщення з підвищеною вологістю і перепадами температур, тому несхильність конструкції корозії і деформації також важлива, як і зовнішній вигляд.

Міжкімнатні двері зі скла
- витримує перепади температур, пряме попадання води;
- не іржавіє і не деформується;
- стійко переносить випадкові механічні впливи;
- проста в догляді та встановлення;
- може бути виконана в різних колірних рішеннях, прикрашена візерунками, малюнками або вітражними композиціями.
Окантовка таких конструкцій також буває різною: метал, пластик, дерево – яку вибрати двері для ванної, вирішувати тільки вам.

Варіанти пластикових дверей
- простота монтажу;
- повна несхильність воді, парі, перепадів температур, випадкового удару;
- величезний термін експлуатації (при фабричному виготовленні з дотриманням вимог стандарту);
- вибір форм, дизайну, відтінку і покриття (бувають матові і глянсові варіанти);
- висока якість.
Але є і недолік: кустарні конструкції часто виготовляються з порушеннями норм, з матеріалу дуже низької якості. Бо можуть деформуватися або виконуватися «з допуском». Цього можна уникнути, варто лише уточнити розмір стандартної двері у ванну або запам’ятати розмір дверного отвору ванни, щоб знати, які вибрати ванну для вашої квартири.

Варіанти дверей з покриттям з ламінату
Важливо! При виборі потрібно врахувати, що стандартний дверний отвір у ванній – досить рідкісне явище, тому висота двері у ванну кімнату квартири, як і ширина, повинні бути реальними, а не «на око».
Якщо ви вибираєте, яку двері поставити у ванну, варто звернути увагу на більш дорогі пропозиції. Отже, вибираємо двері у ванну кімнату подорожче:
Важливо! Установка дерев’яних дверей може проводитися самостійно. Потрібно врахувати при виборі конструкції розмір дверної коробки в ванну, не завадить точна висота дверей у ванній. Крім того, потрібно переконатися, що конструкція належним чином оброблена захисним покриттям та не стане реагувати на перепади температури, вологість.
Від чого залежить розмір двері

Стандартні розміри дверей
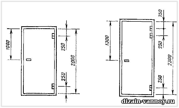
Стандартні розміри дверних коробок для ванної в звичайному будинку: 200х70 див. Але розмір дверей для ванної залежить від конкретно взятої будівлі (старі будинки типу сталінки, хрущовки, типові будівлі, будинки підвищеної комфортності). Все пов’язано з прийнятими нормами будівництва. Важливо знати, що розміри, як і види дверей у ванну бувають різними:
- 70 см – стандарт ширини;
- 80 см – звичайна ширина дверцят суміщеного санвузла;
- 90 см – нестандартний отвір для дверей у ванну, куди вставляється полотно, виготовлене за індивідуальним замовленням.
Важливо! Товщина дверної коробки в ванну залежить від товщини стін. Зазвичай, береться 1-1,5 см, значить, коробка повинна бути більше на 2 див.
Які бувають розміри?
Розміри дверного отвору у ванну мають свої власні особливості, але тільки знаючи їх, можна визначити, які потрібні двері у ванну. Поріжок обов’язково робиться на висоту, трохи більшу, ніж рівень підлоги, а ось висота дверей 190х55 для ванної – це не зовсім стандарт, часто зустрічається 200, як і двері в інші кімнати квартири.
Продумуючи, які потрібні двері для ванної, варто виміряти отвір: купівля однакових полотен для всієї квартири може обернутися повним провалом, ваша ванна може виявитися не зовсім стандартної і двері для ванної 55 см буде кращим варіантом. Тому заздалегідь проведені проміри вбережуть від марної трати грошей. І не треба приймати за аксіому ширину 60 см – це найбільш розповсюджена величина, але не постійна.
Важливо! Вибираючи, які двері ставити у ванній, не забувайте: величину отвору проміряти від краю стіни! Професіонали не радять робити це «на око».
Від матеріалу, розмірів і дизайну залежить ціна конструкції. Перш, ніж планувати установку, потрібно дізнатися, скільки коштують двері у ванну, і вирішити всі нюанси, щоб ремонт не обійшовся дорожче, ніж ви хотіли.
