Читайте в цій публікації:
Інсталяція для раковини: як вона влаштована
Інсталяція раковини у ванну: навіщо потрібна
Система інсталяції для раковини: які бувають
Інсталяція для раковини своїми руками: установка
Сучасна ванна кімната відрізняється від свого попередника значною мірою – це не тільки багате оздоблення приміщення і новомодна сантехніка. Основна відмінність ванної кімнати минулої епохи від сучасної полягає у відсутності видимих водопровідних комунікацій – вся нинішня сантехніка розроблена так, щоб на поверхні (в полі зору людини) залишалося тільки все найнеобхідніше. Багато в чому цьому сприяють системи інсталяції, розроблені для кожного окремо взятого сантехнічного приладу. У цій статті разом з сайтом vannaja.net ми розберемося з питанням, що таке інсталяція для раковини – ми вивчимо її конструкцію, ознайомимося з різновидами і розглянемо принцип самостійної установки.

Інсталяція раковини у ванну фото
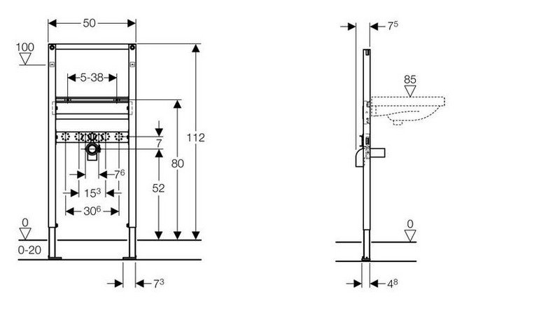
Інсталяція для раковини: як вона влаштована
За великим рахунком, інсталяція для раковини – це не що інше, як металева рама, зібрана з профільної труби. У більшості випадків її габарити складають 350-500мм по ширині, 350-1300мм по висоті і максимум 75мм по глибині (товщині). В принципі, у продажу можна знайти і більш серйозні рами, глибина яких може досягати 200мм – використовуються такі інсталяції у більшості випадків для масивних і великих умивальників. Саме ці габарити обумовлюють розмір настановної ніші – так-так, установка інсталяції відбувається або в заздалегідь підготовлену нішу, або за гіпсокартон. Крім усього іншого, на рамі цього виробу знаходяться і інші пристосування, що полегшують її монтаж і підключення самої раковини.

Система інсталяції для раковини фото
Найцікавіше, що всі ці конструктивні елементи, а вірніше їх місцерозташування на рамі ретельно продумано і розраховано. В сенсі того, що якщо ви вішаєте раковину на шпильки, то сифон, встановлений на ній, повз каналізації не потрапить. Саме в цьому і полягає одна із основних ідей, пов’язаних з використанням інсталяції для підвісної раковини. Монтажнику-сантехніку життя і робота полегшується значною мірою – про те, як проводиться монтаж інсталяції, дивіться в цьому відео.
Інсталяція раковини у ванну: навіщо потрібна
За великим рахунком, досвідченому сантехніку не складе ніяких труднощів встановити раковину і без використання інсталяції – труби (як водопровідні, так і каналізаційні) досить легко ховаються в стіну, а розташування їх випусків елементарно розраховується. Загалом, використовувати дорогу раму для раковини не завжди доцільно. За великим рахунком, існує всього кілька ситуацій, точніше одна, але в двох варіаціях, в яких без інсталяції практично не обійтися.

Інсталяція для умивальника фото
У всіх інших випадках купувати дорогу настановну раму для раковини не має ніякого сенсу. Тут слід зрозуміти одну просту істину – на жорсткі блокові або цегляні стіни умивальник відмінно встановлюється і без інсталяції і при цьому зовсім не обов’язково підпирати тумбою або тюльпаном.
Система інсталяції для раковини: які бувають
За великим рахунком, якщо на інсталяцію дивитися глобально, то класифікувати всі вироби цього типу можна всього по парі ознак – за типом і способом установки і по наявності і типу підключається до раковині змішувача. В принципі, це і є основні моменти вибору, на які необхідно звертати увагу в першу чергу.

Інсталяція для раковини фото
І це ще не все – підводки інсталяції можуть передбачати установку всього одного крана для холодної або гарячої води. Як варіант, інсталяція з одного підведенням може бути використана для вбудованого в стіну змішувача. Загалом, в цьому відношенні може бути маса варіантів, на які не звертати уваги буде, щонайменше, неправильно.
Інсталяція для раковини своїми руками: установка
Якщо ви вважаєте, що самостійний монтаж інсталяції є досить складним процесом, то ви трохи помиляєтеся. Так, як і скрізь, в цій справі є свої тонкощі, але в цілому все виглядає досить нескладно.

Інсталяція для раковини своїми руками фото
В принципі, це і вся відповідь на питання, як самостійно встановити інсталяцію для раковини? Так, є тонкощі і в більшості випадків вони пов’язані виключно з сантехнічними справами – пайкою і складанням трубопроводів. В цілому ж, монтаж інсталяції є досить простою справою, з яким при правильному підході в змозі впоратися практично кожна людина.
І на закінчення теми, інсталяція для раковини, скажу кілька слів з приводу якості продукції цього типу і виробника, від якого, як відомо, залежить багато чого. Сказати тут можна тільки одне: інсталяція – це така штука, яка муруется в стіну надовго, і буде трохи неприємно, якщо з якихось причин її звідти доведеться діставати раніше часу. Саме тому купувати інсталяцію для раковини краще від перевіреного виробника – наприклад, Geberit або Grohe. Як варіант, Viega або Sanit – це взагалі оптимальний за ціною і якістю варіант.
