Однією з основних цілей сучасного дизайну ванних кімнат є створення зручних, практичних, красивих інтер’єрів. Адже це приміщення характеризується високим рівнем прохідності. Наповнити приміщення санвузла позитивною атмосферою, зробити акцент на красі чаші і забезпечити раціональне зберігання побутової хімії допоможе така конструкція як екран для ванни. Далі про те, що таке екран під ванну розміри які бувають у таких виробів і як підібрати оптимальні габарити.
Розміри екранів під ванну в залежності від його виду
Зміст
- 1 Розміри екранів під ванну в залежності від його виду
- 1.1 Суцільний
- 1.2 Розсувний
- 1.3 Складної форми
- 2 Оптимальні габарити
- 3 Відео про екранах для ванни
Конструкція, що займає простір під ванною від бокового борту і до підлоги, і маскує непривабливе простір і системи комунікації, називається екран під ванну. Це багатофункціональний винахід, допомагає надати приміщення санвузла комфортабельність, привабливість, практичність. Розміри таких конструкцій можуть бути дуже різноманітними, визначаються видом моделі і підбираються індивідуально під конкретну чашу.
Суцільний
Інтер’єр ванної заміського будинку чи квартири повинен сприяти розслабленню і відпочинку людини, тому дизайн цього простору повинен неодмінно бути привабливим, зручним, оригінальним. Завдяки вдало підібраному екрану для ванної можна домогтися не тільки мети, але і раціонально вирішити питання зберігання побутової хімії в санвузлі.
Естетична функція, а також можливість приховати непривабливі труби під ванною — все це допоможе вдала модель екрану під ванну. Різноманітність форм, розмірів, видів таких виробів сьогодні на ринку сантехніки здивує будь-кого. Відмінним варіантом виступає такий різновид як суцільна конструкція з наступними розмірами.



Позитивним моментами, які характерні такому винаходу для санвузла, вважають такі якості:
- легкість та швидкість монтажу, мінімальні матеріальні витрати на установку конструкції. Потрібно організувати каркас з рам, на який монтується суцільна панель. Це можна зробити своїми руками при мінімальному досвіді в подібних питаннях;
- високі естетичні якості — суцільний екран може бути виконаний з різних матеріалів, в тисячі колірних відтінків, мати оригінальну фактуру під дерево, натуральний камінь, інші поверхні;
- довгий термін служби, практичність, невимогливість у догляді.
Недоліками суцільний моделі називають такі якості як:
- обмеженість доступу до комунікацій — при проблемах з трубами під ванною, швидко відремонтувати поломку може бути досить важко. Адже суцільний екран потрібно повністю демонтувати, щоб дістатися до труб. А після ремонтних робіт потрібно знову встановлювати конструкцію. Якщо такі операції здійснюються занадто часто, зовнішній вигляд екрана і чаші може зіпсуватися;
- суцільна модель не дозволяє зберігати під ванною побутову хімію, що у разі маленького приміщення може бути катастрофічним браком. Хоча для просторого приміщення з продуманою системою шафок і поличок цей недолік практично не відчутний;
- ускладненість прибирання під ванною або за екраном може відлякати багатьох від придбання суцільного виду екранів під ванну.


Розсувний
Розсувний екран є дуже вигідною різновидом таких конструкцій для ванної кімнати, так як дозволяє отримати доступ до простору під ванною в будь-який час. Для цього достатньо розсунути стулки моделі, після чого можна здійснювати ремонт труб за такої необхідності або вимити підлогу під ванною.
Якщо ж сконструювати зручні полиці за екраном, то на них зручно зберігати побутову хімію, приладдя для ванних процедур або прання.
Легкість монтажу, привабливість і практичність у використанні зробили розсувні екрани неймовірно популярними сьогодні. Екрани розсувного типу одночасно маскують простір під ванною і водопровідні труби і не перекривають доступ до них при виникненні необхідності проведення ремонтних робіт.
Недоліком таких конструкцій є поломка розсувних і напрямних роликів, які через частого використання можуть прийти в непридатність. Але при правильному догляді і дбайливому використанні такі проблеми обійдуть вас стороною.
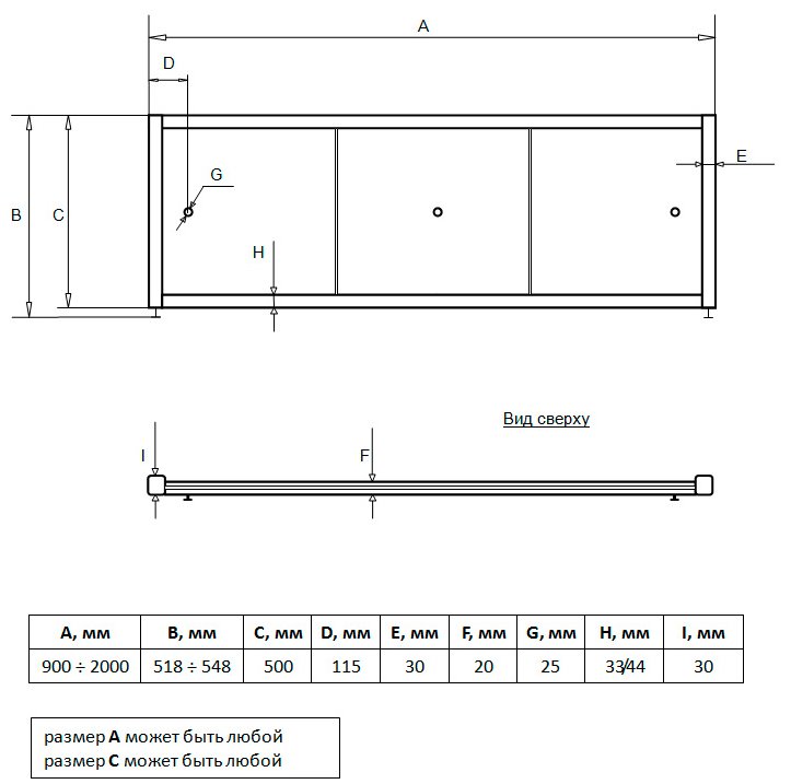
Розміри розсувного екрану стандартного типу можуть бути різними. Довжина варіюється від показника в 150 см і до 180 см. Висота становить 55-60 см, але може бути змінена за допомогою розсувних ніжок. А ширину підбирають індивідуально, виходячи з потреб власників ванній.





Складної форми
При бажанні і достатньому обсязі коштів можна виготовити для ванної екран складної форми. Це ексклюзивні моделі з оригінальним зовнішнім виглядом і нестандартними розмірами.
Конфігурація може бути різною і визначається власником ванної залежно від його фінансів можливостей і технічних переваг. Потрібно визначитися, актуальні в санвузлі дверцята шафки, полички як складові частини екрану під ванну. Якщо такі деталі актуальні, то складна форма цього виробу вам просто необхідна.
Щодо розмірів, то екрани складної форми можуть мати абсолютно будь-який розмір на вибір господаря санвузла. Так, можна підібрати мініатюрний варіант для крихітній ванні з розмірами 105х50 см або величезну модель 190х50 см для просторої чаші. Одним словом, можна вибрати варіант для будь-ванни. Але особливо цікавих варіантів і вартість буде на порядок вище, що потрібно враховувати при виборі екрану для санвузла.


Оптимальні габарити
Дуже важливо підібрати оптимальний розмір конструкції для конкретної чаші в санвузлі. Це дозволить вирішити відразу кілька дизайнерських і практичних завдань:
- раціонально організувати простір ванної, продумано використовувати простору під чашею;
- систематизувати питання зберігання побутової хімії;
- додати інтер’єру санвузли привабливість, позитивну атмосферу, особливий шарм;
- забезпечити чаші, трубах під ванною надійний захист від зовнішніх факторів негативного характеру.
Але як не помилитися у виборі, зробити вдалу покупку, підібравши вдалий розмір екрану для ванної? Перш ніж придбати будь-який з видів екрану для чаші в санвузлі, варто виконати виміри всіх сторін ванній. Це дозволить підібрати оптимальний за розміром виріб, яке встановиться без додаткових складнощів.
З товщиною визначитися досить просто. Чим більше цей показник, тим більш стійким до зносу буде конструкція. Але у випадку маленької ванної варто зупинити свій вибір на стандартній ширині 3 мм. Це дозволить заощадити і без того обмежений простір приміщення.
Щодо висоти екрану для чаш в санвузлі, то вона залежить від висоти установки самої ванної і змінюється від 50 см до 80 див. Стандарт — 50, 55 чи 56 див. Але якщо чаша встановлена досить високо, а зростання мешканців будинку вище середнього, то оптимальний параметр для екрану 80 див.
Оптимальна довжина екрана визначається довжиною ванної, для якої він призначається. Стандартний показник, який поширений на вітчизняному ринку більше інших, дорівнює 150-180 див. Він підходить для чаш довжиною 150-180 див.
Іноді варто підбирати більш довгу конструкцію, ніж довжина чаші. Якщо довжина приміщення санвузла нестандартна, і підібрати до неї оптимальну по довжині чашу складно, доведеться трохи схитрувати. Наприклад, при ширині приміщення 175 см можна придбати ванну 170 см, а екран 175 див.
Тільки потрібно придумати, як замаскувати дірку між бортами чаші та стіновий поверхнею. Але описаний випадок швидше виняток з правил про раціональному підборі розмірів екрану під чашу.



Відео про екранах для ванни
На відео демонструються різні моделі конструкцій для ванн.
