Душова кабіна – дуже зручна споруда, яка дозволяє істотно економити простір в маленькій ванній кімнаті, незалежно від того це квартира, будинок або дача. Виробники кабін для душа сьогодні можуть запропонувати своїм покупцям різноманітні нові види кабінок з безліччю додаткових функцій, наворотів. Коштують такі кабіни, м’яко кажучи, дорого. Можна заощадити — купити найдешевшу модель. Ну а можна капітально заощадити по-іншому — змайструвати душову кабінку своїми руками в будинку або квартирі.
Краще все зробити самому – план робіт
Зміст
- 1 Краще все зробити самому – план робіт
- 2 Плануємо місце
- 3 Визначаємося з матеріалами
- 4 Готуємо приміщення до гідроізоляції
- 5 Водопостачання, каналізація
- 6 Займаємося підлогою
- 7 Якими можуть бути стінки, вибираємо двері
- 8 Процес установки
- 9 Перевірка працездатності – завершальний етап
- 10 Звертаємо увагу на аксесуари
- 11 Незвичайний душ у приватному секторі
Побудувати містку кабінку для душу можна навіть в маленькій кімнаті. Кутове розташування душової кабіни дозволяє раціонально організувати простір ванної. Це можуть бути варіанти квадратної, прямокутної, напівкруглої форми. В подальшому, щоб вибрати двері вам необхідно буде враховувати ці особливості майбутнього душа.
Квадратна душова кабіна
Полугкруглая душова кабінка
Прямокутна душова кабінка
Безперечно, що така душова кабіна буде унікальна, але щоб зробити її необхідно добре попотіти над кожною деталлю. З особливою обережністю необхідно поставитися до проектування душової кабіни в дерев’яному будинку — потрібно знати, як правильно її підключити, вибрати всі необхідні аксесуари для компонування санвузли: шланги, змішувачі, картриджі, придбати плитку, цеглу та двері.
Перш ніж приступити до самостійного будівництва душової кабіни, слід визначитися з планом і послідовністю виконуваних робіт:
- плануємо місце для майбутньої душової;
- закуповуємо необхідні елементи;
- проводимо заходи щодо гідроізоляції;
- прокладаємо комунікації;
- монтуємо піддон;
- облицювання стін і вибір дверей;
- процес установки;
- перевірка працездатності конструкції;
- деталі, на які слід звернути увагу.
Окрема тема – установка душової кабіни на дачі. Тому дочитайте матеріал до кінця, і ви дізнаєтеся, який шедевр можна зробити власноруч! Якщо візьметеся за ремонт санвузла своїми руками, то придбаєте значний досвід з будівництва, порадуєте рідних, зможете з комфортом користуватися результатами своєї праці.
Плануємо місце
Дуже важливо, що займане місце для кабіни було зручним у користуванні: підведення комунікацій, можливість пересування по ванній кімнаті і зручне місце розташування атрибутики ванною та аксесуарів до кабінці. Особливо важливий цей момент в тому випадку, якщо ви не маєте додатковим простором. В цьому випадку, необхідно прорахувати розташування всіх деталей.
Визначаємося з матеріалами
В залежності від того, який ви хочете бачити душову кабіну в приватному будинку, слід здійснювати вибір матеріалів:
- увагу на стать: кабіна для душу з піддоном, з цегли, будівельної суміші;
- підлогу декорують плиткою або декорують мозаїкою;
- стінки — стеля: пластик, плитка;
- визначаємося з дверима в душ: скло, пластик.
Готуємо приміщення до гідроізоляції
Досвідчені фахівці настійно рекомендують зводити базове покриття підлоги на кілька десятків сантиметрів нижче від площини підлоги інших суміжних кімнат.
Для побудови кабінки в дерев’яному будинку необхідно провести ряд заходів, які захистять його стать, всі стінки від зайвої вологи. Для цього необхідно попередньо очистити оброблювану поверхню від сміття, залишків фарби, розлучень. Потім слід обробити поверхню швидковисихаючої грунтовкою, а потім приступати до наступним етапах:
- гідроізоляція приміщення: укладання вологостійкої ДСП з наступним покриттям полімерною плівкою, пергаміном. Розташовуються шари внапуск, бажано без утворення щілин. Всі стики обробляються мастильними матеріалами на основі бітуму. Після плівкового шару поверхня, призначена для душу, покривається цементно-піщаною стяжкою, яка додатково може бути прогрунтована водовідштовхувальним, протигрибковою сумішшю;
- в альтернативі на підлогу, а також стінки може бути використаний гіпсокартон, вагонка вологостійких марок, які зверху додатково обробляються антисептиками, а також покриваються фарбами на водовідштовхувальним основі;
- у дерев’яному приміщенні санвузла можна забувати про організації вентиляції, що дозволяє створити природний рух повітря після прийняття душу. Особливо актуально підключення механічного комплексу у ванній, де туалет поєднаний з душем.
Гідроізоляція повинна проводитися по всьому периметру приміщення. Якщо деякі ділянки стінки вирішили залишити, то їх потрібно обробити спеціальними комплексними сполуками. Убезпечити ванну в дерев’яному будинку від впливу гарячої пари або води можна, повністю ізолювати приміщення від решти площі шляхом створення герметичного душа. А підключення додаткового вентилятора дозволить збільшити термін експлуатації будинку.
Пам’ятайте, що гідроізоляційні роботи допоможуть захистити ваші не тільки стінки, але також підлогу від вологи, особливо якщо мова йде про дерев’яному приміщенні. Навіть якщо поламався картридж, виявлені несправні шланги, виник потоп, то при своєчасному усуненні цих проблем можете бути спокійні за цілісність всіх перекриттів у ванній.
Вид гідроізоляційного підлоги
Пол, покритий бітумною гідроізоляцією
Водопостачання, каналізація
Якщо вже визначилися з місцем для маленької душової кабінки в дерев’яному будинку, то насамперед необхідно приступати до монтажу каналізації і водопостачання майбутньої споруди:
- ставимо мітки, де буде розташовуватися змішувач;
- виводимо труби до стінки, де буде розташована душова;
- встановлюємо фільтри для води, впливають на її якість. Це дозволить зберегти картридж, гарантувати справну роботу змішувачів, всієї системи водопостачання, не засмічувати шланги різного роду домішками;
- деталі водопроводу з’єднуються за допомогою гнучкої шланги, акуратно прикручуючи всі деталі. Дуже важливо використовувати гнучкі шланги більшої довжини, що дозволить потім вільно коригувати місце душової кабінки;
- підключення каналізаційних труб стать майбутньої ванної.
Прокладка водопроводу
Перед тим, як підключити систему каналізації, водопостачання всі з’єднання каналізаційної труби, а також шланги слід обробити стрічкою фум, спеціальними герметиками, силіконом.
Схема розташування комунікацій в душовій кабіні
Підведення комунікацій
Займаємося підлогою
Не обов’язково купувати піддон – на ньому можна заощадити. Зробити піддон для ванної своїми руками можна за допомогою цегли. Своїми руками на підлогу викладається контур – півколо, квадрат, прямокутник. Герметизують основу цементним розчином. Альтернативою є використання на підлогу будівельної суміші з розчину цементу зі щебенем, якій повністю заливається основу. Перед заливкою необхідно встановити металеву сітку. Потім майбутній макет кабінки заливається стяжкою, выравнивающейся сумішшю. Після остаточної просушування можна переходити до етапу облицювання плиткою.
Оригінальне оформлення душової – косою підлогу. Про бортики можете забути, що спростить процес використання кабінки для душу, а також сприяє безперешкодному доступу до неї. Проектування такої підлоги повинно проводитися паралельно ремонту ванної. Тому потрібно правильно спланувати розміщення і підключення зливного отвору.

Робимо бортики
Заливаємо конструкцію
Укладаємо фінішний шар
Якими можуть бути стінки, вибираємо двері
Звернемо увагу на стінки: по конструкції душової 3 стіни можуть бути викладені їхні цегли, а потім своїми руками облицьовані плиткою. Двері можна купити зі склопластику.
Вихідний варіант

Для невеликого приміщення санвузла краще вибирати світлі тони плитки, що дозволяють візуально збільшити простір. Якщо передбачений кутовий варіант кабіни в дерев’яному будинку, то дві суміжні стіни облицьовують плиткою, а дві інші – купують склопластик.
При виборі дверей для ванної слід врахувати спосіб відкривання: орні або розсувні. Традиційний варіант – орні двері, що дозволяє експлуатувати її без особливих пересторог. Зверніть увагу, що для її установки необхідно розташовувати наявністю деякого простору. Але для маленької кабіни є вихід – використовувати дві розсувні двері. Їх легко встановити своїми руками. Більш складна конструкція розсувних дверей, що рухаються з розсувним роликам уздовж стінок кабіни. Міцними вважаються розсувні двері з металевими роликами і направляючими.
Процес установки
Основні роботи по будівництву душової кабіни завершені, тепер слід приділити увагу і установці дверей для душу. Двері з скла, порівняно з склопластиком – самий довговічний варіант. Але не гірший варіант зі склопластику. Їх без проблем можна замовити за індивідуальними розмірами та встановити своїми руками.
При установці скляного огородження необхідно нанести на піддон шар клею
Для цього необхідно:
- на оброблені поверхні підлоги, плитки і стелі за допомогою свердла робляться отвори;
- за допомогою дюбелів слід закріпити профіль;
- тепер закріплюється коробка для входу: перша частина кріпиться з усіх чотирьох сторін, а друга не кріпиться до однієї зі стін, з якої буде стикатися двері;
- двостулкові двері з одного боку фіксується розпіркою між підлогою і стелею.
Така конструкція забезпечить щільне прилягання двері, що забезпечує герметичність конструкції. Шви обробити герметиком.
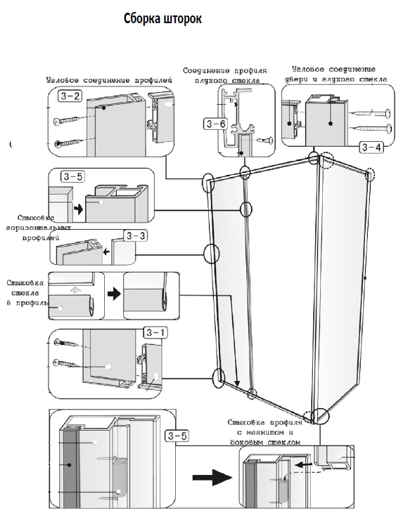
Схема складання шторок душової кабіни
Перевірка працездатності – завершальний етап
Тепер потрібно підключити систему водопостачання, включити воду, перевірити змішувач в роботі, герметичність всіх вузлів і з’єднань. Сміливо приступайте до установки додаткової фурнітури – душі, дзеркала, ручки, полички і декору вашого нового приміщення для релаксу. Ваша нова ванна, тобто кабіна готова!
Звертаємо увагу на аксесуари
Особливу увагу хочеться звернути на вибір змішувачів для душу, які є найбільш «слабким» місцем в душовій, особливо в дерев’яному будинку. Дуже часто робота змішувачів утруднена, якщо засмітився або зламався картридж – кран починає текти, шуміти. З-за цього змішувачі в процесі експлуатації швидко стають непридатними. Тому варто вибрати варіант, що дозволяє безперешкодно зробити його ремонт.
Необхідне обладнання для душу
Самими простими ремонту і догляду сьогодні вважаються одноважільні механічні змішувачі, які без поломок можуть працювати тривалий час. Прочитавши інструкцію, можна легко їх підключити. Основний принцип роботи змішувачів — досягнення необхідної температури води, а також напору, де основне навантаження відчуває картридж.
Змішувач 5 режимів 100 мм для душової кабіни
Під час експлуатації системи водопостачання картридж часто забивається соринками, тому змішувач стає непридатним. Перевагами таких змішувачів, де використовується картридж, очевидні:
- надійні, довговічні конструкції;
- картридж можна своїми руками замінити на новий. Можливі проблеми з сумісністю такої деталі, тому підбирати картридж слід тільки тієї фірми, що і змішувач;
- зручне управління, невеликі розміри, чудовий дизайн.
Єдиним недоліком таких конструкцій є те, що механічний змішувач одинважільний для душу виходить з ладу через поломки його основної деталі. Цей картридж не можна відремонтувати, його необхідно тільки замінити.
Незвичайний душ у приватному секторі
Дача – це чудово! Свіже повітря, тепле сонце і город. Якщо ви маєте зайвими квадратними метрами на свіжому повітрі, то можна зробити літній варіант — облаштувати невелику ванну для купання на вулиці. Причому зробити своїми руками! Поруч переваг має полікарбонат: витримує температурні коливання, навантаження, пластичний, простий при монтажі. Єдина умова – не встановлювати на вітрі, у тіні.
Процес монтажу річного душа в дерев’яному будинку своїми руками:
- передбачає зливний отвір у вигляді спеціальної похилій труби, що забезпечує ефективний злив води;
- заливають бетоном і укладають плиткою підстава;
- встановлюють і фіксують бетоном опори зі сталі, дерева, МДФ, ПВХ матеріалів;
- вертикальні стійки фіксують горизонтальними планками, косими опорами;
- за допомогою алюмінієвої стрічки обшивають каркас полікарбонатними листами;
- намагаючись рівномірно розподілити навантаження, встановлюють бак, до якого можна підключити бойлер або обійтися без нього;
- плоский бак – найбільш зручна, стійка конструкція, де вода нагрівається набагато швидше;
- всі стики обробляються герметиком.
Не забудьте придбати змішувач та інші аксесуари для нового душа. Щоб зробити таку красу для душових ванн, вам потрібні будуть тільки руки і голова. Зате радіти такій кабінкою можна буде ціле літо, причому кілька сезонів поспіль. Найголовніше — запасайтеся великими об’ємами води для душу!
