Зміст:
- Принцип роботи газових конвекторів
- Що ще важливо знати?
- Рекомендації по установці
- Як включити газовий конвектор
- Висновок
Нерідко виникає ситуація, коли потрібно організувати обігрів для дачі або заміського будинку, який власник відвідує час від часу. При цьому в наявності є недорогий балонний або природний газ, що прекрасно підходить в якості енергоносія. Влаштовувати традиційну систему опалення з газовим котлом дорогувато, та й недоцільно. При такому розкладі є сенс розглянути більш прості опалювачі — газові конвектори на зрідженому газі метані, що ми й зробимо в цій статті.
Принцип роботи газових конвекторів
За способом нагріву ці агрегати розраховані на пряму передачу тепла повітрю приміщення. При цьому опалювач спалює пропан з балонів або магістральний природний газ. Повітряні маси, що проходять крізь щілини внизу і вгорі корпусу, нагріваються і тим самим змушують циркулювати повітря у просторі кімнати. Це відбувається з-за різниці в щільності гарячої та холодної середовища, дане явище називають конвекцією.

Нагріваючись всередині корпусу агрегату від зіткнення з теплообмінником, повітря стає легше і витісняється більш важким холодним потоком через верхні прорізи назовні. Це і є принцип роботи газових конвекторів, де джерелом тепла виступає повітряний теплообмінник, розігріваються газовим пальником.

У цілому апарат являє собою корпус прямокутної форми, всередині якого розміщена закрита камера згоряння, що виготовляється із сталі або чавуну, вона ж грає роль теплообмінника. В камеру вбудована пальник з окремим запальником і електродом п’єзорозпалу. Керування подачею газу здійснюється з допомогою клапаном автоматики безпеки. Він коригує витрата газу в залежності від температури навколишнього повітря або зовсім його перекриває при виникненні таких аварійних ситуацій:
- недолік тяги в димоході;
- згасання пальника;
- падіння тиску газу в магістралі.
Для довідки. Побутові конвектори працюють на природному газі або пропані, комплектуються клапанами італійського виробництва EUROSIT або американського HONEYWELL.

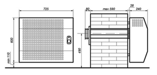
Подача повітря на горіння, як і видалення димових газів, організовано з вулиці допомогою двостінного коаксіального патрубка. З внутрішнього перерізу рухаються продукти горіння, а назустріч їм між стінками труб проходить повітря зовні. Таким чином, всередину приміщення димові гази не потрапляють. І останній важливий момент: переважна більшість газових конвекторів не потребують підключенні до електромережі.
Що ще важливо знати?
За виконанням дані опалювальні агрегати діляться на два виду:
- настінні;
- підлогові конвектори камінного типу.

Принципової різниці між цими видами немає, відмінність тільки в способі монтажу. Взагалі, газові конвекційні нагрівачі володіють чималими габаритами, особливо підлогові. Так що при монтажі під вікнами вони будуть виступати більше звичайних радіаторів.

Інший важливий момент полягає у відносно низькій ефективності агрегатів. Якщо звичайний газовий котел має ККД близько 90%, а конденсаційний – до 97%, то газовий обігрівач – не більше 87%. Цей показник — розплата за простоту конструкції з нерозвиненими газоходами.

Примітка. На даний момент у продажу можна знайти кілька вдосконалені конвектори з вентилятором. Але там, де поліпшується один показник, відразу погіршується інший: з’являється безперервний набридливий шум в кімнаті від роботи охолодження.
Щоб забезпечити конвектори пальним, доведеться виконати розводку газових труб від магістралі до місць установки агрегатів. При роботі на балонному газі виникають неминучі труднощі з розміщенням балонів, особливо коли кілька конвекторів. Тоді необхідно для них змайструвати газову рампу і шафа, де під час сильних холодів буде забезпечений підігрів повітря. В іншому випадку можуть з’явитися проблеми з подачею палива на пальник.

Рекомендації по установці
Загальновідомо, що установка газового конвектора, яке споживає магістральний метан, повинна проводитися фахівцями компаній, що мають відповідні дозволи. Варто уточнити це дещо узагальнене вимогу: питання полягає не в установці, а підключення до мережі газопостачання. Цю операцію дійсно можуть виконувати вищезазначені працівники відповідно до раніше виконаної проектної документацією. Це означає, що поставити агрегати на свої місця ви можете своїми руками, але без приєднання до газопроводу.

Якщо ви все ж прийняли рішення взяти в якості енергоносія балонний газ, то тут справа йде простіше. Підключення нагрівників, які працюють на пропані, не вимагає ніяких дозволів. Тим не менш, настійно рекомендується залучити до цих робіт спеціаліста, хоча б в якості консультанта. Він допоможе перевірити правильність і якість з’єднань та провести перший пуск агрегату.
Рада. При купівлі обігрівача слід переконатися, що довжини коаксіального каналу, що входить в комплект виробу, буде достатньо для наскрізного проходження вашої стіни.
Перш ніж встановити газовий конвектор, треба виконати в стіні круглий отвір відповідного діаметру. Далі кріплення апарата до стіни або підлоги виконується згідно інструкції по експлуатації. При цьому в деяких моделях опалювачів датчик зовнішньої температури з капілярною трубкою треба переставити з транспортного положення в робоче. Після цього залишається лише приєднати магістраль подачі пального до вхідного патрубка на приладі.

Важливо. У підлогові і настінні конвектори необхідно подавати газ під певним тиском, вказаним в технічному паспорті на виріб. Тому подачу палива з балонів слід організувати через редуктор, налаштований на це тиск.
Як включити газовий конвектор
Знову ж таки, перший запуск агрегату в роботу рекомендується довірити фахівцеві. Після того, як він виконає пусконалагоджувальні роботи, ви зможете спокійно користуватися обладнанням самостійно. Алгоритм включення конвектора наступний:
- перевірити наявність тяги, після чого відкрити газовий кран на вході в обігрівач;
- натиснути і утримувати регулювальну рукоятку на клапані;
- кнопкою п’єзорозпалу підпалити запальник;
- утримувати рукоятку 10-15 секунд, потім відпустити;
- якщо гніт не згас, повільно повернути рукоятку і виставити бажану температуру. Основний пальник спалахне автоматично.

Якщо ваш конвектор обладнаний вентилятором охолодження, нагнітачем і електричним розпалом від батарейок, то його запуск відбувається в автоматичному режимі. Треба лише включити прилад в мережу, відкрити газовий кран і натиснути відповідну кнопку на передній панелі.
Висновок
Як неважко здогадатися, сфера застосування газових конвекційних обігрівачів досить широка. Це відносно просте і недороге рішення для будь-яких типів будівель, як житлових, так і громадських або виробничих. Приваблює і той факт, що монтаж конвектора здійснити нескладно, відомі труднощі виникають тільки в питаннях приєднання природного газу.
