Зміст:
- Конструкція і принцип дії
- Підключення бойлера до комунікацій
- Переваги і недоліки
- Висновок
Тарифи на гарячу воду зростають з кожним роком, особливо це позначається на людях, що не встановили в своїх помешканнях лічильники. Ці домовласники позбавлені будь-якої можливості економити воду і тим самим знижувати вартість комунальних послуг. У той же час у багатьох населених пунктах централізована подача гарячої води давно припинено. В обох випадках саме раціональне і популярне рішення – електричний бойлер.
Конструкція і принцип дії
Апарат призначений для нагрівання води за допомогою електроенергії. Бойлер вважається накопичувальним, оскільки він постійно підтримує встановлену температуру певного об’єму води. По мірі зниження рівня в баці внаслідок витрати споживачами в нього надходить холодна вода, після чого агрегату потрібно деякий проміжок часу, щоб знову її підігріти. Всі деталі і елементи, з яких складається електричний бойлер для нагріву води, можна побачити на малюнку.

Пристрій бойлера
«Серцем» апарату є трубчастий електронагрівач (ТЕН), він являє собою спіраль з вольфраму або ніхрому, укладену всередині мідної або сталевої трубки. Простір між спіраллю і стінкою трубки заповнено ізоляційним матеріалом. Трубка, в свою чергу, кріпиться до монтажного фланця круглої форми, з зворотної сторони якого виведені клеми для приєднання проводів електромережі. На тому ж фланці встановлений металевий стрижень, його верхня частина покрита магнієвим сплавом. Це зроблено з метою захисту матеріалу судини від впливу електрохімічної корозії.
Судини електричних водонагрівачів виготовляються з різних видів сталі, а вона схильна до корозії при електричному нагріванні рідини. Не вдаючись у подробиці даного фізичного явища, можна сказати, що магнієвий анод «викликає на себе» вплив цього процесу, тим самим зберігаючи цілісність сталевого бака.
Важливо. Магнієвий анод з плином часу руйнується і підлягає періодичній заміні. Виробники рекомендують її виконувати не рідше 1 рази в 2 роки, але при підвищеній жорсткості води термін служби елемента значно скорочується і міняти його потрібно частіше.
Після включення ТЕН нагріває воду до температури, максимальне значення якої обмежується термостатом. При роботі на повну навантаження і термостаті, виставленому на максимум, температура досягає 75 ?С. Як правило, більшість виробників рекомендують користуватися апаратом в економічному режимі, тоді нагрів відбувається до температури 50-55 ° С, а на регуляторі термостата ця позиція для зручності виділена яким-небудь визначенням. Після розігріву до встановленої температури накопичувальний бойлер автоматично відключається. Включення відбувається після охолодження середовища в посудині на декілька градусів, що трапляється з двох причин:
- Незважаючи на утеплення з пінополіуретану резервуар повільно згасає з плином часу.
- Якщо з’являється витрата в системі ГВП.
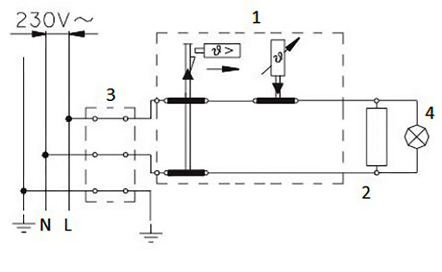
Посудину постійно знаходиться під тиском, воно дорівнює тиску в централізованому водопроводі. Після появи витрати в мережі ГВП гаряча вода з резервуару йде на господарські потреби, а на її місце надходить холодна, з водопроводу. В результаті в ємності відбувається змішування, температура починає знижуватися і термостат негайно включає ТЕН. Діюча електрична схема котла представлена на малюнку:

1 – двополюсний термовимикач з тепловим запобіжником; 2 – електронагрівач (ТЕН); 3 – клемна коробка для приєднання проводів напруги і заземлення; 4 – контрольна лампа; L – фазний провід; N – нейтраль (нульовий провід).
Представлена схема – найбільш проста і застосовується в недорогих моделях електробойлерів. Існують апарати, обладнані програмованими контролерами з датчиками витрати, температури і тиску. Як можна зрозуміти зі схеми, контрольна лампа сигналізує про те, що агрегат знаходиться в режимі нагріву води і електричний ТЕН включений. Термовимикач спрацьовує по сигналу вбудованого елемента, що реагує на зміни температури середовища в посудині. У разі виникнення нештатної ситуації з підвищенням температури понад максимуму, накопичувальний водонагрівач буде відключений тепловим запобіжником, комутованих з термовимикачем.
Підключення бойлера до комунікацій
Подібні пристрої хороші тим, що їх впровадження в інженерні системи будинку не представляє особливої складності. Потрібно здійснити всього 2 підключення до електричної та водопровідної мережі будинку. Схема підключення до напрузі 220 В з подвійним автоматичним вимикачем представлена нижче.

Підключення котла до електричної мережі
Деякі виробники поставляють в комплекті зі своїми виробами пристрої захисного відключення (УЗО). Тоді схема приєднання буде мати наступний вигляд:

Схема з автоматичним вимкненням
До трубопроводів гарячого і холодного водопостачання апарат краще приєднувати через «американки» з установкою запобіжного клапана і зливного крана. Дана схема підключення електричного бойлера показано тут:

Підключення до системи водопостачання
Переваги і недоліки
Бойлери з електричним нагрівом неспроста придбали нинішню популярність. Цьому є цілий ряд причин:
Надійність в експлуатації
Оскільки існують спеціальні електричні бойлери для опалення будинку, то до вищенаведеного списку можна додати додаткове гідність. Від звичайних нагрівачів для ГВП вони відрізняються конструктивно, Тени тут відіграють роль додаткового джерела тепла і працюють, в той час як основний теплообмінник не діє. Такі агрегати називають бойлерами непрямого нагрівання, в них вода підігрівається від теплоносія, що йде з котельної установки по теплообміннику у вигляді змійовика. Котел в силу різних причин може зупинитися, і тоді для підтримки температури середовища в роботу вступає ТЕН.

Пристрій бойлера непрямого нагріву
1 – металевий бак; 2 – корпус; 3 – трубка виходу ГВП; 4 – ТЕН; 5 – підключення до водопроводу; 6 – магнієвий анод; 7 – термометр; 8 – датчик; 9 – змійовик теплообмінника.
Здійснювати електричне опалення будинку за допомогою звичайного накопичувального водонагрівача, як це намагаються зробити деякі домовласники, недоцільно і в кінцевому рахунку обійдеться дорожче, ніж придбання і монтаж електрокотла.
Недоліків у водонагрівачів небагато. З першим стикалися майже всі, це недовговічна експлуатація посудини. Тобто, через 4-5 років після покупки бак починає протікати. Причина – магнієвий анод, про який згадувалося вище, перестав існувати, його «з’їла» електрохімічна корозія. Після анода корозія взялася за метал резервуара, в результаті чого і з’явилася текти. Ремонту іржавий бак не підлягає, тому господареві квартири доводиться купувати новий апарат. Така неприємність відбувається через необізнаність людей про необхідність періодичної заміни магнієвого анода.
Інший недолік, пов’язаний з часом прогріву всього об’єму рідини в баку. Практика показує, що резервуара місткістю 50 л достатньо на помивку під душем родини з 4 чоловік із розрахунку 10 хвилин на кожного члена сім’ї. Якщо людей більше або з’явився додатковий витрата гарячої води на кухні, то доведеться почекати деякий час, поки новий обсяг холодної води прогріється.
Тут важливу роль грає питання, як вибрати електричний бойлер за місткістю. Підібрати оптимальний варіант можна, користуючись вищенаведеною статистикою, лише з урахуванням усіх додаткових витрат у мережі ГВП. Дуже велику ємність купувати теж недоцільно, так як агрегат буде постійно витрачати електроенергію на підтримку температури всього об’єму рідини.
Відповідно, зростуть рахунки за електрику. Якщо все ж є необхідність у великій кількості гарячої води на господарські потреби, то є сенс поставити підлоговий електричний бойлер непрямого нагріву великої місткості (300-500 л). Тоді вода буде нагріватися від котельні установки, а ТЕН стане працювати як додаткове джерело тепла.
На прогрів великого об’єму рідини треба затратити певну кількість енергії. Цей запас енергії повинен бути врахований в потужності котельного обладнання або електричного водонагрівача.
Висновок
Накопичувальні водогрійні агрегати, що працюють від електрики, швидко стали найпопулярнішим продуктом на ринку сантехніки зі зрозумілих причин. З часом ця тенденція не змінюється, незважаючи на появу проточних нагрівачів та інших нагрівальних пристроїв. Описані бойлери недорогі, надійні та економічні, що робить їх привабливими в очах покупців.
