Ентузіастам, які вирішили почати будівництво будинку з арболіту своїми руками, цікаво буде дізнатися про те, як можна заощадити на матеріалах. Найкращим способом це здійснити буде самостійне виготовлення арболіту. Але тут варто пам’ятати, що просто бажання буде абсолютно недостатньо, тому що виготовлення якісного продукту без відповідного обладнання практично неможливо.
Специфічна технологія виробництва арболіту вимагає особливого устаткування, такого як прес і щепорез. За допомогою преса буде здійснюватися ущільнення матеріалу, а щепорез забезпечить процес необхідною сировиною у вигляді голчастого деревного заповнювача необхідної фракції і форми. Причому для його приготування підходять відходи деревного виробництва в будь-якому вигляді, крім тирси. Прес відшукати не складе особливих проблем, а от з щепорезом справа інше.


Детальніше про щепорезе
Верстат для подрібнення деревних відходів являє собою спеціальний молоторубильный механізм, що перетворює безформні шматки деревини в тріску оптимальної довжини (до 25 міліметрів).
В масовому виробництві арболіту використовуються стаціонарні верстати величезної продуктивності (кілька десятків кубометрів на годину). Але для особистого використання, такі махини абсолютно ні до чого. Для приготування арболіту достатньо буде і невеликого роторно-молоткового щепореза, поставленого в гаражі або у дворі під навісом.
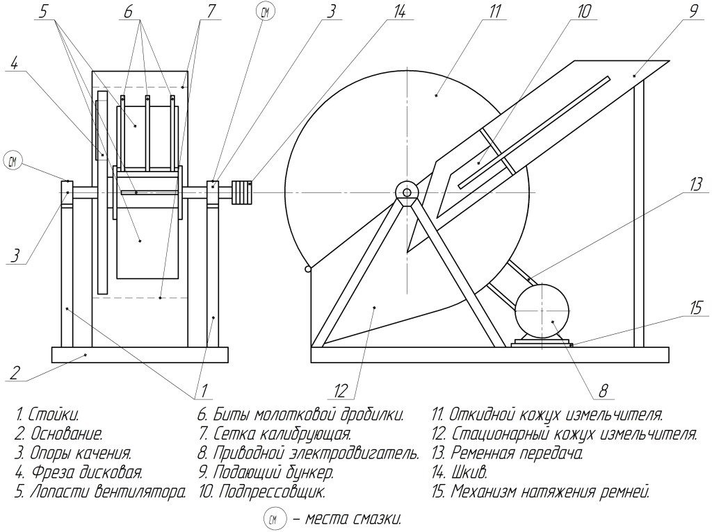
Цей верстат являє собою найпростіший механізм, що працює від електромережі. Він складається з наступних компонентів:
- Корпус з відкидним або знімним кожухом.
- Вал.
- Плоскі молотки, вільно обертаються і розділені спеціальними відбійниками по секторах.
- Диск, на якому закріплені ножі.
- Сито з отворами діаметром від 15 до 20 міліметрів.
- Патрон, через який здійснюється подача відходів деревообробки.
Після того як на щепорез подається харчування, двигун починає обертатися і зраджує це обертання барабану з лезами через вал. Залишається тільки вкидати в патрон всі деревні відходи і вони будуть практично миттєво перетворюватися в тріску.

Тріска для виробництва блоків арболитовых

Щепорез

Креслення щепореза

Креслення щепореза
Як заощадити на придбанні верстата
Навіть найпростіший щепорез має таку вартість, що мимоволі змушує замислитися над тим, щоб заощадити на чому завгодно. Якщо купувати його для ведення бізнесу, то це ще півбіди. Зовсім інша картина вимальовується, якщо верстат потрібен для особистих потреб. У цьому випадку найдешевше буде зібрати його самостійно. При наявності креслення зібрати його буде нескладно, але проблема може виникнути з відповідними матеріалами.
Якщо немає можливості виготовити деталі самостійно, то можна замовити їх виготовлення на стороні. Але тут теж є нюанс. Без необхідної документації ці деталі будуть зроблені на око, що позначиться на надійності всієї конструкції. Тому просто необхідно обзавестися кресленнями верстата в зборі і окремих деталей.
Необхідну документацію можна пошукати у вільному доступі або замовити її виготовлення якого-небудь конструктора. Це буде коштувати набагато дешевше, ніж покупка готового щепореза.
