
Для самостійної установки підвісної стелі Армстронг необхідно придбати профілі для каркаса і облицювальні плитки, але щоб не зробити помилку в їх кількості, необхідно вміти розрахувати комплектуючі. Це дасть можливість заощадити, не купуючи зайві деталі і не вдаватися до допомоги фахівців.
Зміст
- 1 Переваги підвісної стелі Армстронг
- 2 Види підвісних систем Армстронг
- 3 Пристрій підвісних стель
- 4 каркас Підвісної
- 5 Облицювальні плити
- 6 Розрахунок комплектуючих для підвісної стелі Армстронг
- 7 Розрахунок підвісної стелі з гіпсокартону
- 8 Як підрахувати кількість профілю
- 9 Як підрахувати кріплення
- 10 Як підрахувати кількість плитки для підвісної стелі
Переваги підвісної стелі Армстронг
Якщо треба швидко і недорого встановити стеля в кімнатах з досить високою стелею, то непоганий варіант – це система підвісного типу Армстронг. Така конструкція користується великою популярністю як у пересічних споживачів для оформлення житлових і підсобних приміщень, так і для обробки стельової поверхні у будівлях громадського призначення. Адже вона має масу переваг. Крім сучасного зовнішнього вигляду, такі підвісні конструкції практичні і зручні в експлуатації.
Підвісні стелі армстронг відносяться до класу легких конструкцій, що вони не створюють навантаг на несучі конструкції
Серед основних плюсів слід відзначити наступні:
- можливість вільного доступу до вентиляційних систем та освітлювальних приладів;
- приховування нерівностей, дрібних тріщин та інших дефектів на основному стелі;
- швидкість монтажу і розбирання, можливість замінити, при необхідності, окремі деталі, не знімаючи весь стеля;
- високий відсоток світловідбивання плитки, що дозволяє заощадити на електриці;
- хороші шумопоглинаючі характеристики;
- екологічна чистота і безпека.
Так як підвісна стеля Арстронг користується великим попитом на будівельному ринку, можна придбати будь-які аксесуари, які полегшують їх встановлення (наприклад, вентиляційні решітки та вбудовані освітлювальні прилади і т. д.)
Але, як часто буває, і цей будівельний матеріал не позбавлений недоліків:
- неможливість використання в приміщеннях з підвищеною вологістю. В цих умовах зовнішній вигляд плит швидко псується: часто може змінитися колір. В цьому випадку краще віддати перевагу рейковим або касетних стель;
- крихкість. Вони можуть легко пошкодитися від будь-яких різких ударів, навіть від пострілу звичайної пробки від шампанського. Тому краще купувати плити у великих кількостях на випадок непередбаченої ситуації.
Можливість легко замінити окремі частини стелі трохи нівелює дані незручності в експлуатації.
Види підвісних систем Армстронг
Існує кілька різновидів таких конструкцій, що відрізняються за дизайном, розмірами, технічними властивостями, і відповідно, ціною.
Серед найбільш поширених можна виділити:
- стелі економ — класу (Байкал і Оазис). Вони користуються великим попитом на будівельному ринку завдяки невисокій ціні, високій якості й чудовому дизайну;
- функціональні стелі (Прима). Вони мають додатковий захист від вологи. Так, навіть якщо вологість становить 95%, такі плити, як стверджує виробник, не змінюють своєї форми;
- акустичні стелі (Ультима). Вони володіють прекрасними звукопоглинальними характеристиками;
- гігієнічні стелі (Биогуард). Вони покриваються зверху спеціальним складом, що захищає їх від впливу гарячого пара і налипання жиру;
- дизайнерські стелі, призначені для особливого оформлення стельової поверхні.
Для кожного приміщення в будинку можна підібрати свою оптимальну різновид стелі Армстронг
Всі види мають схожий пристрій, що треба знати для того, щоб розрахувати необхідну кількість.
Пристрій підвісних стель
Основні частини таких конструкцій:
- підвісний каркас;
- облицювальні плитки.
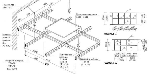
Каркас підвісної
Він складається з:
- металевих Т-образних направляючих профілів довжиною 3,7 м;
- поперечних профілів довжиною 1,2 м;
- повздовжніх профілів довжиною 0,6 м;
- металевих периметральниз куточків довжиною 3,0 м;
- регульованих підвісів для фіксації решетування до несучих перекриттів.
По периметру приміщення на стінах за допомогою дюбелів і саморезов монтують куточки. У них, торцями паралельно один одному, вставляють направляючі профілі, підвішуючи до стельової поверхні на анкерних підвісах з кроком 1200 мм. Між собою напрямні скріплюють за допомогою поперечних профілів з кроком 600 мм
Як результат цих нескладних операцій, утворюється сітчастий каркас в описаному випадку з розміром кожної клітинки 1200х600 мм, а після установки поздовжніх профілів, утворюються квадратні клітинки 600х600 мм. Це і є стандартні розміри облицювальних плит Армстронг.
Слід врахувати, що існують і інші моделі плит розміром 610х610 м за американськими стандартами. Тому при покупці варто уважно вивчити етикетку, звернувши увагу на розміри плит.
Облицювальні плити
Вони можуть вкладатися в каркас зсередини або зовні. Це залежить від типу обрешітки.
В якості облицювання найчастіше застосовується:
- мінераловатна плита;
- мінераловолокністих плита;
- гіпсова плита;
- металева (сталева або алюмінієва) плита;
- дзеркальна плита;
- плита з акрилового скла.
Від того, який матеріал був обраний, залежить кінцева ціна готового стелі.
Несучий каркас для стелі з оцинкованих профілів складається з декількох уніфікованих виробів
Розрахунок комплектуючих для підвісної стелі Армстронг
Варто врахувати, що довжина і товщина в подальшому надасть увагу на необхідну кількість матеріалів для підвісної системи.
Існує два способи, як розрахувати матеріали для підвісної стелі Армстронг: за допомогою калькулятора онлайн вдома або в будівельному магазині і самостійно.
Найпростіше зробити це самостійно, знаючи периметр і площа приміщення, для того, щоб знати, приблизну вартість будівельного матеріалу.
Це легко можна зробити за поданій нижче таблиці:
S — в цій таблиці площа приміщення. В якості прикладу наведено зразок розрахунку складових елементів для підвісної стелі для кімнати площею 50 м2.
Прилади освітлення за даною схемою розраховуються, виходячи із звичайних умов. Інший варіант підрахунку світильників — на 5 м2 знадобиться один світильник. Не варто забувати при цьому, що прилади можуть мати різну потужність. Тому простіше, проконсультуватися у консультанта магазину про конкретної моделі.
Кількість кріплення вираховується, виходячи із застосовуваних підвісів плюс запасні елементи. Приблизно, на 1м профілю буде потрібно 3 дюбеля, якщо крок кріплення буде становити 30-40 см.
Розрахунок підвісної стелі з гіпсокартону
Подібним чином можна розрахувати і необхідну кількість комплектуючих для підвісної стелі з гіпсокартону.
Основні елементи, які треба врахувати:
- стельові, стійкові і напрямні профілі;
- кріпильні елементи;
- підвіси;
- з’єднувальні елементи;
- саморізи і дюбелі.
На однорівневий стелю знадобляться тільки напрямні, стельові профілі та прямі підвіси в якості кріплення.
При бажанні можна понад призначеного конструктивом ще й встановити звичайні стельові плінтуса
Як підрахувати кількість профілю
Виходячи з обраного типу підстави, підрахувати можна кількома способами.
Наприклад, якщо комірка має розміри 60Х60 см, можна фіксувати панелі, практично, будь-якого розміру і всі стики потраплять на площину підстави. Але якщо стик буде потрапляти на порожнє місце, то цей відрізок можна просто прикріпити до верхньої сторони за допомогою саморізів.
Для того, щоб провести розрахунки, можна скористатися наступною формулою:
Д * (Ш/0,6 — 1) + Ш * (Д/0,6 — 1), де Д – довжина приміщення, а Ш — ширина.
Як показує практика, це приблизний розрахунок. Часто залишається багато дрібних деталей, яких уже ніде не можна застосувати.
Не варто забувати, що матеріал завжди треба купувати на 20% більше на випадок виникнення несподіваної ситуації. Якщо відстань між деталями становить 40 см, на стик двох частин необхідно підкласти поперечину.
Розрахувати необхідну кількість профілів для гіпсокартону можна за іншою формулою: Д * (Ш/0,4 – 1). Цифра, яка вийшла, дорівнює загальній протяжності профілю. Але, кілька сантиметрів знадобиться для виготовлення поперечок. Тому до цього числа слід додати 10-15% .
Кількість направляючих профілів підраховується простіше: їх треба буде стільки, скільки складає периметр приміщення.

Як підрахувати кріплення
Тут не потрібно ніякої формули. Так, у першому випадку, якщо врахувати, що крок становить 60 см, а перший підвіс встановлюється на 30 см від стін, можна порахувати, скільки підвісів потрібно на одну деталь і помножити цю цифру на кількість деталей.
В іншому варіанті, необхідно розділити загальний метраж деталей на 0,6, не забуваючи додати 10% на екстрений випадок.
Кількість крабів буде дорівнювати приблизно числа підвісів.
Як підрахувати кількість плитки для підвісної стелі
Насамперед, рекомендується зробити схему, як будуть розташовуватися фрагменти, після чого приступати безпосередньо до підрахунків. Так, зазвичай довжина панелі– 2,5 м, а ширина – 1,2 м. Іноді зустрічаються плити , довжина яких становить 3 м, а ширина стандартно-1,2 м.
За схемою можна легко підрахувати необхідну кількість деталей. Але варто врахувати, що цей метод підходить тільки для прямокутних приміщень.
Розрахунок підвісної стелі з гіпсокартону і системи Армстронг можна легко виконати самостійно, використовуючи онлайн калькулятор.
Докладно про монтажі підвісної стелі Армстронг можна подивитися на відео:
