Зміст:
- 1 Який мангал встановити?
- 2 10 важливих фактів про будівництво: як вибрати підходящий мангал
- 3 Слово дизайнерові
- 4 Підготовка до будівництва: необхідні інструменти і матеріали
- 5 Алгоритм роботи
- 5.1 Правильність закладки фундаменту
- 5.2 Порядовая викладка печі
- 6 Естетичність насамперед
- 6.1 Наші рекомендації:
Самим популярним видом відпочинку багатьох з нас є шашлик або барбекю на природі. Поняття це досить багатозначне. А особливими щасливчиками є власники приватних котеджів — вони можуть побудувати мангал на вулиці з цегли. Зробити це можна і самостійно — в цьому випадку можливо врахувати всі індивідуальні вимоги і побажання.
Який мангал встановити?

піч-мангал
Види пристосувань для смаження м’яса: вибираємо актуальне
Як і сам відпочинок, який видається під подібним поняттям, так і пристосування для нього мають кілька видів. Розрізняють такі типи:
- котел;
- жаровня (мангал);
- газовий або електричний прилад;
- цегляний.
Крім того, подібні проекти можуть передбачати піч з приєднаною «каганця», що знаходиться в альтанці, що має мийку. При дотриманні необхідних технологій будівництва до неї приєднати навіть справжню російську піч.



Під самим простим пристроєм для такого виду відпочинку (барбекю)мається на увазі мобільний варіант у вигляді металевої сітки, яка встановлюється під відкритим вогнем. А ось мангал — вже пристосування без решітки. Для свого котеджу краще побудувати барбекю з цегли на вулиці — це піч, яка має жаровню-вогнище. Викладається вона з каменю або цегли, але при цьому їй зовсім не потрібно «прописуватися» саме у вуличних умовах. Однак у разі знаходження її безпосередньо в приміщенні, потрібно буде заздалегідь продумати деякі моменти (заливка фундаменту, встановлення димоходу).
10 важливих фактів про будівництво: як вибрати підходящий мангал

збірний мангал схема
Бажання побудувати щось подібне цілком може бути і імпульсивним, а от реалізація повинна мати під собою чітко підготовлений план. Під пильну увагу потрапляють наступні аспекти:
Вибираємо відповідний мангал відео:
Слово дизайнерові

изайн мангалу
Всі ескізи мангалів з цегли дуже важливо поєднувати з загальною концепцією стоїть будинку і ділянки.
Варто прислухатися до таких порад:
І трохи про стилі майбутнього проекту. Зовнішній вигляд такої печі буде цілком залежати від фантазії обох сторін (замовника і виконавця), але найпопулярнішим є стиль кантрі (рустик).
Для таких моделей характерні наступні ознаки:











Підготовка до будівництва: необхідні інструменти і матеріали

інструменти для будівництва мангалу
Подібну первісну тягу до вогню цілком можна задовольнити, побудувавши вогнище власними руками. Якщо у охочого зробити це людини є будівельні навички — відмінно. Якщо ні, то в цьому можуть допомогти наступні рекомендації.
Перед тим як звести мангал, слід підготувати все його «складові». Сюди будуть входити наступні матеріали та інструменти:
- гравій, пісок, цемент, арматурні конструкції (знадобляться для кладки фундаменту і);
- сітка з комірок (армується база під основу);
- цегла (для викладання);
- цегла вогнетривка (для зони, в якій буде відбуватися горіння);
- кутник металевий для армування кутів;
- обробний цегла (для прикраси фасаду вироби);
- лист з металу;
- металева решітка;
- глиняний породу для гідроізоляції;
- картонний або фанерний лист для шаблону;
- матеріал для фінальної обробки виробу;
- ємність для перемішування розчину;
- інструмент для будівництва.

інструменти муляра
Останній пункт містить у собі також чималий перелік. Сюди відносяться:
- розчинна лопата;
- кельма;
- молоток замість кирки;
- розшивка з дерева;
- схил;
- шабровка;
- складаний метр;
- бульбашковий рівень;
- косинець;
- рулетка;
- порядовки металеві.
Алгоритм роботи
Будівництво такого достатнього важкого споруди, як мангал або барбекю, вимагає дотримуватися заздалегідь складеного плану робіт. Алгоритм їх виконання буде наступним:
Правильність закладання фундаменту

кладка фундаменту мангалу
Важливо вибрати правильне місце для майбутньої заливки фундаменту. Головна вимога до нього — рівна поверхня. Фундамент потрібно заливати на глибину промерзання грунту вже в тому випадку, якщо мангал буде на метр вище поверхні (а, значить, доведеться робити це в будь-якому випадку).
Майбутню кладку також бажано армувати. Для цього відмінно підійде комірчаста сітка (приготувався її заздалегідь). В іншому потрібно дотримуватися такого порядку:
Викладка фундаменту мангалу відео:
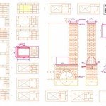
Порядовая викладка печі
Існує шаблон робіт, якому потрібно слідувати для того, щоб правильно викласти цегляна барбекю (або мангал). В загальних рисах він буде виглядати так:



1. Слід визначити форму отвору. Якщо конструкція прямокутна, то відмінно підійде звичайний будівельний куточок. У разі арочної потрібно виготовити спеціальну заготовку.



2. Самі стіни можна зробити в півцеглини, при цьому розчин для зв’язки застосовується звичайний.Обов’язково залишаються прорізи в півсантиметра. Ось так викладаються п’ять рядів.
3. Після цього на них викладається лист металу. Він буде виконувати роль піддону з цегли.


4. Після ще двох рядів аналогічно кладеться решітка.
5. Необхідно встановити вітрову захист і потім викласти ще кілька рядів.
6. Згідно з проектом далі кладуться проемочные арки.
7. Стіни потрібно зводити до необхідної висоти. Найкращим рішенням буде висота десяти цегл від рівня землі. При цьому між шостим і сьомим рядками потрібно укласти стрижні з металу таким чином, щоб вони «виглядали» з стіновий поверхні не менше ніж на сім сантиметрів. Таке повторюється до десятого ряду так, щоб можна було перемістити грати на потрібну висоту.
Це не єдина рекомендація, як побудувати мангал з цегли. Проекти можуть бути самими різними і піч може бути дуже високою.


Тут знадобляться такі конкретні поради:
1. З першого по восьмий ряди можна сформувати дровницу і ніші, в яку буде складатися кухонне начиння.
2. У дев’ятому ряду можна за допомогою фанерних листів (товщиною не менше 10 мм) сформувати опалубку і викласти склепінчасті перекриття (використовується клиновий шамотна цегла).
3. В десятому ряду необхідно сформувати перекриття для дровниці. У цьому випадку шамотна цегла обрізається до 18 см і кладуть на ребро.
4. Наступна горизонтальна кладка повинна вирівняти поверхню у дровниці.
5. Далі необхідно буде перекрити всі ніші, викладаючи цегла з випуском на чверть по периметру.
6. З 13 по 15 ряди викладається топка, після чого потрібно буде сформувати опалубку, яка згодом стане склепінчастим перекриттям у топки. Тут можна використовувати шамотна цегла.
7. З 20 по 24-й ряд внутрішні цеглу потрібно підрізати — це виведе кладку на розмір димоходу. А вже з периметра 24-ого ряду можна випустити цегла на чверть (таким чином завершиться будівництво топки).
8. Тепер викладається труба, висота якої залежить від висоти альтанки.
9. Будівництво прийнято закінчувати облицюванням самої стільниці (керамічну плитку) і (матеріал «під цеглу») зовнішньої поверхні у плитки.
10. Якщо для проекту передбачена мийна поверхню, то робиться маленький отвір знизу і підводиться труба — у неї зливається вода.
Відео з викладення мангалу
Естетичність насамперед
Функціонал не повинен страждати в гонитві за красою. Наприклад, жарочную грати потрібно захищати від вітру, але ізолювати її від того, щоб надходило свіже повітря не потрібно. Краще мити після кожного використання.
Після того як роботи з будівництва завершені, необхідно буде все облаштувати до кінця. Особливо це стосується поверхні, на якій буде проходити готування, і того місця, де планується прийняти їжу.
Далі обробляються самі шви. Для цього зазвичай достатньо просто провести з ним розшиванням та надати будові естетичний вигляд.
Після остаточної обробки готову піч не рекомендується використовувати кілька днів. Це потрібно для того, щоб шви не розтріскалися.
Ще по темі:
- Кутові барбекю з цегли: фото та відео;
