Від правильного підключення всіх інженерних комунікацій, безпосередньо залежить комфорт проживання в приватному будинку або котеджі. На жаль, далеко не завжди є можливість провести відразу всі комунікації. Особливо, це стосується гарячого водопостачання. Як показує практика, найпоширеніше рішення – підключення звичайного бойлера. Але, варто зазначити, що він потребує чималої кількості електроенергії, у зв’язку з чим, вартість комунальних послуг різко зростає.

Виходом зі сформованої ситуації є підключення бойлера непрямого нагріву. По суті це водонагрівач, який функціонує з використанням системи водопостачання та існуючої системи опалення. Крім усього іншого, у разі виходу з ладу котла, або ж в теплу пору року, вода буде підігріватися за допомогою вбудованого Тена.
Плюси і мінуси бойлерів непрямого нагріву
Дане обладнання має ряд переваг:
- немає додаткових витрат електроенергії;
- стабільне гаряче водопостачання;
- можливість приєднати різні джерела нагріву.

Поряд з перевагами, бойлер непрямого нагріву має і деякі недоліки:
- досить висока вартість, у зв’язку з чим, дане обладнання не є загальнодоступним;
- при дуже великому обсязі для нагріву води буде потрібно кілька годин;
- при установці вимагає великої кількості вільного простору.
Принцип роботи системи та основні види обладнання
Вся система включає в себе кілька основних елементів:
- опалювальний котел, до якого буде виконано підключення;
- насос, що забезпечує безперервну циркуляцію води;
- 3-ходовий клапан;
- патрубки та шланг для з’єднання з основною системою опалення;
- бойлер, підтримує непрямий нагрів.

Все обладнання непрямого нагріву можна умовно поділити на 2 основні категорії:
- встановлюються на підлогу;
- встановлюються на стіну.
У залежності від габаритів приміщення і розмірів обладнання, можна вибрати будь-який з варіантів.
Ще одним з незаперечних переваг даного обладнання, є той факт, що вода з системи опалення і гаряча вода нагріта не повідомляються один з одним, а значить, після нагрівання, воду можна використовувати для будь-яких цілей.
Як підключити обладнання для непрямого нагріву до електричного або газового котла?
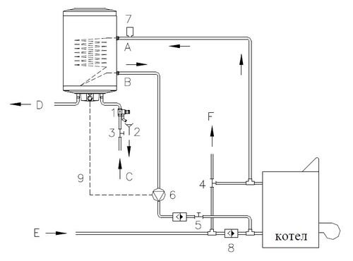
В опалювальній системі спостерігається безперервна циркуляція гарячої води з котла, яка забезпечується завдяки наявності двох основних магістралей – подачі і обратки. Як правило, встановлення обладнання здійснюється у тому ж приміщенні, де знаходиться котел, завдяки чому не потрібно проводити багатометрові комунікації.

Основна схема підключення являє собою принцип радіатора. Так, нагріта вода з котла, за подаючої магістралі, направляється безпосередньо в котел і систему опалення, пройшовши по колу, вода повертається в котел. Таким чином, забезпечується максимально рівномірний нагрів води у всіх теплових носіях.
Як підключити обладнання непрямого нагріву води до двухконтурному котла?
Основою даної схеми стане 2-контурний котел. Його основний принцип полягає в тому, що здійснюється одночасний нагрів води, як для опалення, так і для водопостачання. Однак, як показує практика, якщо використовувати гарячу воду з такого котла в дуже великій кількості, то це, в більшості випадків, негативно позначається на системі опалення.
Саме тому, рекомендується витрачати воду з котла лише в невеликих обсягах, тоді як в якості основного джерела гарячої води, застосовувати бойлер. Варто відзначити, що, чим вищий нагрів води в системі опалення, тим сильніше буде нагріватися вода.

Сама схема підключення дуже проста. Спеціальний, 3-ходовий клапан монтується відразу після насоса для циркуляції води, як це показано на фото. Як тільки вода нагріється до тієї температури, яка встановлена на вбудованому регуляторі температури, клапан закривається, і вода починає циркулювати лише по системі опалення. Температурний датчик, підключається безпосередньо до насоса.
В залежності від обраного пріоритету слід виконувати і підключення:
- для пріоритету гарячого водопостачання, монтаж здійснюється паралельно з опаленням;
- для пріоритету системи опалення, монтаж слід виконувати послідовно. У цьому випадку термодатчик встановлювати не потрібно.
Для того щоб обладнання продовжувало функціонувати навіть улітку, досить встановити в систему байпас і додаткові крани, якими можна відключити нагрівання радіаторів. При застосуванні паралельного підключення, байпас ставиться на термоголовкою. Приклад такої установки докладно показаний на відео.

Як підключити бойлер непрямого нагріву до одноконтурному котлу
У стандартних, 1-контурних котлах відсутній підігрів води для системи гарячого водопостачання, у зв’язку з чим, бойлер стане єдиним джерелом гарячої води. Схема підключення полягає в наступному: за допомогою шлангів і патрубків потрібного діаметру, обладнання з’єднується з котлом. У систему також необхідно встановити циркуляційний насос і 3-ходовий клапан, який так само буде спрацьовувати при досягненні води потрібної температури.
Дана система має один суттєвий недолік – при виході з ладу обладнання, не буде резервного джерела гарячої води.

Рекомендації фахівців:
Для тих, хто вирішив придбати обладнання для непрямого нагріву для підключення до системи опалення, фахівці дають кілька рекомендацій:
- обсяг слід вибирати таким чином, щоб на кожну людину, яка проживає в будинку, припадало понад 20 літрів води;
- при монтажі обладнання, не слід нехтувати заземленням;
- для того щоб компенсувати теплове розширення і амортизувати можливі гідроудари, на вихідний магістралі, в обов’язковому порядку, встановлюється гідроакумулятор, як це показано на фото;
- у безпосередній близькості від обладнання слід встановити розетку, що дозволить підключити бойлер в той момент, коли котел буде відключений або вийде з ладу;
- на магістралях слід встановити крани. Це необхідно для того, щоб при необхідності, обладнання можна було легко відключити, без шкоди для системи опалення;
Крім того, щоб нагрів води здійснювався як можна швидше, бойлер слід встановлювати як можна вище над рівнем радіаторів.
