
Традиційною і найбільш поширений системою опалення приватного будинку або квартири є водна. Пов’язано це з відносно простою її конструкцією, великим вибором устаткування і якостями такого універсального теплоносія як вода. Проте схеми дії водних опалювальних систем можуть помітно відрізнятися один від одного.
Опалення з природною циркуляцією
Водна система включає в себе джерело тепла – котел будь різновиди, розширювальний бачок, трубопровід – прямий і зворотний, і радіатори. В котлі вода нагрівається до температури, зазначеної контролером, надходить в подаючий трубопровід, а потім в радіатори, де охолоджується, віддаючи тепло повітрю в приміщенні. Охолоджена рідина надходить у зворотний трубопровід, досягає котла, і цикл нагрівання повторюється заново. Розширювальний бачок підтримує постійний тиск в системі: до нього потрапляє надлишок води при її
нагріванні, а при охолодженні води знову йде в трубопровід.
Рух води в системі опалення можна підтримувати двома способами.
- Примусова циркуляція – описане переміщення води здійснюється під дією наосов. Цей варіант реалізується для великих площ і багатоповерхових будівель.
- Природна циркуляція – переміщення теплоносія здійснюється завдяки дії гравітаційного тиску, за рахунок різниці в щільності нагрітої й охолодженої води.
Водна система є замкнутою і в неробочому стані теплоносій в ній знаходиться на одному рівні у всіх
елементах – трубах, радіаторах, казані. При нагріванні води рівновага порушується. Нагрітий теплоносій має меншу щільність порівняно з охолодженою рідиною і спрямовується у верхню частину контуру – верхній стояк і подають труби з тим, щоб пізніше опинитися в батареях. Різниця тисків змушує холодну воду переміщатися до котла, в свою чергу, виштовхуючи гарячу воду. Чим більше різниця в температурі нагрітої й охолодженої рідини, тим більш високий перепад тиску виникає, і відповідно, тим вище стає циркуляційний тиск.
Переваги і недоліки опалення з природною циркуляцією
- Головна перевага системи – економічність. Для її функціонування немає потреби в додатковому
обладнанні – электронасосах, відповідно, скорочуються витрати на електрику і не передбачається витрат на ремонт електричних приладів. На фото – приклад опалення з природною циркуляцією. - Незалежність від електрики – при його відсутності або відключення опалення буде функціонувати, поки є паливо для котла.
- Відсутні додаткові шуми і вібрація, що викликає робота електрообладнання.
- Саморегуляція – циклічність роботи забезпечується різницею температур нагрітої й охолодженої рідини, при зміні величини збільшується або зменшується циркуляційний тиск. Така схема дає можливість подавати однакову кількість тепла на всі батареї.
- Простота монтажу – систему цілком можливо встановити своїми руками при наявність відповідного досвіду. Участь фахівців обов’язково лише в тому випадку, якщо передбачається використання газового котла.
- Інерційність – як в рівній мірі є як перевагою, так і недоліком. Після відключення котла тепло якийсь час буде зберігатися і передаватися в приміщення. Включення ж системи і обігрів будівлі займає досить багато часу.
Недоліки.
- Опалення з природною циркуляцією підходить тільки для малоповерхових будівель. Площа одного контуру не повинна перевищувати 30 кв. м. по горизонталі.
- Об’єм води в системі приблизно в три рази більше, ніж у варіантах з електронасосом, що забезпечує високу інерційність.
- Вибірковість матеріалів – трубопровід може бути тільки металевим. Полімерні труби не витримують дії високих температур. Це ускладнює процес монтажу та ремонту і знижує ККД опалення.
Обов’язкові вимоги
Для забезпечення високого рівня природної циркуляції котел повинен розміщуватися як можна нижче рівня радіаторів – тим самим збільшується напір холодної води, що переміщається з радіаторів по зворотній лінії. В одно – і двоповерхових будинках він розташовується в підвалі.
Обов’язковим є наявність розширювального бака відкритого типу. Останній повинен бути розміщений у найвищій точці системи. У двоповерхових будинках бачок поміщається на горищі. За рівнем води в ньому необхідно стежити: якщо рівень теплоносія виявиться нижче труби для виведення нагрітої води, існує реальна небезпека закипання рідини в стояку і вибуху котла. На фото – бачок з теплоізольованої основною трубою.
Верхній стояк, від якого починається розподіл нагрітого теплоносія, повинен знаходитися якомога вище найвищого радіатора.
Горизонтальні, поза залежно від діаметра, труби монтуються під нахилом у бік руху, забезпечуючи самоплив води. Також завдяки нахилу з’являється можливість відвести в розширювальний бак бульбашки потрапила всередину повітря. Ухил становить 5 мм на погонний метр труби.
Мінімально можливий діаметр труби складе 5 див. Величина ця залежить від кількості об’єктів опору – поворотів, відгалужень, батарей. Всі вони помітно знижують тиск, що вимагає, в свою чергу, збільшення діаметра трубопроводу.
Схеми опалення для двоповерхового будинку
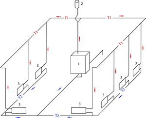
Однотрубна система – по суті, представлена описаної вище найпростішої схемою. Нагріта вода з верхнього стояка подається по одній трубі по черзі до кожного радіатора, а потім з останнього по обратке переміщається в котел. Недоліки такого варіанту очевидні відразу: в приміщення, що обігрівається в останню чергу, теплоносій потрапляє вже остиглий. В результаті будівля опалюється нерівномірно. На фото наведено зразок.
Двухтрубное опалення – передбачає наявність двох контурів: по верхньому подається гаряча вода, а по нижньому охолоджена самопливом переміщається до котла. Монтаж її своїми руками складніше, але ефективність помітно вище, так як на радіатор в кожне приміщення подається теплоносій встановленої температури, а, значить, двоповерховий будинок можна обігріти рівномірно.
Установка має наступні особливості:
Реалізація такого варіанту опалення потребує ретельних попередніх розрахунків, монтувати її своїми руками небажано, якщо відсутній досвід.
На відео демонструється монтаж двотрубного опалення з природною циркуляцією.

обладнанні – электронасосах, відповідно, скорочуються витрати на електрику і не передбачається витрат на ремонт електричних приладів. На фото – приклад опалення з природною циркуляцією.