Одним із найважливіших пунктів при розрахунку і побудові житлових комунікацій є вибір типу системи обігріву. Популярні в минулому російські печі і каміни зараз мають швидше декоративна, ніж функціональне застосування. Для обігріву ж найчастіше використовується енергія нагрітого теплоносія в котлі, який циркулює по трубопроводу і віддає тепло в навколишнє середовище.
Зміст
Види систем опалення
Для того що б зрозуміти, який варіант переважає в тому чи іншому випадку, необхідно більш докладно розглянути специфічні особливості обох видів систем обігріву.
до меню ?
Яку систему вибрати
Здавалося б, очевидним перевагою одноконтурної схеми є проста розводка, менший витрата труб і досить простий розрахунок трубопроводу. Однак при такій конфігурації нагріта в котлі рідина обходить радіатори батарей в порядку їх встановлення, вступаючи до останніх вже досить охолодженої. Тому при однотрубному підключенні важко домогтися рівномірного обігріву всіх приміщень.
Ця особливість досить сильно обмежує сферу застосування однотрубних систем: їх рекомендується встановлювати для обігріву одноповерхових житлових приміщень загальною площею не більше 100 кв. м. при відсутності додаткових відводів, наприклад, на теплі підлоги.
У всіх інших випадках повинна застосовуватися двотрубна розводка. Вона дозволяє подавати максимально нагрітий теплоносій одночасно до всіх батарей, що забезпечує цілий ряд переваг:
- рівномірне нагрівання всіх приміщень, регулювання температури в кожній кімнаті окремо;
- можливість простого розширення;
- така розводка дозволяє відключати або виставляти на мінімальний обігрів батареї в нежитлових приміщеннях. За рахунок цього можна одержати істотну економію витрат тепла;
- можливість використання труб меншого діаметра для компенсації витрат на пристрій більш довгою магістралі.
Підключення батарей може здійснюватися послідовно або організацією декількох контурів, кожен з яких включається «зіркою». У другому випадку додавання нових приладів виробляється набагато простіше.
Для організації безперебійної подачі і відводу рідини, в систему вбудовуються циркуляційні насоси. Зазвичай кожен контур відведення охолодженої рідини встановлюється свій насос.
до меню ?
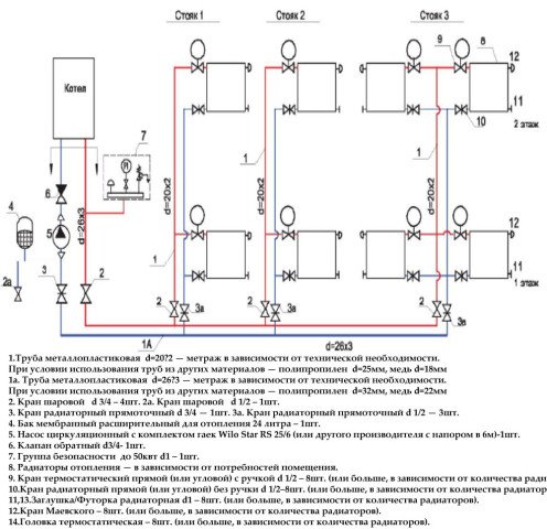
Розрахунок двотрубної системи опалення
Перед тим, як почати монтаж, необхідно визначити цілий ряд її робочих параметрів. Ця досить складна інженерна завдання називається гідравлічний розрахунок, для його виконання краще залучити фахівців.
Результатом такого розрахунку буде повна схема функціонування системи, що включає всі необхідні магістралі, запірну арматуру, обігрівальні прилади і місця розташування додаткового обладнання. Паралельно обчислюється необхідний діаметр труб, площа поверхні кожної батареї, величини втрат тиску в кожному контурі і т. д. (докладно цей момент розібраний на відео нижче):
Для того, щоб дотримати гідравлічний баланс усіх гілок, необхідно передбачити використання регулюючої арматури, здатної динамічно вирівнювати параметри середовища при різних режимах роботи.
до меню ?
Послідовність монтажу
Типовий російський приватний будинок являє собою двоповерхову будову, для його обігріву повинна застосовуватися двотрубна система опалення з вертикальними стояками. Тип розводки подаючої магістралі може бути як верхнім, так і нижнім.

Монтаж двотрубної системи опалення повинен здійснюватися в декілька етапів:
- Установка опалювального котла. Його краще розташовувати в окремому приміщенні з хорошою вентиляцією і обробкою з вогнезахисних покриттів;
- Установка насоса (опціонально). Насос зазвичай розміщується в зворотній магістралі;
- Розводка труб. Схема двотрубної системи опалення передбачає підведення двох магістралей до кожної батареї. Вони монтуються паралельно, одна під одною, труби з гарячим теплоносієм розташовуються зверху. Обов’язково повинен бути забезпечений ухил по всьому шляху прямування рідини (приблизно один сантиметр на метр горизонтального прольоту), якщо циркуляційний насос не встановлено;
- Підключення батарей. Їх закріплюють на спеціальних кронштейнах на висоті 10-12 см від підлоги. Увімкнення батарей повинно передбачати запірну арматуру для забезпечення можливості їх відключення від мережі в разі необхідності ремонту або заміни;

Способи підключення радіаторів
- Опресовування — перевірка цілісності всіх зчленувань, пробний пуск.
до меню ?
Які труби краще використовувати
Для обігріву можна використовувати труби з різного матеріалу. Застосовувалися раніше сталеві вироби давно вийшли з ужитку. Досить популярний сьогодні металопластик також має ряд недоліків: він здатний руйнуватися при тривалому нагріванні і з’єднується за допомогою фітингів з цанговими затискачами, які з часом починають протікати.
Заміна з’єднувальних елементів може зажадати зливу всієї рідини або її частини, що може негативно позначатися на її працездатності, особливо взимку.
Опалення будинку найкраще розводити за допомогою поліпропіленових або мідних труб:
- Перший варіант дешевше, але вимагає спеціального обладнання для пайки;
- Мідні труби – найбільш вдалий матеріал для цих цілей. Вони відмінно паяються, мають невелику товщину і не схильні до утворення всередині яких-небудь наростів або відкладень.

Обв’язка котельні, виконана з мідних труб
Єдине обмеження – досить висока ціна, яка, втім, компенсується безперебійною роботою і відсутністю необхідності в обслуговуванні протягом багатьох років.
Ціна питання
Зробити розрахунок і оцінити вартість водяного обігріву досить складно. В різних будівельних фірмах можна почути досить приблизні цифри: від 1000 до 2000 рублів за квадратний метр площі. Кінцева ціна залежить від цілого ряду факторів, серед яких найбільше значення мають наступні:
- Застосовувана схема. Однотрубні системи дешевше за рахунок меншої довжини трубопроводу;
- Якісний гідравлічний розрахунок. Застосування труб мінімально можливого перетину, оптимізація розташування батарей і довжини трубопроводів, установка терморегуляторів і мінімізація витрати теплоносія може значно зменшити витрати на установку;
- Якість матеріалів і робіт. Добре зібрана система не потребуватиме ремонту та обслуговування протягом всього терміну служби. В результаті, річна вартість володіння буде знижуватися з плином часу.
до меню ?
Корисні поради
На закінчення — кілька практичних порад:
- Необхідно передбачити дотримання низки заходів, що забезпечують функціонування системи при перебоях в електропостачанні. Найголовніше – ухили магістралей і резервне живлення котла (якщо він електричний);
- Не економте на запірній арматурі. Вентилі повинні бути на кожній батареї, в кожному окремому контурі і обов’язково на котлі;
- Звичайна вода може замерзнути, якщо доведеться надовго розбирати систему взимку. Якщо ж ви використовуєте антифриз, майте на увазі – його необхідно міняти раз в п’ять років;
- Велике значення має правильне розташування котла. Він повинен знаходитись нижче всіх радіаторів і з’єднуватися з найвищою точкою за допомогою стояка.
Не забудьте передбачити можливість зручного зливу рідини – це періодично доведеться робити. Зливати теплоносій найкраще в відро.


