- 1 Покроковий опис робочого процесу
- 1.1 Виміри і розрахунки
- 1.2 Придбання матеріалів і підготовка інструменту
- 1.3 Розмічувальні роботи
- 1.4 Кріплення напрямних і підвісів
- 1.5 Встановлення основного профілю
- 1.6 Кріплення гіпсокартону
- 1.7 Обробка поверхні
- 2 Висновок
Якщо ви вирішили самостійно провести монтаж гіпсокартону на стелю, то цей огляд те, що вам потрібно. У ньому немає спеціальних термінів і складних операцій, все описано просто, щоб будь-яка людина міг зробити ідеально рівну і надійну конструкцію, навіть якщо він проводить роботи вперше.


На фото: споруда гіпсокартонної стелі під силу будь-якій людині


Конструкція такого типу проста і надійна, і це її головні переваги
Покрокове опис робочого процесу
Обробка стелі гіпсокартоном своїми руками – процес нескладний, якщо розбити його не дрібні кроки і виконувати їх у правильній послідовності.
Щоб вам було простіше орієнтуватися, я розділю роботу на дрібні частини:
- Заміри та розрахунки;
- Купівля матеріалів та підготовка інструменту;
- Розмітка майбутньої конструкції;
- Кріплення напрямних і підвісів;
- Установка стельового профілю;
- Монтаж гіпсокартону;
- Оздоблювальні роботи.
Важливо не упускати жодного нюансу, тільки тоді ви зможете досягти найкращого результату. Не потрібен досвід і навички в будівництві, потрібна акуратність і чітке дотримання всіх рекомендацій.


Ідеально рівна стеля – обов’язкова частина будь-якого сучасного інтер’єру
Заміри та розрахунки
Якщо ви вирішили проводити роботу своїми руками, то і підготовчі заходи доведеться провести самостійно. Це дуже важлива частина процесу, якщо ви наробите помилок, то придбаєте зайві матеріали, або, навпаки, в процесі роботи виявиться, що у вас не вистачає тих або інших комплектуючих.
Тому виконайте всі операції в точності з рекомендаціями:
- В першу чергу проведіть виміри приміщення, ви повинні знати точну довжину і ширину стелі. Для цього вам знадобиться лише рулетка. Якщо конфігурація приміщення складна – з нішами й виступами, то краще міряти кожну ділянку окремо і скласти приблизний ескіз на аркуші паперу;


Завжди перевіряйте розміри, цифри в проекті можуть відрізнятися від реальних показників
- Розрахувати кількість гіпсокартону нескладно, просто обчисліть площу і переведіть її в листи. При стандартному розмірі листа 2500х1200 мм його площа становить 3 квадратних метра;


Для стелі краще використовувати стіновий варіант товщиною 12,5 мм
- Профіль розраховується так: напрямні елементи кріпляться по периметру, значить, нам потрібно підсумувати довжину всіх стін і розділити її на 3 (довжина одного виробу). Що стосується основних стельових профілів, то вони розташовуються з кроком 40 см один від одного по всій поверхні. Найпростіше порахувати необхідну кількість, накресливши схему в порівнянному масштабі;
- Підвіси розташовуються уздовж основних профілів з кроком в 50 див. Саморізи для гіпсокартону купуються з розрахунку 70-80 штук на лист, а клопи для складання каркаса – близько 30 штук на аркуш.


Для кріплення використовуються саморізи 3,5х25 мм з дрібним кроком різьби
Придбання матеріалів і підготовка інструменту
Перелік матеріалів, необхідних для спорудження підвісної стелі, зазначений у таблиці нижче.


Вибирайте якісний основний профіль, на нього припадає основне навантаження
Матеріал Рекомендації по вибору Гіпсокартон Правила розрахунку і розміри гіпсокартонних листів ми розглянули вище. Вам потрібно лише визначитися з типом матеріалу. Є стельовий варіант товщиною 9,5 мм і стінові плити завтовшки 12,5 мм (саме їх я рекомендую застосовувати увазі високої міцності).
Для вологих приміщень оптимальним буде використання вологостійкого варіанту, його легко відрізнити по зеленому покриттю Профіль При придбанні направляючих профілів потрібно знати довжину всіх стін. Основний профіль розташовується через 40 см уздовж лінії розташування аркушів.
Вибирайте вироби із сталі товщиною 0,5 мм і більше, їх ціна трохи вище, ніж у дешевих варіантів з тонкого металу, але економити на надійності не варто Кріплення З приводу розрахунку підвісів і саморізів я писав вище. Тут розберемо лише дюбелі швидкого монтажу. Ними кріпиться пристінний профіль з кроком в 50 см, порахувати, скільки дюбель-цвяхів знадобиться, нескладно Утеплювач (при необхідності) Якщо вам потрібно прокласти на стелі шар тепло і звукоізоляції, то простіше всього використовувати рулонну мінеральну вату товщиною 5 см, яка закладається під каркас по всій площі Матеріали для зміцнення стиків Щоб у місцях з’єднання не виникали тріщини, треба зміцнювати їх. Для цього ми будемо використовувати сітку-серп’янку і спеціальний склад для швів «Кнауф Фуген» Шпаклівка Для вирівнювання стелі я рекомендую використовувати складу «Ветоніт». Він відрізняється простотою нанесення і легкістю обробки. Крім того, готова маса зберігає еластичність протягом доби, що особливо важливо для тих, хто працює повільно Грунтовка Використовується складу глибокого проникнення, який потрібен і для зміцнення гіпсокартону перед шпаклівкою, і для додання міцності шпаклевочному шару Фарба Найчастіше використовуються склади на акриловій основі. Колір ви визначаєте самі, виходячи з оформлення інтер’єру 

Склади «Ветоніт» дозволяють добитися відмінного результату навіть тим, хто займається шпаклівкою вперше в житті
Установка гіпсокартону на стелю своїми руками неможлива без такого інструменту:
- Перфоратор з буром діаметром 6 мм. Якщо стіни дерев’яні, то цей інструмент не потрібен;
- Шуруповерт – цим інструментом ви будете користуватися найбільше. Якщо у вас його немає, то краще купити, вибирайте варіант з двома акумуляторами, тоді ви зможете працювати без перерв. В комплекті повинен бути комплект насадок під саморізи;


Є спеціальні варіанти з магазинами під саморізи, працювати з ними – одне задоволення, так і швидкість кріплення підвищується в рази
- Будівельний рівень потрібен для контролю площині при спорудженні конструкції. Для вимірювань та розмітки використовується рулетка і олівець. Щоб виставити точні мітки для каркаса, краще всього користуватися водяним або лазерним рівнем;


Найпростіше проводити размету з допомогою лазерного рівня
- Різання профілю проводиться за допомогою ножиць по металу. Для різання гіпсокартону використовуються звичайні будівельні ножі з плоским або трапецієподібним лезом. Щоб різати матеріал рівне, потрібна рейка або металева лінійка;


Вибирайте ножі з лезом шириною 25 мм, вони набагато міцніше
- Нанесення фарби і грунтовки проводиться валиком або пензлем. Шпаклівка розподіляється вузьким і широким шпателем;


Основний інструмент для нанесення шпаклівки – шпатель шириною 25-30 см
- Вирівнювати поверхню простіше всього за допомогою спеціальної терки, на яку кріпиться наждачний папір із зерном Р150.
Розмічальні роботи
Щоб стеля була рівною, слід зібрати каркас точно по горизонталі. Тому в першу чергу проводяться розмічальні роботи.
Процес складається з таких дій:
- Для початку потрібно визначитися, на якій відстані від стельового перекриття буде розташовуватися конструкція. Зверніть увагу, що при використанні стандартних прямих підвісів ми не можемо опустити площину більш ніж на 12 див. Але зазвичай стелі в квартирах низькі, і доводиться боротися за кожен міліметр, тому відступ від стелі становить 30-50 мм;


Конструкція підвісу дозволяє закріпити каркас в будь-якому діапазоні від 3 до 12 см
- Розмітка площині проводиться за допомогою лазерного або водяного рівня. Якщо з першим все зрозуміло – треба промалювати смужку на стіні, то з другим треба розібратися. Водяний рівень працює за принципом сполучених посудин, тому, виставивши крапку в одному місці, можна зробити мітки по всьому периметру кімнати. Відстань між ними має бути таким, щоб ви змогли отчертить лінію за допомогою рівня або лінійки;


Водяний рівень – просте, але дуже точне пристосування
- На стелі робляться лінії на відстані 40 або 60 см один від одного. Це будуть орієнтири для кріплення основного профілю. При більш частому розташуванні профілю поперечки не потрібні, при більш широкому – бажано посилити каркас розпірками.
Кріплення напрямних і підвісів
Після розмітки можна приступати до роботи по кріпленню направляючих.
Робочий процес складається з таких етапів:


Схема робіт не відрізняється складністю
- Для початку треба приміряти елементи і відрізати до потрібного вам розміру. Робота проста: ви отмеряете потрібну відстань, малюєте лінії з двох сторін і потім робите різання ножицями по металу. Краще всього спочатку до кінця прорізати бічні сторони, а потім перегнути елемент і закінчити різання так, як показано на фото нижче;


Різати елементи дуже легко
Якщо вам потрібно поліпшити звукоізоляцію стелі, то на підставу направляючого профілю наклеюється спеціальна акустична стрічка. Вона виключить передачу вібрацій від стін будинку на каркас, тим самим знижуючи рівень шуму.


Акустична стрічка створює бар’єр між профілем і бетонною поверхнею
- Отвори під дюбелі повинні розташовуватися не далі 100 мм від краю профілю, якщо їх там немає, то просвердліть шуруповертом та свердлом по металу. Після цього профіль приставляється до стіни, і позначаються точки, де потрібно зробити отвори під дюбель-цвяхи;
- Свердління проводиться за допомогою перфоратора і бура діаметром 6 мм. Глибина отвору повинна бути на 5-10 мм більше довжини дюбелів. Щоб контролювати заглиблення, можна використовувати спеціальну наполегливу планку на електроінструменті або просто наклеїти шматок скотча на бур в потрібному місці. При роботі слідкуйте за рівним становищем обладнання;


Тримайте інструмент рівне
- Профіль приставляється за місцем його розташування, перевіряється збіг отворів. Якщо все нормально, то спочатку вставляється дюбель. Якщо він зайшов до упору, то можна забивати ударний шуруп, на цьому кріплення закінчено, напрямні будуть триматися дуже міцно;


Шуруп забивається, тільки якщо дюбель пішов по саму шляпку
- В останню чергу по лініях закріплюються прямі підвіси. Вони розташовуються з кроком не більше 50 см і фіксуються дюбель-цвяхами. Кожен підвіс закріплюється на два дюбеля 6х40 мм. В кінцевому результаті у вас повинно вийти так, як показано на фото.


Результатом першої частини робіт є готова основа під монтаж основних елементів
Установка основного профілю
Коли напрямні елементи закріплені, можна ставити основні стійки:
- В першу чергу профіль підрізається до потрібного нам розміру. Робота проводиться за допомогою ножиць по металу. Робіть довжину на 5-7 мм менше, щоб елементи легко вставлялися в каркас не вигиналися при кріпленні;
- Профіль акуратно заводиться в направляючі пази і рухається в потрібне місце. Елемент вирівнюється по лінії і закріплюється до пристінному каркаса за допомогою саморезов-клопів. На кожне з’єднання повинно припадати не менше двох точок кріплення;


В першу чергу несучі стійки фіксуються по краях
- Далі підвіси підгинаються до профілю, але кріпити відразу їх не потрібно. Спочатку перевірте, чи рівно розташовується стійка, після чого можна проводити фіксацію за допомогою клопів. Вкручуйте по одному кріплення з кожної сторони. Відрізати зайві кінці підвісів не треба, їх можна відігнути вгору, заважати нам вони не будуть;


Після кріплення кінці просто відгинаються вгору
- При розташуванні профілю з кроком 60 см конструкція посилюється перемичками, які розташовуються через ті ж 60 сантиметрів. Їх краще кріпити через краби, так сполуки виходять міцними і рівними;


Перемички роблять конструкцію набагато міцнішим і стабільнішим
- Якщо вам потрібно утеплити поверхню, то мінеральна вата закладається поверх профілю у всі порожнечі. При цьому відігнуті кінці підвісів використовуються як фіксатори для матеріалу, тому додатково кріпити його не треба.


Утеплення конструкції – процес нескладний
Кріплення гіпсокартону
Гіпсокартон на стелю своїми руками встановлюється так:
- Якщо у вас немає ніяких додаткових пристосувань для фіксації, то варто залучити до робіт як мінімум двох помічників. Вони будуть притримувати матеріал, поки ви будете кріпити;


Фіксація листів гіпсокартону може проводитися за допомогою струбцин
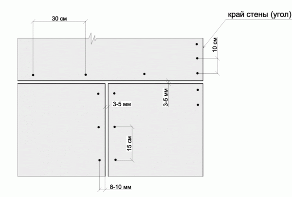
- Ставиться перший лист і проводиться кріплення до профілю. Крок розташування саморізів показаний на малюнку нижче. Важливо пам’ятати, що відступ від краю повинен бути не менше 8 мм, щоб ви не пошкоджували краю. Спочатку можна закручувати саморізи через один, щоб зафіксувати лист, а потім вже доробляти роботу до кінця;


Ось такі вимоги пред’являються до кріплення
- Між листами залишати зазори в 3-4 мм, щоб потім зміцнити стики. Поперечні стики аркушів не повинні збігатися, тому кожен другий ряд починається з половинки листа. Різання матеріалу здійснюється просто: поверхня розмічається, після чого ножем під лінійку прорізається верхній паперовий шар. Легким ударом зсередини лист переламується, після чого ріжеться папір і зсередини;


Різати потрібно по лінійці
- При кріпленні гіпсокартону своїми руками важливо правильно закручувати саморізи. Капелюшок повинна розташовуватися рівно і втоплюватися в поверхню на 1-2 мм. Стирчать краю не допускаються;
- Монтаж листів зазвичай займає небагато часу. Важливо стежити за тим, щоб стики розташовувалися посередині профілю, інакше ви не зможете закріпитися по краях. Намагайтеся на суміжних стиках розташовувати саморізи не навпроти один одного, а зі зміщенням.


Кріплення листів по краях краще розташовувати зі зміщенням
Стелю на лоджії з гіпсокартону або конструкцію у ванній і на кухні краще обшивати вологостійким матеріалом. Він набагато краще протистоїть перепадів температури і вологості.


Для лоджій більше підходить вологостійкий варіант
Обробка поверхні
Після монтажу гіпсокартону належить ще один дуже важливий етап – його оздоблення.
В рамках цієї частини робочого процесу ми виконаємо такі роботи:
- В першу чергу поверхня очищається від пилу. Якщо на стелі є стик відрізаних країв або торців гіпсокартону, то на них потрібно вибрати фаску. Це робиться просто: ножем зрізається край матеріалу під кутом 45 градусів. Також перевірте капелюшки саморезов: проведіть рукою по поверхні, якщо десь є виступаючі елементи, підкрути їх;


Фаска дозволяє зміцнити стики спеціальним складом
- Далі всі з’єднання обробляються грунтом, він наноситься з відступом 5 см в обидві сторони від шва. Важливо якомога краще обробити шви, особливо в місцях, де зрізано фаска, щоб зміцнити матеріал;


Шви ретельно грунтуються за допомогою пензля
- По всіх швах кріпиться сітка-серпянка. Тут все дуже просто, адже самоклеючий матеріал, і все, що вам потрібно, це акуратно розмотувати його і притискати до поверхні посередині стиків. Відрізати склосітку найкраще будівельним ножем;


Сітка зміцнює стики і запобігає розтріскування шпаклівки
- Готується невелику кількість складу «Кнауф Фуген», він застигає протягом 30-40 хвилин, тому заважайте стільки, скільки встигнете витратити. Склад наноситься по швах таким чином, щоб він повністю заповнив стики і поглиблення по краях листів. Надлишки акуратно знімаються. Вузьким шпателем невеликими мазками закладаються капелюшки саморезов по всій поверхні;


Стики затягуються зміцнює складом
- Після висихання складу (на це йде 3-4 години) потрібно повністю загрунтувати поверхню. Після цього стелю залишається до повного висихання;
- Шпаклівка проводиться таким чином: склад наноситься з краю стіни і розподіляється тонким шаром по всій поверхні. Шпатель тримається під кутом 30 градусів і ведеться так, щоб залишався шар у 2-3 мм. Рухи повинні бути плавними і розмашистими, не хвилюйтеся за дрібні вади, вони усунуться на наступному етапі;


Склад розподіляється рівним шаром за допомогою широкого шпателя
- Перший шар сохне приблизно добу. Після цього напливи і розлучення зрізаються шпателем, і наноситься другий шар. Він повинен усунути всі недоліки і остаточно вирівняти площину. У цьому випадку шар може бути і 1 мм, головне щоб на стелі не було пошкоджень;


Другий шар наноситься як можна акуратніше
- Коли поверхня висохне, можна приступати до шліфування. Для цього використовується терка, на яку надівається наждачний папір або абразивна сітка. Стеля обробляється круговими рухами, щоб прибрати всі напливи і розводи і вирівняти площину до ідеальної гладкості. Для контролю робочого процесу використовуйте лампочку або ліхтарик, світло покаже всі вади;


Працювати теркою потрібно з помірним натиском, щоб не знімати занадто багато шпаклівки
Шліфування – процес дуже курний, тому обов’язково запасіться захисними окулярами та респіратором.
- Поверхня очищається від пилу і грунтується ще раз. Це дозволить зміцнити основу і поліпшити адгезію лакофарбового шару;
- Фарба наноситься після висихання ґрунту. Зручніше всього проводити роботу валиком, а пензлем дофарбовували ділянки уздовж стін і в важкодоступних місцях. Найчастіше для отримання однорідного кольору потрібно нанести 2-3 шари складу. Тут варто дивитися по ситуації.


Для зручності роботи можна використовувати подовжувач ручки для валика
Висновок
Я впевнений, що цей дуже докладний огляд дозволить вам без праці впоратися з роботою і зробити ідеальний стеля з гіпсокартону без сторонньої допомоги. Відео в цій статті допоможе ще краще вникнути в суть процесу, а якщо вам незрозумілі окремі моменти, то пишіть питання в коментарях.
