X ЗАКРИТИ
Зміст
- 1 Про металевий сайдинг та його застосування
- 1.1 Про сайдинг і профілях
- 1.2 Монтаж металосайдингу на вентфасад
- 2 Висновок
Використання різних матеріалів в облицюванні будівель дозволяє досягти самого оптимального поєднання естетики, надійності і малу собівартість. У цьому світлі ми розглянемо такий оздоблювальний матеріал, як горизонтальний і вертикальний металевий сайдинг, його можливу конфігурацію, місця застосування і способи монтажу.


Металеві сайдинги в різному колірному виконанні
Про металевий сайдинг та його застосування
Слово сайдинг взято з англійської мови і походить від Siding, що означає зовнішнє облицювання, так що сайдинг з металу як не можна краще відображає суть призначення, адже він застосовується саме для цієї мети.


Поєднання сайдинга і металочерепиці в облицюванні житлового будинку
Крім металу з такою ж назвою виступає вініл, дерево, піноплекс і фіброцемент.
Про сайдинг і профілях


Металлосайдінг під колоду Grand Line
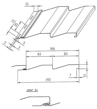
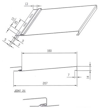
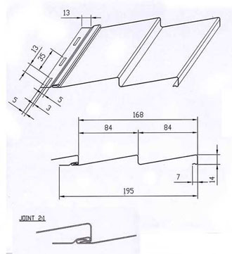
- По своїй конфігурації панелі бувають типу корабельної дошки, колоди, ялинки (подвійний ялинки) і плоскі. Технічні характеристики металевого сайдинга можуть трохи відрізнятися один від одного в різних колекціях панелей. Нижче ми розглянемо основні параметри панелей різної форми.
Читайте також про види та особливості облицювальних матеріалів для фасадів.


Панель «Корабельна дошка»
- Панель типу «Корабельна дошка» має довжину від 0,5 м до 6 м, при ширині 250 мм. Вага металевого сайдинга даної конфігурації за 4кг/1м2 при товщині 0, 5-0,6 мм. Можливості колірного оформлення по таблиці RAL.


Панель «Ялинка»
- Панель типу «Ялинка» може бути завдовжки від 0,5 м до 6 м при ширині 250 мм. Вага сайдинга 4кг/1м2 і товщина 0,5-0,6 мм. Можливості колірного оформлення по таблиці RAL.


Панель «Подвійна ялинка»
- «Подвійна ялинка» має ідентичні параметри і може бути завдовжки від 0,5 до 6м, шириною 25 см, вагою 4кг/1м2 при товщині про,5-0,6 мм. Можливості колірного оформлення по таблиці RAL.


Плоска панель
- Плоска панель має довжину від 0,5 до 6 м при ширині 250 мм. Вага сайдинга 4кг/1м2 і товщина 0,5-0,6 мм. Можливості колірного оформлення по таблиці RAL.
- Вище приведені загальні параметри найбільш поширених панелей, але, тим не менш, їх ширина може досягати 360-390 мм, а деякі виробники збільшують товщину сайдинга до 1 мм.


Комплектуючі металевого сайдінга для переходів і з’єднань
- Для стикувань, переходів і з’єднань необхідні добірні елементи для металевого сайдинга, які виготовляються відповідно з параметрами кожної колекції (товщина і колір металу), так як ГОСТ на них відносний. Способи кріплення таких профілів ідентичні способом кріплення панелей металевого сайдинга.


Металопластиковий сайдинг Гранд Лайн в обробці будівлі
- Говорити про те, який сайдинг краще, пластиковий або металевий, або поєднання цих матеріалів в одну конструкцію, мабуть, не має сенсу. Кожен матеріал хороший по своєму, у кожного є свої достоїнства і недоліки, тому що все буде залежати від особистих уподобань. Але якщо вже ми приділяємо основну увагу панелям з металу, то і монтаж ми розглянемо применяемо саме до металевого сайдингу.
Монтаж металосайдингу на вентфасад


Принципова підсистема для металевого сайдинга схематична
Зараз ми розглянемо, як своїми руками зробити обрешітку для металевого сайдинга з підсистемою вентиляції фасаду. Відразу можна сказати, що існують два види конструкцій – металеві і дерев’яні, причому ці теж можуть відрізнятися за способом складання, хоча принцип вентиляції залишиться таким же.


Монтаж обрешітки — початок робіт
- Для початку розберемо, як збирається дерев’яна обрешітка вентильованого фасаду для сайдинга, при цьому відразу обмовимося, що металевий цокольний сайдинг монтується на ту ж обрешітку, що і звичайний. Це стосується також каркаса з металу, просто один вид панелей відділяється від інших за допомогою фриза або наличника.
- У першу чергу потрібно прикрутити горизонтальні рейки, як це видно на фото, щоб встановити між ними утеплювач. Товщина бруса може варіюватися залежно від товщини утеплювача, але зазвичай це 50?50 мм, Відстань між профілями має бути на 5-10 мм менше ширини утеплювача, щоб останній міг щільно сідати в клітинку.
- В якості утеплювача зазвичай використовують різні види мінеральної вати – кам’яну, шлакову і скляний. Іноді це буває екструзійний пінополістирол, але ціна на нього набагато вище, тому його застосовують вкрай рідко.


Використання шаблону при встановленні обрешітки
Рада. Відстань між горизонтальними профілями має бути однаковим, у відповідності з шириною утеплювача і кожну рейку доводиться виміряти рулеткою. Щоб прискорити процес монтажу обрешітки зробіть шаблон з шматків бруса щодо необхідного вам розміру.
- Кріплення дерев’яних рейок здійснюється за допомогою пластикових дюбелів і саморезов – для цього підходять, як ударні, так і звичайні дюбелі. Отвір в стіні можна свердлити прямо через брус, використовуючи для цього довге свердло з побідитовою насадкою.


Утеплення стіни мінеральною ватою
- Наступним кроком після встановлення горизонтальної обрешітки буде укладання утеплювача між профілями. Деякі будівельники пропускають при утепленні місце для цоколя, але це неправильно, так як стіна, охолоджуючись знизу, буде холодною і вище. Так що утеплювач слід встановлювати до самої вимощення, ніде не залишаючи залисин і закріпити дюбелями з капелюшком (грибок-дюбель).
Рада. При бурінні стін крізь мінеральну вату остання може намотуватися на свердло, тому можна застосувати звичайну трубку з металу або пластику. Вибираєте діаметр на пару міліметрів більше товщини свердла і приставляєте його до стіни, крізь вату.


Установка паропроникного вітробарь’єр
- Утеплену стіну слід закрити паропроницаемой вітрозахисною плівкою (асортимент такої плівки дуже великий). Прикріпіть її до горизонтальних рейках степлером або прикрутіть саморізами з широким капелюшком. Процес установки утеплення, як і монтаж сайдинга ви зможете побачити на відео ролику, який прикладений до сторінки.


Вертикальна решетування для металосайдингу
- Тепер, після встановлення утеплення і вітробарь’єр, можна приступати до монтажу вертикальної обрешітки для кріплення панелей і направляючих. Крайні профілі встановлюються на відстані 10 см від кута будівлі, щоб комплектуючі у вигляді кутового зовнішнього або внутрішнього профілю, а також J-trim профілю вільно лягали на площину каркаса.
- Оптимальна відстань між вертикальними профілями решетування має бути не більше 40 см, щоб не виникало прогину панелей. Установка починається з крайніх рейок, які виставляються строго за рівнем, у якості підставок для нівелювання використовуються шматочки тих же брусків.
- Щоб виставити рівне проміжні профілі потрібно по верху і по низу крайніх рейок натягнути нитку для орієнтира. Після цього у вас виходить готовий шаблон, де коригувати рівнем доведеться тільки середину бруса.
Читайте також статтю про правильному монтажі профілю для сайдинга.


Принцип утеплення стіни з металевим каркасом для вентфасад під сайдинг
- Тепер розглянемо фірмовий вентфасад, у якого є сертифікат на його виготовлення і всі добірні елементи поставляються в комплекті. Але суть полягає в тому, що тут не потрібна вертикальна решетування для утеплення, так як утеплювач протягується крізь кронштейни для профілів. Те ж саме відбувається і при монтажі металоконструкцій з профілів CD, які використовуються для монтажу стельового гіпсокартону.
- У фірмових каркасів для вентфасад є інструкція зі складання, хоча всі вони збираються принципово однаково. Тільки от утеплювач протягується через консолі і потім відразу ж надівається ветробарьер, а грибки-дюбелі фіксують і утеплювач і плівку одночасно.


Профілі CD в якості направляючих на решетуванні
- Те ж саме відбувається, якщо металеві напрямні для сайдинга з профілів CD. Всі інші умови як для дерева, і для металу – однакові – головне, щоб зазор для вентиляції становив не менше 30 мм


Монтаж металосайдингу під колоду
- Монтаж металосайдингу починається з установки напрямних профілів. Так, в першу чергу прикручується стартовий профіль, потім кутові, і в кінці – фінішний, після чого можна приступати до установки панелей. Виставляти листи потрібно знизу вгору, фіксуючи їх цвяхами або саморізами. Останню панель вам доведеться підрізати по довжині, тому вона буде триматися тільки на профілях і на попередньому сайдинг – затисніть її додатково кількома саморізами з прес-шайбою крізь поверхню, щоб забезпечити жорсткість під час вітру.
- Забиваєте ви цвяхи, або прикручуєте панелі саморізами – залишайте відстань 1-1,5 мм між капелюшком і панеллю, щоб метал міг вільно розширюватися і звужуватися при перепадах температури.
- Якщо ви встановлюєте вертикальний металевий сайдинг, то всі вимоги до решетування і принцип її монтажу не змінюється. Змінюється тільки напрям несучих профілів — з вертикального на горизонтальне.
Висновок
На закінчення хотілося б сказати, що купуючи цокольний металевий сайдинг, намагайтеся робити це одночасно з фасадними панелями, щоб вони були однотипними. Вам доведеться якось оформляти перехід від цоколя до фасаду і наличник з загальної колекції, безумовно, підійде набагато краще, ніж при разнобое.
Читайте також про технології монтажу вентильованих фасадів.
