
При відкритті нового салону меблів було поставлено завдання – придумати щось новеньке для дитячої тематики, цікаву, але недорогу модель дитячого куточка чи якийсь універсальної дитячої стінки. Ідей з цього приводу було не мало.






Але на ряду з унікальним дизайном і понад функціональністю меблів для дитини, вона повинна була бути недорогою і доступною для більшості споживачів.



Креслення ліжка зроблений в програмі компас. Так само як завжди в архіві знаходиться специфікація проекту з вимогою
Перелопативши половину інтернету в пошуках чогось підходящого, спочатку зупинилися на куточку в дитячу кімнату з двоповерховим ліжком. Але що то вона нам здалося якийсь сильно банальною і ми вирішили зробити щось новеньке.
На очі попалося кілька ліжок – трансформерів. Перевагою такої ліжечка є її понад функціональність.
От як раз креслення такий ліжечка я і хочу тут викласти. Проект повністю робочий. За даними кресленнями збиралася реальна ліжко трансформер. Так що якщо ви маєте якийсь досвід у збиранні меблів, користуючись кресленням, ви своїми руками зможете легко зібрати цю ліжечко.

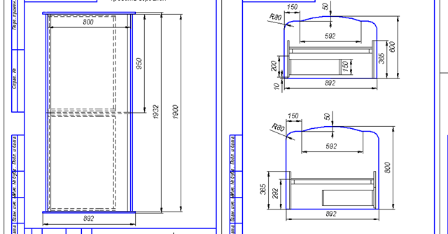
У проекті ліжко складається з трьох окремих частин, ліжко для дорослої людини, ліжечка для немовлят і комода з пелинальницей, які в комплекті виглядають як одне ціле. Основна частина це ліжко для дорослого дитини, розміри під матрац 2000мм*800мм, ліжечко для немовляти розміри під матрац – 1200мм*600мм та комода пелинальницы з трьома висувними ящиками.
Креслення ліжка зроблений в програмі компас. Так само як завжди в архіві знаходиться специфікація проекту з вимогою та сам 3D проект, виконаний у програмі PRO100.
Скачати: Проект ліжка трансформера
