Зміст
- 1 Плюси і мінуси дитячої двох’ярусної ліжка
- 1.1 Фотогалерея: двоярусні ліжка для дітей
- 2 Як зробити двох’ярусне ліжко своїми руками (варіант 1)
- 2.1 Опис конструкції, креслення
- 2.2 Вибір і розрахунок кількості матеріалу
- 2.3 Інструменти
- 2.4 Покрокова інструкція по виготовленню
- 2.5 Декорування конструкції
- 3 Як зробити двох’ярусне ліжко своїми руками (варіант 2)
- 3.1 Опис конструкції, креслення
- 3.2 Перелік необхідних матеріалів
- 3.3 Список необхідних інструментів
- 3.4 Покрокова інструкція по виготовленню
- 3.5 Оформлення ліжка
- 4 Відео: ліжечко для дівчаток своїми руками
Коли в сім’ї з’являється друга дитина, що трапляється часто, неминуче постає питання про компактних спальних місцях для дітей. Самим раціональним і естетичним рішенням є покупка двох’ярусної дитячого ліжка. Але не всім вона по кишені, а ось зробити її своїми руками набагато дешевше і простіше.
Плюси і мінуси дитячої двох’ярусної ліжка
Таке подвійне спальне місце для багатьох сімей часом є єдиним прийнятним варіантом, тому що переваги тут переважують недоліки.
Головні достоїнства двох’ярусної ліжка для дітей:
- вона займає мало місця в кімнаті (в умовах міських квартир, де важливий кожен квадратний метр, це суттєвий плюс);
- двоповерхове ліжко виглядає красиво, якщо зроблено умілими руками з належним старанням;
- вона може виконувати одночасно функції спортивного куточка і робочого місця для дитини;
- виготовлення двох’ярусної ліжка своїми руками можливо при наявності мінімальних навичок в столярній справі.
Але у такої меблів є і недоліки:
- вся конструкція з-за великої висоти виглядає деколи занадто громіздко;
- купити двоярусне ліжко в магазинах корпусних меблів коштує дорого (від 7 тис. грн. і більше);
- дитина може впасти з другого поверху, якщо недостатньо закріплені борту;
- ліжко може виявитися нестійкою, її напевно доведеться додатково кріпити до стіни.
Але всі ці мінуси вевсе не страшні, якщо зібрати виріб самому і дотримати всі рекомендації фахівців.
Фотогалерея: двоярусні ліжка для дітей

Конструкція з сходами з торця буде зручною для використання обом дітям

Для маленької кімнати підійде ліжко з висувним спальним місцем

Ліжко з функцією спортивного куточка сподобається хлопчикам

Симетрична меблі нікого не залишить обділеним

Спальні місця можуть розташовуватися перпендикулярно один до одного

Сходи у вигляді ящиків допоможе заощадити місце

При бажанні можна зробити цілий функціональний комплекс

Підійде двох’ярусне ліжко і підліткам

Двох’ярусне ліжко може мати в своїй конструкції різні полиці і ящики

Класичний варіант забезпечений звичайної сходами
Як зробити двох’ярусне ліжко своїми руками (варіант 1)
А починати потрібно, як і при всякому серйозній справі, з продумування конструкції та складання проекту.
Опис конструкції, креслення
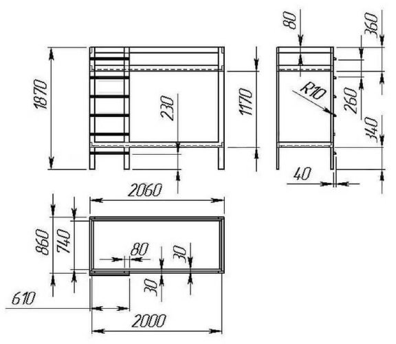
Найчастіше виріб виготовляється з дерев’яних брусків і фанери. Це найпростіший і дешевий варіант. Пам’ятайте, що ширина ліжка повинна забезпечувати достатню місткість і відповідати стандартному розміру матраца. Оптимальна величина — 80 див.
Що стосується висоти кожного ярусу, то ці параметри приймаються індивідуально. Перший поверх повинен бути не нижче найвищого скриньки для іграшок, який потім засунеться під ліжко. Зазвичай це 35 див.
Другий ярус підніметься на висоту 1,3 м від підлоги або більше. Якщо зробити нижче, можуть виникнути певні незручності. Наприклад, дорослому не вдасться сісти прямо.
Загальна висота конструкції повинна скласти приблизно 2 м. Більше погано — старший (молодший) брат (або сестричка), встаючи вранці, буде тыкаться головою в стелю. Довжина ліжка приймається рівною максимальній середнього зросту дорослої людини. В ідеалі цей розмір складає від 1,75 м до 2 м.
На кресленні повинні бути присутніми всі розміри
Оптимальною вважається ширина 610 мм для сходів. Нею буде зручно користуватися дітям і дорослим.
Що стосується відстані між східцями, то воно має бути мінімум 200 мм, а максимум — 260 мм, Інакше виникнуть труднощі у дитини, який переступає з однієї сходинки на іншу.
Вибір і розрахунок кількості матеріалу
Для двох’ярусної ліжка ідеально підійдуть бруски, оскільки коштує такий матеріал недорого.
Відбираючи бруски, потрібно відразу дивитися на їх якість. Слід купувати тільки ті, у яких як можна менше сучків, гладка поверхня і хороша на око прямолінійність. Найкраще підійде сосна або ялина. Такий матеріал недорогий, міцний і легко обробляється.
Нехай висота ліжка буде 2 м, ширина 0,82 м, а довжина 1,88 м. Приймемо висоту першого ярусу 35 см від підлоги, а другого — 1,5 м від підлоги. Ширину сходів призначимо дорівнює 63 див.
Отже, для основного каркаса вам знадобляться міцні бруски з перерізом 40х60 мм Пам’ятайте, що буде 4 вертикальні стійки по 2 м і 4 горизонтальних поперечини по 1,88 м, а також знадобиться 4 торцевих горизонтальних балки по 0,82 м. Цей пиломатеріал продається балками довжиною 2 м. З кожного такого бруска вийде по 2 торцеві поперечини. У підсумку вам знадобиться загальна кількість зазначених брусків N=4+4+2=10 штук.
Крім того, вам потрібні будуть борти з бруска перетином поменше — 30х40 мм Сходи можна зробити з такого ж пиломатеріалу.
Саморобну ліжко завжди можна стилізувати під загальний дизайн кімнати
Тепер можна провести розрахунок брусків перерізом 30×40 мм Сходи буде розташовуватися в лівій частині фасаду конструкції. При цьому праві кінці сходів своїми торцями упруться в окрему вертикальну стійку і на ній же закріпляться. А ліві кінці внапуск зафіксуються на фасадній основний вертикалі ліжка перерізом 40х60 мм Самі сходинки залишаться з прямокутним профілем. Їх загальна кількість 6 штук (т. к. відстань між ними приймаємо 250 мм, ділимо висоту другого ярусу на цю величину і отримуємо N=1,5/0,25=6).
Отже, для сходів знадобиться:
- вертикальна права стійка перерізом 30×40 мм і висотою 2 м;
- сходинки такого ж перерізу загальною довжиною L=6х0,63=3,78 м.
Неважко порахувати, що з кожного бруска стандартної довжини 2 м вийде по 3 сходинки (0,63х3=1,89). Значить, всього для цих елементів необхідно 2 балки. Отже, на сходи використовуємо 3 бруски перерізом 30×40 мм стандартної довжини 2 м.
Що стосується бортів, то внизу, на першому поверсі ці елементи не потрібні. На другому ярусі можна зробити за два бортика — на фасаді і з торців. На задній частині ліжка достатньо зробити всього одну перекладину, адже там все одно виявиться стіна кімнати.
Два фасадних борти мають довжину кожен розмір ліжка (за винятком ширини сходів). Те ж стосується і заднього. А торцеві мають довжину по 0,82 м. Всього ж їх 4 штуки. Неважко порахувати, що з однієї заготовки в 2 м вийде по 2 торцеві балки. Значить, все вам знадобиться для бортів кількість двометрових брусків перерізом 30×40 мм, рівне N=2+1+1+1=5 штук.
Поверхня ліжка, зробленої своїми руками, можна прикрасити по своєму бажанню
Настил місць для сну виготовляється з фанери і зміцнювальних балок перерізом 20х20 мм Вам знадобиться площа фанери, рівна площі спальних місць. Таким чином, використовуючи габарити ліжка, отримуєте: S=0,82х1,88=1,54 м2. Це площа одного місця. Для всієї ліжка приймаємо величину 3,1 м2.
Залишилося порахувати бруски перерізом 20х20 мм Знадобиться 4 штуки двометрових заготовок для закріплення на довгих горизонталях ліжка. На ці балки обіпруться у подальшому підкріплюють фанеру відрізки. Таких відрізків вистачить по 8 штук на односпальне місце. Загальна довжина L=8х0,82х2=13,12 м. тобто 7 двометрових заготовок. Загальна кількість брусків цього профілю: 4+7=11 штук.
Крім дерев’яних деталей необхідно використовувати металеві куточки і саморізи. У цій конструкції 8 вузлів з’єднання найпотужніших балок перерізом 40х60 мм. Для кожного такого елемента потрібно використовувати по 2 куточка.
В куточок вкручуються по 2 шурупа на кожну грань
Саморізів вистачить по 100 грам кожного з двох типорозмірів — довжиною 80 мм для основних кріплень і довжиною 35 мм для дріб’язку.
Краще використовувати чорні саморізи по дереву номінальним діаметром 3 мм Вони легко вкручуються в будь-яке дерево без попереднього свердління. А капелюшки потім можна буде закрити спеціальними декоративними «ґудзиками».
Тепер можна скласти підсумковий список:
- брусок перетином 40х60 мм — 10 штук;
- заготовки 30х40 мм — 3 балки для сходів і 5 для бортів — 8 штук;
- фанера з мінімальною товщиною 3-5 мм і площею 3,1 м2;
- брусок 20х20 мм — 11 штук;
- куточки металеві — 16 штук;
- саморізи довжиною 80 мм — близько 0,1 кг;
- саморізи довжиною 35 мм — близько 0,1 кг.
Перед початком робіт краще розкласти всі матеріали в окремі стопки, об’єднуючи за видами і типорозмірами.
Інструменти
Для виготовлення двох’ярусної ліжка знадобляться наступні слюсарні та електроінструменти:
- шуруповерт;
- електролобзик з набором пилок по дереву;
- рулетка;
- рівень;
- дриль та свердло по дереву діаметром 4 мм.
Для складання настільки складною, здавалося б, конструкції, необхідний лише мінімальний набір звичайних інструментів.
Покрокова інструкція по виготовленню
Вся робота по збору двох’ярусної ліжка складається з декількох етапів:
Правильне положення при роботі електроінструментом дуже важливо
Куточок потрібен для більшої міцності
Для посилення потрібно вкрутити шурупи
Ідеальною вважається сходи з 6 ступенями
Лівий кінець ступені кріпиться внапуск до стійки
Правий кінець ступені впирається в балку
Довга перекладина для балок прикріплюється до горизонталі ліжка
Фанера для настилу прикручується саморізами
Виріб майже готове, але не вистачає додаткового оформлення
Бажано ще прикріпити всю конструкцію до стіни кімнати з допомогою тих же куточків. Інакше, коли дитина почне підніматися по сходах, виріб може нахилитися.
Зазвичай фанера продається в стандартних аркушах розміром 1,2 м х 1,4 м. Розкрій його простий: спочатку відрізається деталь в ширину ліжка 0,8 м по всій довжині 1,4 м. Далі залишається застелити приблизно 0,5 м спального місця. Відпилюють від решти куска фанери розміром 0,4 м х 1,4 м два прямокутника по 0,4 м х 0,5 м і застеляється ними відкритий простір.
Можна вже користуватись ліжком, але краще ще додатково оформити її, щоб уникнути відчуття, ніби чогось не вистачає.
Декорування конструкції
Для початку необхідно покрити дерево лаком. Найкраще для цієї мети використовувати матове покриття, оскільки глянсове віддає старовиною. Можна замість лаку використовувати недорогу морилку. Вона добре підкреслює структуру дерева. Покриття наносять простий пензлем.
Декор залежить від статі дітей
Але крім фарбування непогано буде приробити який-небудь фасад на бортики під колір меблів, що займає дитячу кімнату. Підійде будь-який універсальний варіант. Розміри фасаду повинні бути такими, щоб усі бортики сховалися позаду цієї деталі. Краще всього, якщо вдасться підібрати декоративну ламіновану ДСП із закругленням.
Не варто забувати, що для дитячої двох’ярусної ліжка необхідні красиві матраци. Коштують вони, звичайно, недешево. Якщо подібні матраци виявляться не по кишені, можна придбати простий варіант з ватним наповнювачем.
Як зробити двох’ярусне ліжко своїми руками (варіант 2)
Виріб другого типу збирається з плит ДСП. Така конструкція буде виглядати гарніше, однак помітно зростуть витрати та докладені зусилля.
Опис конструкції, креслення
Спинки такий двох’ярусної ліжка робляться з цільних деталей. Те ж стосується бортів і настилів. Дані плити ДСП потрібного розміру замовте в столярному цеху. Там їх зроблять потрібного кольору і по необхідним параметрам, а також задекорируют всі торці плит.
Тепер потрібно визначитися з розмірами. Спинки конструкції нехай будуть заввишки 1,8 м і шириною 0,8 м (по 2 штуки). Товщина плити стандартна — 16 мм. Внизу треба передбачити опорні пластмасові підкладки, які прибиваються маленькими гвоздиками.
Довжину ліжка зробіть дорівнює 1,8 м. Значить, для настилів замовте дві плити розміром 0,8 м х 1,8 м. Для зміцнення конструкції знадобляться ще опори під настили — довгі плити у вигляді дощок розміром 0,2 м х 1,8 м в кількості 4 штук.
Борти будуть мати схожі розміри. Вони знадобляться тільки для верхнього ярусу. Габарити довгих фасадних деталей (2 штуки) — 0,4 м х 1,8 м.
Прорисуйте приблизний ескіз.
Можна ускладнити конструкцію
Звичайно, плити необов’язково замовляти ідеально прямокутними. Для краси можна передбачити різні вирізи, закруглення. А внизу, якщо є можливість, можуть перебувати висувні ящики.
Що стосується сходів, то зробіть її з торця. Для цього додатково замовте 5 ступенів з плит ДСП. Перша розміром 0,8 м х 0,48 м, друга на 10 см. І так далі: кожна зменшується на 10 див. Права частина сходів нехай буде спинкою ліжка. Ліву плиту замовте розміром 0,8 м х 1,36 м, при цьому передбачте скіс верхній частині.
Список необхідних матеріалів
Отже, вам знадобиться:
- плита ДСП (товщиною 16 мм) 1,8 м х 0,8 м — 4 штуки;
- листи 1,8 м х 0,2 м — 4 штуки;
- листи 1,8 м х 0,4 м — 2 штуки;
- 5 плит для ступенів (перша 0,8 м х 0,48 м, кожна наступна на 10 см коротше);
- бічна плита зі скосом 0,8 м х 1,36 м;
- гвинти меблеві під шестигранник — близько 50 штук.
Останні використовуються для скріплення конструкції. Їх ще називають евровинтами.
В головці є поглиблення для шестигранного ключа
Список необхідних інструментів
Вам знадобиться трохи інструментів:
- рулетка;
- дриль зі свердлом діаметром 4,5 мм;
- ключ шестигранник під евровинт;
- шуруповерт.
Покрокова інструкція по виготовленню
Вся робота складається з декількох кроків:
Можна використовувати і шуруповерт замість дрилі
Далі прикріпіть настили. В них по краях зробіть кілька отворів для евровинтов. Потім вкрутіть останні, скріплюючи місця для сну з опорами 0,2 м х 1,8 м.
Нескладна робота
При бажанні під сходами можна зробити суцільні вертикальні опори з ДСП
«Гудзички» можна і не використовувати
Ллестницу можна зробити і з іншого торця, якщо це зручніше, а кількість сходинок легко зменшитиКожне отвір під меблевий евровинт треба намагатися свердлити чітко паралельно основним поверхнях плити ДСП, інакше потім гвинт вкрутится наперекосяк і деформує деталь.
Оформлення ліжка
Ліжко з ДСП можна нічого і не прикрашати, оскільки цей матеріал естетично привабливий зовні. Краще доповнити ліжко висувними ящиками, які можна зібрати і розмістити під нижнім ярусом.
Відео: ліжечко для дівчаток своїми руками
Дитяча двох’ярусна ліжко прослужить довго, якщо стежити за нею. Хоча б раз на місяць потрібно перевіряти всі місця скріплення, кутові вузли. Адже діти не тільки сплять на такій конструкції, але і стрибають, повзають по ній. У разі виявлення розхитаності якогось вузла потрібно просто підтягти гвинти або саморізи.
Якщо ліжко зроблена старанно і з фантазією, вона чудово прикрасить інтер’єр дитячої кімнати.
