Перейти до вмісту
Корисні поради для кожного
  • Сад і город
  • Господарство
    • Шкідники
    • Догляд за тваринами
  • Поради для дому
    • Кулінарні рецепти
    • Англійська мова
    • Новий Рік
    • Сонник
    • Змова
  • Корисні поради
    • Вібер
  • Ремонт
    • Утеплення
    • Сантехніка
    • Електрика
    • Техніка
    • Ванна кімната
    • Опалення
    • Авто
  • Мода
    • Весілля

Ванна кімната

Як покласти кахель самостійно у ванній кімнаті

Ремонт – досить непроста діяльність. Зробити його швидко досить проблематично. Але покласти плитку у
Ванна кімната
Корисні поради для кожного

Підлога кахельна: підготовка клею і викладання плитки

Одним з основних етапів ремонту ванної кімнати, кухні або туалету є укладання кахлю. При
Ванна кімната
Корисні поради для кожного

Установка ванни після укладання плитки – деякі особливості (відео)

Ванна кімната є таким місцем в будинку людини, в яке він заглядає щогодини. Тому
Ванна кімната
Корисні поради для кожного

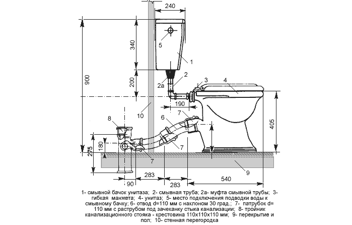
Установка унітазу на плитку відкритим і закритим способом

Фахівці стверджують, що при правильному порядку проведення опоряджувальних робіт у ванній кімнаті в першу
Ванна кімната
Корисні поради для кожного

Як клеїти плитку у ванній кімнаті: технологія, витрата клею (відео)

Відео Керамічна плитка використовується для облицювання ванної кімнати набагато частіше, ніж інший обробний матеріал.
Ванна кімната
Корисні поради для кожного

Звідки починати класти плитку у ванній: особливості, з чого почати?

Приміщення ванної кімнати – це місце з підвищеною вологістю, і тому до вибору оздоблювального
Ванна кімната
Корисні поради для кожного

Як зробити розкладку плитки у ванній: особливості, варіанти

Ви мрієте про розкішне і стильною ванній кімнаті? Тоді все у ваших руках. Сьогодні
Ванна кімната
Корисні поради для кожного

Укладання плитки в туалеті: покрокова інструкція з чого почати

Укладання плитки в туалеті – це один з найбільш популярних способів обробки даного приміщення.
Ванна кімната
Корисні поради для кожного

Укладання плитки у ванній: інструкція та технологія процесу

Кладка плитки у ванній кімнаті вимагає високої якості, тому що забезпечує привабливий зовнішній вигляд
Ванна кімната
Корисні поради для кожного

Як закрити щілину між ванною і стіною: технологія усунення відстані (відео)

Відстань між ванною і поверхнею стіни може вийти при розбіжності габаритів встановленої ванни з
Ванна кімната
Корисні поради для кожного

Укладання плитки у ванній на підлогу: рекомендації

Укладання плитки у ванній на підлогу є дуже складною роботою. Хто, як не фахівці,
Ванна кімната
Корисні поради для кожного

Облицювання кахлем ванної кімнати своїми руками: технологія укладання

При всьому достатку представлених на ринку сучасних будівельних матеріалів плитка залишається самим популярним матеріалом
Ванна кімната
Корисні поради для кожного
Пагінація записів
Назад 1 … 142 143 144 … 228 Далі
© 2026 Корисні поради для кожного
Звертаємо вашу увагу на те, що матеріали сайту взяті з відкритих джерел, і несуть ознайомлювальний характер і ні за яких умов не є публічною офертою або методиками для лікування. Адміністрація сайту не несе відповідальність за достовірність розміщеної інформації! Використання будь-яких матеріалів, розміщених на сайті, дозволяється за умови посилання на сайт!
Зворотній зв’язок | Політика конфіденційності